Biuro na sprzedaż, woj. Polska / dodano: 31.10.2025
kujawsko-pomorskie, chełmiński, Stolno, Stolno
Cena: 395 000 PLN  (731,48 PLN/m²)
Powierzchnia
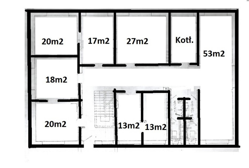
540 m²
Piętro
parter
Liczba pięter
1
Rok budowy
1984
Czy zamknięty obiekt
Tak
Telefon
Tak
Internet
Tak
Prąd
Tak
Siła
Tak
Woda
Tak
Numer oferty
gratka-44862403
Data aktualizacji
2025-12-02 02:17:33
Opis:

Na sprzedaż duży budynek biurowy o powierzchni 540m2. Dwukondygnacyjny. 18 niezależnych pomieszczeń. Dodatkowo 4 łazienki i toalety oraz kotłownia. Do przerobienia na mieszkania, hotel lub ośrodek. W środku odnowiony i wykorzystywany jako biura. Działka 2200m2 z dostępem do drogi publicznej, duży parking. W budynku wszystkie media (energia elektryczna, woda, kanalizacja, szybki internet). W bardzo dobrym punkcie komunikacyjnym. W sąsiedztwie urzędu gminy (100m), poczty (100m), ośrodka zdrowia (200m) i marketów (250m). Na skrzyżowaniu dróg krajowych i idealnym dojazdem do autostrady A1. Brak opłat stałych, wszystkie opłaty zależne od zużycia. Nieruchomość dostępna od zaraz.

WSHP Stolno
Zadzwoń do oferenta
Zadzwoń do oferenta: +48 600 327 748
Powiedz, że znalazłaś/eś ofertę na Bezposrednie.com. Dziękujemy.
Wyślij wiadomość do oferenta
Wyślij wiadomość do oferenta

Zgadzam się też na otrzymanie:

reklama