Biuro do wynajęcia, woj. śląskie / dodano: 11.07.2024
Graniczna, śląskie, Tychy, Wilkowyje
Cena: 8400 PLN  (53,50 PLN/m²)
Powierzchnia
157 m²
Piętro
parter
Liczba pięter
1
Rok budowy
2011
Meble
Tak
Czy zamknięty obiekt
Tak
Internet
Tak
Prąd
Tak
Woda
Tak
Numer oferty
gratka-34903319
Data aktualizacji
2025-12-25 02:09:46
Opis:

Przedmiot najmu:

  • lokal biurowy z miejscami parkingowymi


Położenie:

  • Tychy, ul. Graniczna 44
  • budynek jednopiętrowy (parter)


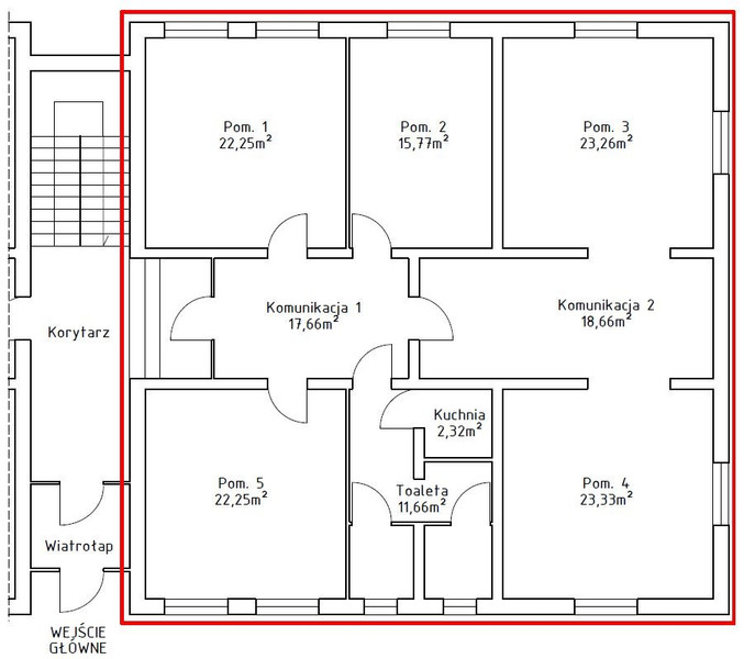
Powierzchnia:

  • 157 m2


Lokal:

  • 5 pomieszczeń biurowych, kuchnia, dwie toalety, komunikacja
  • remont w 05.2024 r. (ściany, wykładziny dywanowe, rolety)
  • oddzielne wejście wewnątrz budynku ze wspólnej klatki schodowej


Wyposażenie:

  • umeblowane pomieszczenia (lub bez mebli zgodnie z ustaleniami)
  • kuchnia i toalety wyposażone standardowo
  • do wynajęcia od zaraz


Media:

  • media (prąd, ogrzewanie elektryczne, wod.-kan.) rozliczane zgodnie ze wskazaniem licznika
  • sieć teleinformatyczna, szybkie łącze internetowe, infrastruktura serwerowa


Lokalizacja:

  • Tychy Wilkowyje
  • dogodne połączenie z Mikołowem i Katowicami


Parking:

  • duży parking
  • wyznaczone miejsca parkingowe dla pracowników i klientów


Ochrona:

  • ochrona obiektu poza godzinami pracy przez zewnętrzną firmę ochroniarską



Dodatkowo:

  • możliwość wynajmu pow. magazynowej
  • możliwość usługi sprzątania

W sprawie spotkania, prosimy o wcześniejszy kontakt:

  • telefoniczny:692 957 659


Lokal jest gotowy do wynajęcia zaraz.

Zapraszamy serdecznie.

KPB Intra Polska sp. z o.o.
Zadzwoń do oferenta
Zadzwoń do oferenta: +48 692 957 659
Powiedz, że znalazłaś/eś ofertę na Bezposrednie.com. Dziękujemy.
Wyślij wiadomość do oferenta
Wyślij wiadomość do oferenta

Zgadzam się też na otrzymanie:

reklama