Biuro do wynajęcia, woj. Polska / dodano: 17.02.2026
Ignacego Paderewskiego, świętokrzyskie, Kielce
Cena: 1182 PLN  (60 PLN/m²)
Powierzchnia
19,7 m²
Piętro
2
Liczba pięter
2
Numer oferty
gratka-46119999
Data aktualizacji
2026-02-17 11:33:42
Opis:

Witam,

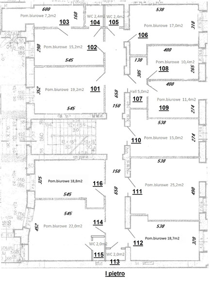
oferuję od wynajęcia lokal usługowy / biurowy w kamienicy przy ul. Paderewskiego 24, oznaczony numerem 205 na załączonym planie.

Powierzchnia pomieszczenia to 19,7 m2. Wspólna toaleta na korytarzu.


Lokal znajduje się na 2 piętrze kamienicy w doskonałej lokalizacji, 100m od ul. Sienkiewicza, blisko przystanków autobusowych, duże natężenie ruchu pieszego oraz samochodowego.

Wysokość pomieszczeń 3 metry, ogrzewanie miejskie, światłowód.


Kamienica jest po kapitalnym remoncie, wymienione zostały wszystkie instalacje, nowe okna, drzwi aluminiowe przeszklone, na podłodze gres polerowany, sufit dźwiękochłonny. Stropy żelbetowe. Wnętrza utrzymane w stylu loftowym, odsłonięta 100 letnia cegła, wyremontowana klatka schodowa z granitowymi stopniami i nową barierką.


Dostęp do obiektu 24h/dobę, zamykana na noc brama wjazdowa.


Cena netto, wystawiam FV 23%, dodatkowo prądu wg zużycia z podlicznika. Wszystkie inne opłaty w cenie, ogrzewanie miejskie.

Piotr
Zadzwoń do oferenta
Zadzwoń do oferenta: +48 606 598 868
Ogłoszeniodawca nie zgadza się na kontakt agencji nieruchomości.
Powiedz, że znalazłaś/eś ofertę na Bezposrednie.com. Dziękujemy.
Wyślij wiadomość do oferenta
Wyślij wiadomość do oferenta

Zgadzam się też na otrzymanie:

reklama