Biurowiec do wynajęcia, woj. warmińsko-mazurskie / dodano: 30.01.2026
Aleja Obrońców Tobruku, warmińsko-mazurskie, Olsztyn, Brzeziny
Cena: 15 000 PLN  (45,18 PLN/m²)
Powierzchnia
332 m²
Piętro
parter
Liczba pięter
1
Numer oferty
gratka-45900915
Data aktualizacji
2026-01-30 17:08:43
Opis:

Do wynajęcia powierzchnia biurowa, zlokalizowana na parterze w budynku biurowym położonym w Olsztynie przy ul. Obrońców Tobruku 3a.


LOKALIZACJA:

Lokalizacja przy ul. Obrońców Tobruku daje gwarancję dobrej komunikacji z każdą dzielnicą miasta, jak i również dostępnością z obwodnic Olsztyna. Znajduje się z bezpośrednim zjazdem z DW 660. Ponadto w pobliżu znajdują się linie autobusowe oraz tramwajowe.

W bezpośrednim sąsiedztwie znajduje się Centrum konferencyjne Eranova, Salon samochodowy RESMA, park trampolin, zakłady produkcyjne, Wydział Języków obcych UWM oraz osiedle mieszkaniowe.


NIERUCHOMOŚĆ:

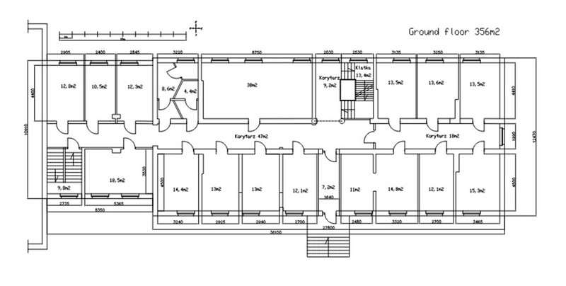
Kondygnacja do wyłącznego użytku o powierzchni użytkowej 332 m² składa się z 16 pomieszczeń biurowych i 2 toalet , co pozwala na wygodne zaaranżowanie przestrzeni pod konkretne potrzeby działalności. Istnieje możliwość adaptacji pomieszczeń według własnych potrzeb, oraz wynajęcia dodatkowych ogrzewanych i doświetlonych światłem dziennym pomieszczeń w piwnicy np. na archiwum, lub magazyn.

Przy budynku znajduje się 15 miejsc parkingowych (teren parkingu dodatkowo płatny).

To również idealna lokalizacja pod działalność produkcyjną, lub magazynową. Na terenie nieruchomości znajduje się również do wynajęcia budynek produkcyjny z suwnicą lub z przeznaczeniem na magazyn wysokiego składowania. Dostępne są również inne budynki magazynowe i warsztatowe o zróżnicowanej powierzchni. Zapraszamy do kontaktu w celu uzyskania szerszych informacji.


MEDIA

-Woda

-Kanalizacja

-Prąd

-Ogrzewanie miejskie

-Światłowód


Czynsz najmu netto : 15 000 zł + podatek VAT

Dodatkowo opłaty eksploatacyjne i zużyte media.

Kaucja dwumiesięczny czynsz brutto.


Zapraszamy do kontaktu w celu uzyskania szczegółowych informacji oraz umówienia się na prezentację nieruchomości.

Admin Invest Sp. z o.o.
Zadzwoń do oferenta
Zadzwoń do oferenta: +48 723 014 490
Ogłoszeniodawca nie zgadza się na kontakt agencji nieruchomości.
Powiedz, że znalazłaś/eś ofertę na Bezposrednie.com. Dziękujemy.
Wyślij wiadomość do oferenta
Wyślij wiadomość do oferenta

Zgadzam się też na otrzymanie:

reklama