Dom na sprzedaż, woj. śląskie / dodano: 24.12.2025
Bałtycka, śląskie, Bielsko-Biała, Olszówka
Cena: 1 599 000 PLN  (5710,71 PLN/m²)
Powierzchnia mieszkalna
280 m²
Powierzchnia działki
964 m²
Typ domu
inny
Numer oferty
gratka-45500385
Data aktualizacji
2026-01-08 02:11:17
Opis:

Sprzedam dom z dwoma samodzielnymi mieszkaniami po 105 mkw. Dom położony jest w dzielnicy Olszówka Górna, na ulicy Bałtyckiej.

Dom stoi na 10 arowej działce. Na działce znajduje się domek gospodarczy i altana. Dookoła dużo zieleni.

Nieruchomość świetnie sprawdzi się zarówno dla dwóch rodzin jak i nieruchomość przeznaczona pod inwestycje związaną z najmem.

Dom składa się z 3 poziomów. Mieszkania maja wydzielone księgi wieczyste i mogą stanowić odrębną własność.

Dostęp do każdego z mieszkań odbywa się przez wspólną klatkę schodową. Mieszkania oddzielone są od klatki drzwiami wejściowymi. Każdy z poziomów ma indywidualne instalacje z indywidualnymi licznikami.

W budynku wszystkie media. Prąd, woda, gaz, kanalizacja. Możliwość podłączenia internetu światłowodowego.

Budynek posiada świadectwo energetyczne. Ścian 44cm zbudowana z suporeksu i cegły ze szczeliną powietrzną. Budynek jest ocieplony dodatkowo wełną mineralną.

Budynek był modernizowany z biegiem lat. Nowe instalacje wodna i gazowa. Instalacja elektryczna w miedzi. Ogrzewanie zbudowane z cienkich rurek miedzianych. Okna PVC.

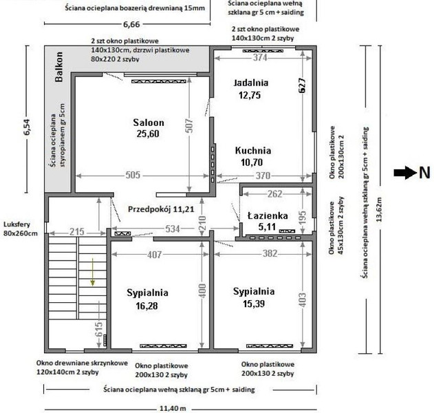
1 poziom - przyziemie, wysokość 2,2m. Powierzchnia 88mkw. Duży pokój z aneksem kuchennym, może służyć jako kuchnia letnia. Mały pokój, sypialnia. Łazienka z prysznicem, bidetem, umywalka i ubikacją. Garaż jednostanowiskowy. Pomieszczenie gospodarcze przeznaczone na składowanie różnych rzeczy. W pomieszczeniu gospodarczym znajduje się piec gazowy do ogrzewania poziomu. Pod schodami znajduje się piwniczka.

2 poziom - 1 piętro, wysokość 2,6m. Duży salon z dużym oknem. Dwie sypialnie, Duża kuchnia z jadalnia. Można wydzielić trzecią sypialnię z jadalni. Łazienka z prysznicem, bidetem, umywalką toaletą i miejscem na pralkę. W łazience znajduje się piec gazowy przeznaczony do ogrzewania mieszkania. Przedpokój z miejscem na duża szafę. Duży balkon. W pokojach na podłodze parkiet drewniany. Ściany w gładzi gipsowej.

3 poziom - 2 piętro, wysokość 2,6m. Duży salon z dużym oknem. Trzy sypialnie, Duża kuchnia. Można wydzielić jadalnię z jednej sypialni. Łazienka z prysznicem, bidetem, umywalką toaletą i miejscem na pralkę. W łazience znajduje się piec gazowy przeznaczony do ogrzewania mieszkania. Przedpokój z miejscem na duża szafę. Duży balkon. W pokojach na podłodze parkiet drewniany. Ściany w gładzi gipsowej.

Możliwa ULGA TERMOMODERNIZACYJNA nawet 530 000 zł. Ulga przysługuje na ocieplenie budynku, wymianę okien, wymianę pieca, montaż paneli fotowoltaicznych z magazynem energii.

Sprzedaż bezpośrednio od właściciela. Brak prowizji.

Zapraszam na prezentację.

Piotr
Zadzwoń do oferenta
Zadzwoń do oferenta: +48 606 808 525
Ogłoszeniodawca nie zgadza się na kontakt agencji nieruchomości.
Powiedz, że znalazłaś/eś ofertę na Bezposrednie.com. Dziękujemy.
Wyślij wiadomość do oferenta
Wyślij wiadomość do oferenta

Zgadzam się też na otrzymanie:

reklama