Dom na sprzedaż, woj. Polska / dodano: 19.12.2025
Kasztanowa, dolnośląskie, wrocławski, Kąty Wrocławskie, Mokronos Górny
Cena: 1 550 000 PLN  (10 587,43 PLN/m²)
Powierzchnia mieszkalna
146,4 m²
Powierzchnia działki
188 m²
Liczba pokoi
4
Rok budowy
2021
Typ domu
szeregowiec
Meble
Tak
Czy jest poddasze
Tak
Internet
Tak
Prąd
Tak
Gaz
Tak
Woda
Tak
Numer oferty
gratka-45452203
Data aktualizacji
2026-03-13 02:04:39
Opis:

To oferta dla osób, które oczekują ponadstandardowego komfortu, funkcjonalności oraz wysokiej jakości wykończenia.


Na sprzedaż nowoczesny, perfekcyjnie wyposażony dom w zabudowie szeregowej o powierzchnia 146,4m2, zlokalizowany w cichej, zielonej i spokojnej części Mokronosa Górnego.


Dom znajduje się na kameralnym osiedlu - jedynie 3 szeregi.


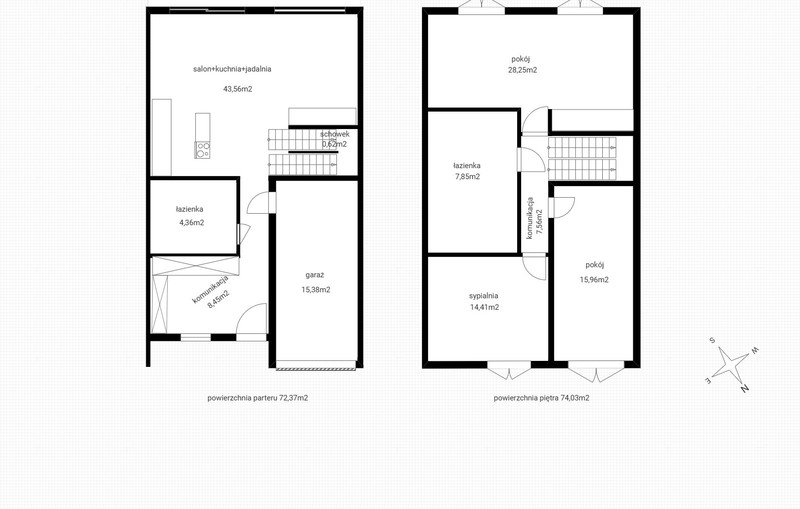
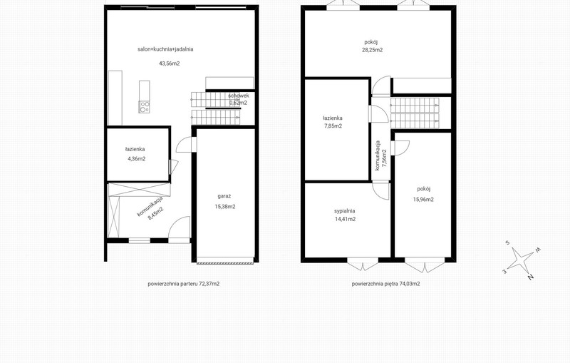
Rozkład pomieszczeń:

Parter:

  • wiatrołap + komunikacja 8,45m2
  • toaleta 4,36m2
  • salon z kuchnią i jadalnią 43,56m2
  • schowek 0,62m2
  • garaż 15,38m2

Ogródek: 64m2

Taras: około 50m2


Piętro

  • sypialnia 14,41m2
  • pokój dziecięcy z garderobą 28,25m2
  • pokój gościnny 15,96m2
  • łazienka 7,85m2



Wyposażenie obejmuje szereg udogodnień, które wyróżniają tę nieruchomość na tle innych:


  • klimatyzacja na każdym piętrze
  • rekuperacja – świeże powietrze w każdym pomieszczeniu i niższe koszty ogrzewania,
  • ogrzewanie podłogowe i sterowniki w każdym pomieszczeniu– przyjemne ciepło w całym domu dostosowane do indywidualnych upodobań,
  • podświetlane schody z czujnikiem ruchu – funkcjonalne i eleganckie oświetlenie,
  • leady przy oknach – nastrojowe podświetlenie nadające wnętrzom charakteru,
  • elektryczne rolety – wygoda, prywatność i ochrona przed słońcem,
  • firany i zasłony w systemie WAVE – stylowe, nowoczesne wykończenie wnętrza,
  • sejf – bezpieczne miejsce na wartościowe przedmioty,
  • młynek w kranie – praktyczne rozwiązanie usprawniające pracę w kuchni,
  • zmiękczacz wody – ochrona instalacji i sprzętów, komfort dla skóry i włosów,
  • elektryczna szuflada na kosz – wygoda i higiena w nowoczesnym wydaniu,
  • dedykowane okapy kuchenne ( pod termomix i nablatowy na wyspie kuchennej),
  • elegancka i praktyczna wyspa kuchenna z gniazdami elektrycznymi chowanymi w blat,
  • prywatna strefa relaksu z sauna i wanna z jacuzzi,
  • paczkoport – odbiór paczek bez wychodzenia z domu i oczekiwania na kuriera,
  • dodatkowa przestrzeń na strychu wraz z regałami– pojemny schowek lub możliwość aranżacji według własnych potrzeb


a także akwarium 400 litrów, oświetlenie tarasu, obrotowa szafka na buty, podświetlane szafy, chowana deska do prasowania.


Rozkład pomieszczeń:

Parter:

  • wiatrołap + komunikacja 8,45m2
  • toaleta 4,36m2
  • salon z kuchnią i jadalnią 43,56m2
  • schowek 0,62m2
  • garaż 15,38m2

Ogródek: 64m2

Taras: około 50m2


Piętro

  • sypialnia 14,41m2
  • pokój dziecięcy z garderobą 28,25m2
  • pokój gościnny 15,96m2
  • łazienka 7,85m2


Dom jest sprzedawany w wyposażeniem ruchomym (90% wyposażenia) w tym z nowym Termomixem model 7.


Lokalizacja i dojazd:

Dom położony jest w kameralnej okolicy Mokronosa Górnego, w otoczeniu zieleni i spokoju. To miejsce idealne dla osób, które chcą odpocząć od miejskiego zgiełku, a jednocześnie potrzebują szybkiego i wygodnego dojazdu do Wrocławia oraz dostępu do pełnej infrastruktury:


  • wjazd na AOW Wrocław Zachód 4 min
  • centrum Handlowe Aleja Bielany 14 min
  • Stacja PKP 3 min
  • Zespół szkolno-przedszkolny 5 min


Jeśli szukasz domu, który łączy wysoki standard, nowoczesne technologie, elegancję, komfort i prywatność, ta nieruchomość będzie idealnym wyborem.


Zapraszam do kontaktu i na prezentację!

Agnieszka Leszczyńska Zawieja

t.514 179 524



Planujesz zakup nieruchomości w kredycie? Pomożemy.

Oferujemy bezpłatne, profesjonalne wsparcie w analizie zdolności kredytowej oraz pomoc w uzyskaniu finansowania. Zapewniamy kompleksową obsługę kredytową, aby cały proces zakupu przebiegł sprawnie, bezpiecznie i komfortowo.


Przy tej ofercie oferujemy bezpłatną wycenę nieruchomości (na potrzeby finansowania kredytem) oraz świadectwo charakterystyki energetycznej. Szczegóły oferty u agenta prowadzącego




*załączony rzut jest rzutem poglądowym i nie może być podstawą do prac projektowych.


Agnieszka
Zadzwoń do oferenta
Zadzwoń do oferenta: +48 514 179 524
Powiedz, że znalazłaś/eś ofertę na Bezposrednie.com. Dziękujemy.
Wyślij wiadomość do oferenta
Wyślij wiadomość do oferenta

Zgadzam się też na otrzymanie:

reklama