Dom na sprzedaż, woj. Polska / dodano: 20.03.2026
pomorskie, kościerski, Lipusz, Śluza
Cena: 1 300 000 PLN  (9285,71 PLN/m²)
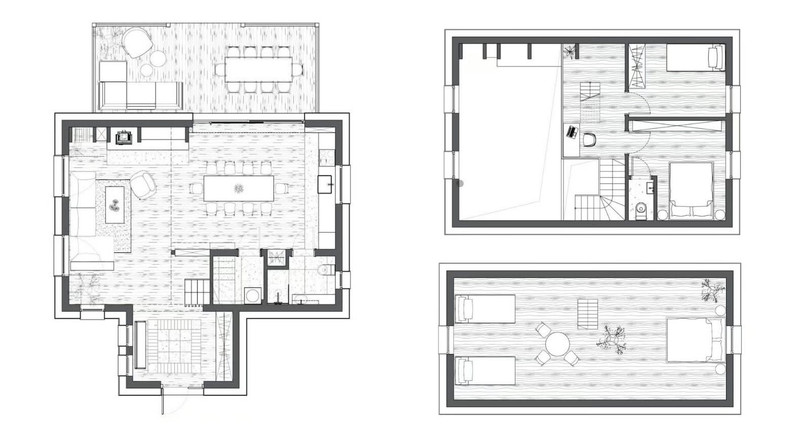
Powierzchnia mieszkalna
140 m²
Powierzchnia działki
1700 m²
Liczba pokoi
4
Typ domu
inny
Numer oferty
gratka-46344829
Data aktualizacji
2026-04-04 02:16:51
Opis:

Nieruchomość położona jest w kameralnym kompleksie kilku domów letniskowych, w otoczeniu drzew iglastych, około 150 metrów od jeziora Wieckiego, do którego prowadzi ogólnodostępna polna droga.

Dom znajduje się na terenie Lipuskiego Obszaru Krajobrazu Chronionego, wchodzącego w skład Wdzydzkiego Parku Krajobrazowego. W okolicy liczne szlaki rowerowe i piesze, a na sąsiednim jeziorze znajduje się dobrze utrzymane gminne kąpielisko. Z jeziora Wieckiego wypływa rzeka Wda. Ok. 80 km do Gdańska (ok. 1 h 15 min), ok. 15 minut do Kościerzyny.

Cena obejmuje:

1) dom murowany o powierzchni 140 m kw.,

2) ogrodzona działka 1700 m kw.,

3) domek gospodarczy (z balików 4,4 cm) o powierzchni 16 m kw.

4) sauna i jacuzzi.

Na działce znajduje się prąd, studnia, szambo (10 m sześciennych).

Nieruchomość dostępna w 3 wariantach:

1) stan surowy zamknięty (drzwi wejściowe dwuskrzydłowe, stolarka okienna trzyszybowa druteks ze szprosami, zadaszenie blachodachówką) –

cena 1 300 000 zł (dostępny marzec 2026)

2) stan surowy zamknięty z wykończonym tarasem i elewacjąbudynku(ocieplenie wełną skalną + deska elewacyjna Essav) –

cena 1 450 000 zł (dostępny maj 2026)

3) stan deweloperski (instalacje elektryczne, hydrauliczne, oceplenie poddasza + boazeria, parter tynk) –

cena 1 700 000 (dostępny czerwiec 2026)

(wystawiamy fakturę)

Jan
Zadzwoń do oferenta
Zadzwoń do oferenta: +48 606 209 034
Ogłoszeniodawca nie zgadza się na kontakt agencji nieruchomości.
Powiedz, że znalazłaś/eś ofertę na Bezposrednie.com. Dziękujemy.
Wyślij wiadomość do oferenta
Wyślij wiadomość do oferenta

Zgadzam się też na otrzymanie:

reklama