Dom na sprzedaż, woj. Niemcy / dodano: 16.01.2026
Brandenburgia, Schönermark
Cena: 325 000 PLN  (590,91 PLN/m²)
Powierzchnia mieszkalna
550 m²
Powierzchnia działki
599 m²
Typ domu
wolnostojący
Materiał budowlany
cegła
Meble
Nie
Prąd
Tak
Siła
Tak
Woda
Tak
Numer oferty
gratka-45732981
Data aktualizacji
2026-01-31 02:03:45
Opis:

Nieruchomość położona w urokliwej miejscowości Schönermark (17291) przy Naugartenerstrasse 2, w sercu malowniczej Brandenburgii, oferuje spokojną okolicę idealną na wymarzone miejsce zamieszkania lub dochodową inwestycję. Dwa budynki stoją dwóch działkach o łącznej powierzchni 599 m² (nr działek 96/1 i 96/2), z możliwością dokupienia sąsiedniej parceli o powierzchni 350 m², co otwiera perspektywę dalszej rozbudowy i zwiększenia wartości. Bliskość natury, dobre połączenia drogowe i niskie ceny gruntów czynią to miejsce atrakcyjnym dla rodzin i inwestorów.


Oba obiekty wymagają generalnego remontu, co otwiera nieograniczone możliwości adaptacji pod wymarzony dom lub dochodową inwestycję. Parterowy budynek o pow. zabudowy 100 m² oferuje solidną bazę do szybkiej modernizacji w kompaktowy dom lub lokal użytkowy. Drugi budynek (235 m² zabudowy, podpiwniczony z poddaszem pod antresolę) dysponuje przestronnymi pomieszczeniami, grubymi murami i autentycznymi detalami.


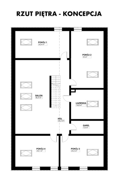
Załączone rzuty parteru i piętra wizualizują nowoczesny dom z salonem, pokojami, kuchnią, łazienkami, garażem i holem – elegancka bryła ceglana z zielonymi akcentami. Rozkład optymalizuje przestrzeń (antresola, niezależne strefy), umożliwiając dwa mieszkania lub dom rodzinny o wysokiej wartości po remoncie.


Cena: 77.000 €

Łukasz
Zadzwoń do oferenta
Zadzwoń do oferenta: +48 730 430 650
Ogłoszeniodawca nie zgadza się na kontakt agencji nieruchomości.
Powiedz, że znalazłaś/eś ofertę na Bezposrednie.com. Dziękujemy.
Wyślij wiadomość do oferenta
Wyślij wiadomość do oferenta

Zgadzam się też na otrzymanie:

reklama