Dom na sprzedaż, woj. Polska / dodano: 11.01.2026
wielkopolskie, nowotomyski, Nowy Tomyśl, Boruja Nowa
Cena: 71 000 PLN  (1365,38 PLN/m²)
Powierzchnia mieszkalna
52 m²
Powierzchnia działki
0 m²
Liczba pokoi
4
Typ domu
wolnostojący
Materiał budowlany
drewno
Numer oferty
gratka-45675703
Data aktualizacji
2026-02-12 14:22:15
Opis:

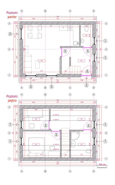
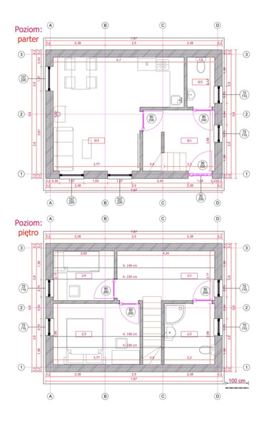
Modułowy dom jednorodzinny w technologii drewnianej o powierzchni ok. 65 m2 (użytkowa ok. 52 m2). Przygotowany do ocieplenia wełną 20 cm. Stan wewnątrz jak na zdjęciach nr 3 i 4. Na zdjęciu nr 4 otwór na schody na piętro.

Układ samonośny przystosowany do transportu zestawami niskopodwoziowymi. Wykonana elewacja z zaawansowaniem 70 %. Dostępne 3 sztuki. Oferuję także demontaż, montaż i transport.

Roman
Zadzwoń do oferenta
Zadzwoń do oferenta: +48 605 060 333
Ogłoszeniodawca nie zgadza się na kontakt agencji nieruchomości.
Powiedz, że znalazłaś/eś ofertę na Bezposrednie.com. Dziękujemy.
Wyślij wiadomość do oferenta
Wyślij wiadomość do oferenta

Zgadzam się też na otrzymanie:

reklama