Dom na sprzedaż, woj. Polska / dodano: 26.01.2026
Hubalczyków, mazowieckie, ostrołęcki, Olszewo-Borki, Olszewo-Borki
Cena: 849 000 PLN  (7075 PLN/m²)
Powierzchnia mieszkalna
120 m²
Powierzchnia działki
600 m²
Liczba pokoi
5
Typ domu
wolnostojący
Materiał budowlany
pustak
Meble
Nie
Prąd
Tak
Siła
Tak
Woda
Tak
Numer oferty
gratka-45852339
Data aktualizacji
2026-02-10 02:13:38
Opis:

Lokalizacja: Olszewo-Borki, ul. Hubalczyków 18 (nowe osiedle)

Cena: 849 000 zł (Sprzedaż bezpośrednia)


Kluczowe atuty, które pokochasz:


Zero dodatkowych kosztów na zewnątrz: Ogród jest w pełni wykończony (trawnik z rolki, nasadzenia, automatyczne nawadnianie).


Dom, który zarabia na siebie: Instalacja fotowoltaiczna 5,5 kW oraz pompa ciepła drastycznie obniżają koszty utrzymania.


Bezpieczeństwo 24/7: Monitoring z rejestratorem i system alarmowy w cenie.


Standard Premium: Okna 3-szybowe i grafitowa izolacja termiczna (λ=0,31).


Opis Nieruchomości


Na sprzedaż oferujemy nowoczesny dom o powierzchni użytkowej 120 m² (całkowitej 140 m²), położony na starannie zagospodarowanej działce o powierzchni 600 m². To idealna propozycja dla osób szukających domu energooszczędnego, gdzie najtrudniejsze prace (ogród, podjazdy, systemy grzewcze) zostały już wykonane z najwyższą dbałością o detal.


Energooszczędność i Technologia


Dom został zaprojektowany z myślą o minimalizacji kosztów eksploatacji:


Ogrzewanie: Ekologiczna pompa ciepła Saunier Duval (7 kW).


Komfort: Ogrzewanie podłogowe rozprowadzone w całym domu.


Energia: Własna elektrownia słoneczna (Fotowoltaika 5,5 kW).


Izolacja: Styropian grafitowy 15 cm o doskonałym współczynniku przenikania ciepła.


Ogród - Twoja Prywatna Enklawa


W przeciwieństwie do standardowych ofert deweloperskich, tutaj ogród jest gotowy do użytku:


System nawadniania: Automatyczny, dba o zieleń za Ciebie.


Teren: Trawnik z rolki zabezpieczony siatką na krety.


Relaks: Przestronny taras oraz nowoczesna architektura ogrodowa z donicami i oświetleniem zewnętrznym.


Podjazd: Wyłożony grubą kostką brukową (8 cm).


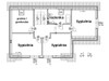
Funkcjonalny Układ Pomieszczeń


PARTER (62,50 m²):


- Strefa dzienna: Salon połączony z kuchnią (31 m²) z wyjściem na taras.


- Praktyczna kuchnia: Z przyległą spiżarnią.


- Dodatkowy pokój: Idealny na gabinet lub sypialnię gościnną.


- Wiatrołap, łazienka oraz kotłownia.


PIĘTRO (57,33 m²):


- Trzy ustawne sypialnie (w tym główna z dużą przestrzenią).


- Pokój kąpielowy: Przestronna łazienka.


- Garderoba/Pralnia: Osobne pomieszczenie gospodarcze (ponad 9 m²).


*Lokalizacja*


Dom znajduje się w spokojnej, prestiżowej części Olszewo-Borki na nowym osiedlu domów jednorodzinnych. Miejsce łączy ciszę i bliskość natury z błyskawicznym dojazdem do centrum Ostrołęki oraz dostępem do szkół i sklepów.


Dodatkowe informacje:


Media: Kanalizacja miejska, woda, prąd.


Możliwość wykończenia "pod klucz" - wprowadź się do gotowego wnętrza bez stresu o ekipy remontowe!


Zapraszam do kontaktu i na prezentację!


To dom, który broni się jakością przy każdym spojrzeniu. Przekonaj się sam!


Kontakt: Piotr Ścięgaj Tel: [+48]519 754 409 Sprzedaż bezpośrednia - Kupujący nie płaci prowizji!







Piotr Ścięgaj
Zadzwoń do oferenta
Zadzwoń do oferenta: +48 519 754 409
Ogłoszeniodawca nie zgadza się na kontakt agencji nieruchomości.
Powiedz, że znalazłaś/eś ofertę na Bezposrednie.com. Dziękujemy.
Wyślij wiadomość do oferenta
Wyślij wiadomość do oferenta

Zgadzam się też na otrzymanie:

reklama