Dom na sprzedaż, woj. Polska / dodano: wczoraj
Jastrzębia, mazowieckie, piaseczyński, Piaseczno, Głosków
Cena: 1 090 000 PLN  (6728,40 PLN/m²)
Powierzchnia mieszkalna
162 m²
Powierzchnia działki
500 m²
Liczba pokoi
5
Typ domu
inny
Numer oferty
gratka-47131271
Data aktualizacji
2026-04-29 19:21:55
Opis:

Na sprzedaż ostatnia dostępna część nowej inwestycji – bez prowizji, bezpośrednio od właściciela.


Dom dla rodziny, która chce żyć wygodnie


• 162 m² powierzchni użytkowej

• ogród ok. 500 m² – idealny na taras, plac zabaw lub strefę relaksu

• nowa, spokojna zabudowa jednorodzinna

• Lokalizacja – szybki dojazd do Warszawy


Głosków (Jastrzębia), gm. Piaseczno


Galeria Mokotów – 27 min

Lotnisko Chopina – 19 min

Trasa S7 – 4,3 km

Piaseczno – 6 km

Idealne miejsce dla osób pracujących w Warszawie, które chcą mieszkać spokojniej i wygodniej.


Funkcjonalny układ pomieszczeń


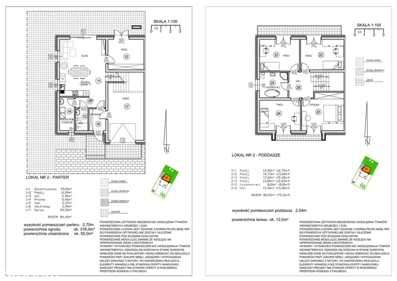
Parter:


• przestronny salon z aneksem kuchennym i wyjściem na ogród

• gabinet / pokój gościnny (dodatkowy pokój na parterze może pełnić funkcję gabinetu, pokoju

• gościnnego lub zostać otwarty na salon, tworząc jeszcze większą strefę dzienną )

• łazienka

• pralnia

• wiatrołap

• garaż w bryle budynku


Piętro:


• 4 pełnowymiarowe sypialnie

• duża łazienka

• Standard premium – niskie koszty utrzymania


• wszystkie media miejskie

• powietrzna pompa ciepła

• ogrzewanie podłogowe w całym domu

• przygotowanie pod rekuperację

• okna 3-szybowe

• ocieplenie ścian 20 cm

• dach ocieplony pianą PUR 25 cm

• blachodachówka

• garaż z bramą na pilota

• dodatkowe miejsce postojowe

• ogrodzenie działki

• stan deweloperski – gotowy do aranżacji


Największe korzyści dla kupującego


• słoneczny ogród z dużym potencjałem

• możliwość montażu fotowoltaiki

• oszczędna eksploatacja (pompa ciepła + podłogówka)

• 2 miejsca parkingowe (garaż + zewnętrzne)

• idealny dom dla rodziny

• nowe, spokojne sąsiedztwo


Pełna infrastruktura w pobliżu


szkoła podstawowa – 1800 m

przedszkole – 2500 m

sklep spożywczy – 1400 m

autobusy L2, L12, 727 do Metra Wilanowska – 1000 m

Termin oddania


kwiecień / maj 2026


Zakup bezpośredni – bez prowizji


Zadzwoń i umów się na prezentację lub otrzymaj pełną specyfikację techniczną inwestycji.

Paulina
Zadzwoń do oferenta
Zadzwoń do oferenta: +48 721 040 570
Ogłoszeniodawca nie zgadza się na kontakt agencji nieruchomości.
Powiedz, że znalazłaś/eś ofertę na Bezposrednie.com. Dziękujemy.
Wyślij wiadomość do oferenta
Wyślij wiadomość do oferenta

Zgadzam się też na otrzymanie:

reklama