Dom na sprzedaż, woj. Polska / dodano: 12.09.2025
mazowieckie, żyrardowski, Puszcza Mariańska, Korabiewice
Cena: 730 000 PLN  (4155,99 PLN/m²)
Powierzchnia mieszkalna
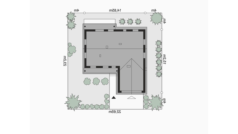
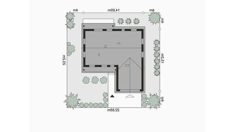
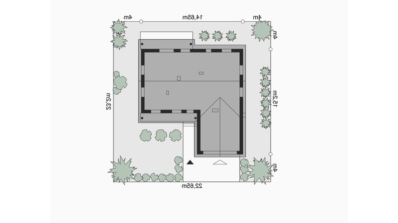
175,65 m²
Powierzchnia działki
1430 m²
Liczba pokoi
6
Rok budowy
2025
Typ domu
wolnostojący
Meble
Nie
Czy jest poddasze
Tak
Prąd
Tak
Woda
Tak
Numer oferty
gratka-44016117
Data aktualizacji
2026-04-22 08:22:50
Opis:

Sprzedam dom w trakcie budowy, położony w cichej i spokojnej okolicy, otoczony lasem i przyrodą. Idealne miejsce dla osób szukających spokoju i kontaktu z naturą.

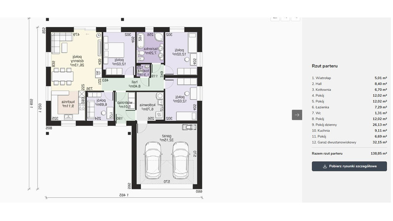
Dom ma powierzchnię zabudowy 175, 68 m² , powierzchnia użytkowa 170 m² , 100 m² parter , 70 m² poddasze , 32,15 m² garaż 2 stanowiskowy , usytuowany na działce o powierzchni 1430 m²,w drodze media: prąd, woda .

Do realizacji wykorzystano projekt : „Projekt domu Dom przy Bukowej 27”- lustrzane odbicie.

Budynek zawiera: przedpokój /wiatrołap z wyjściem na poddasze, salon z aneksem kuchennym, 3 sypialnie, toaletę, łazienkę, kotłownię z przejściem do garażu dwustanowiskowego, poddasze z możliwoścą dowolnej adaptacji: w tym celu dokonano zmian w projekcie ( wykonano otwór w stropie na górę pod kontem budowy schodów przez co przesunięto ścianę w wiatrołapie , dodano okna szczytowe oraz połaciowe, wszystkie zmiany zostały zawarte w projekcie , widoczne również na zdjęciach, projekty: oryginalny oraz po zmianach dostępny do wglądu).

Informacje dodatkowe- techniczne.

Budynek wykonany jest z pustaka czerwonej cegły jej zalety to:

Izolacyjność i komfort cieplny, akumulacja ciepła: dzięki porowatej strukturze, skutecznie zatrzymują ciepło i stopniowo je oddają, zapewniając stabilną temperaturę wewnątrz budynku.

Izolacja akustyczna: świetnie izoluje od hałasu, co przyczynia się do spokoju w domu.

Paroprzepuszczalność: materiał jest paroprzepuszczalny, umożliwiając odprowadzanie wilgoci z wnętrza i zapobiegając rozwoju grzybów i pleśni.

Trwałość i wytrzymałość ,naturalny materiał: wykonane z wypalanej gliny, pustaki to ekologiczny i trwały materiał budowlany.

Zastosowano okna trzyszybowe założono instalację elektryczną wewnętrzną i zewnętrzną oraz tynki wewnętrzne. Zamontowano drzwi antywłamaniowe oraz automatyczną bramę garażową.

Ogromną zaletą jest stan budynku ( surowy zamknięty ) oraz jego usytuowanie na dużej , częściowo zalesionej działce co stwarza okazję adaptacji i aranżacji calej przestrzeni według indywidualnych potrzeb.

Otoczenie

Nieruchomość znajduje się w otoczeniu lasów i terenów zielonych co tworzy piękne, harmonijne środowisko, które sprzyja estetycznym odczuciom i poczuciu harmonii z naturą.Obcowanie z naturą, pozytywnie wpływa na samopoczucie, redukuje stres oraz sprzyja relaksowi i odpoczynkowi poprawia jakość snu. Brak hałaśliwych sąsiedztw i zgiełku miasta zapewnia komfortowe warunki do wypoczynku, pracy zdalnej czy nauki, sprzyjając wyciszeniu i relaksowi.

Bliskość terenów rekreacyjnych, lasu, wody, ścieżek rowerowych oraz cicha, spokojna okolica oferuje wiele korzyści i możliwości, które wpływają na komfort życia oraz jakość codziennych aktywności.W promieniu 7-20km (Mszczonów, Puszcza Mariańska, Żyrardów, Skierniewice,):Aqa Park Suntago wraz z zewnętrzną infrastrukturą, łowiska Wrecza, Samice ,Zalew Żyrardowski, Termy Mszczonów, Deep Spot -Mszczonów( centrum nurkowania), kina , kawiarnie, restauracje, przedszkola ,szkoły podstawowe,szkoły średnie, szpitale, przychodnie diagnostyczne,urzędy, sklepy, galerie handlowe.

Taka lokalizacja to doskonałe miejsce dla osób ceniących sobie kontakt z naturą, aktywny tryb życia, ciszę i spokój, a także dla tych, którzy poszukują komfortu i wysokiej jakości życia w harmonii z otaczającym środowiskiem.

Wyobraź sobie miejsce, które nie tylko staje się Twoim domem, ale także odzwierciedleniem Twojej pasji i marzeń. Nieruchomość, którą mam dla Ciebie w ofercie, to więcej niż cztery ściany – to przestrzeń, w której każdy detal inspiruje do działania, rozwoju i tworzenia wspomnień na całe życie. Zachęcam do przyjazdu i obejrzenia tego wyjątkowego miejsca.

Beata
Zadzwoń do oferenta
Zadzwoń do oferenta: +48 603 989 919
Ogłoszeniodawca nie zgadza się na kontakt agencji nieruchomości.
Powiedz, że znalazłaś/eś ofertę na Bezposrednie.com. Dziękujemy.
Wyślij wiadomość do oferenta
Wyślij wiadomość do oferenta

Zgadzam się też na otrzymanie:

reklama