Dom na sprzedaż, woj. Polska / dodano: 11.01.2026
lubelskie, lubelski, Wojciechów, Palikije Drugie
Cena: 1 150 000 PLN  (6310,36 PLN/m²)
Powierzchnia mieszkalna
182,24 m²
Powierzchnia działki
1827 m²
Liczba pokoi
4
Rok budowy
2025
Typ domu
wolnostojący
Meble
Nie
Czy jest poddasze
Tak
Internet
Tak
Prąd
Tak
Gaz
Tak
Woda
Tak
Numer oferty
gratka-45675929
Data aktualizacji
2026-02-11 20:54:55
Opis:

Na sprzedaż nowoczesny, wolnostojący dom parterowy o podwyższonym standardzie deweloperskim, położony w malowniczej i spokojnej miejscowości Palikije Drugie (gmina Wojciechów).


To idealna propozycja dla osób szukających solidnego, ciepłego domu z dala od miejskiego zgiełku, ale z zachowaniem szybkiego i wygodnego dojazdu do Lublina.


O NIERUCHOMOŚCI

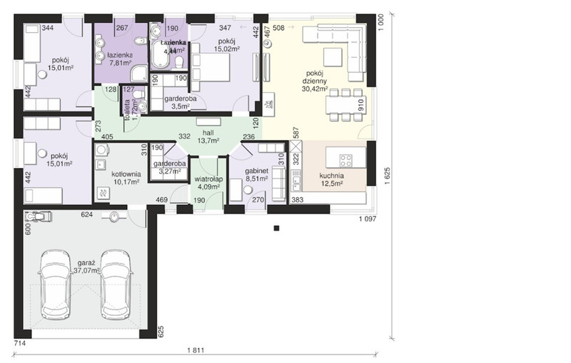
Dom realizowany według cenionego projektu "Dom przy Bukowej 33". Jest to niezwykle funkcjonalny bungalow, który wyróżnia się przemyślanym układem pomieszczeń oraz brakiem skosów, co znacznie zwiększa ustawność wnętrz.

  • Rok budowy: 2024-2025
  • Powierzchnia użytkowa: 135 m²
  • Garaż: Dwustanowiskowy w bryle budynku (ok. 37 m²), z bramą na pilota.
  • Działka: 1827 m² – duża, ustawna przestrzeń dająca ogromne możliwości aranżacji ogrodu.


ROZKŁAD POMIESZCZEŃ

Dom oferuje wyraźny i komfortowy podział na strefę dzienną i nocną:

  • Przestronny, doskonale doświetlony salon z wyjściem na taras.
  • Otwarta kuchnia z jadalnią.
  • 4 ustawne sypialnie – w tym jedna główna sypialnia typu Master Bedroom z prywatną łazienką i garderobą.
  • Druga łazienka (ogólnodostępna) oraz oddzielna toaleta dla gości.
  • Druga garderoba (zapewniająca dodatkowe miejsce do przechowywania).


STANDARD TECHNICZNY I ENERGOOSZCZĘDNOŚĆ

Budynek został wykonany z naciskiem na jakość materiałów i parametry cieplne, co w przyszłości zapewni niskie koszty eksploatacji.

Izolacja termiczna:

  • Ściany zewnętrzne: styropian 20 cm.
  • Strop: ocieplony warstwą 20 cm.
  • Posadzka: styropian 18 cm (doskonała baza pod ogrzewanie podłogowe).
  • Fundamenty: zaizolowane styrodurem 15 cm.

Wyposażenie i instalacje:

  • Dach: Dachówka ceramiczna glazurowana marki Roben.
  • Okna: PVC z zamontowanymi roletami zewnętrznymi.
  • Smart Home: Sterowanie roletami oraz bramą garażową z poziomu aplikacji w telefonie.
  • Ogrzewanie: W całym domu ogrzewanie podłogowe zasilane piecem gazowym (przyłącze gazu wykonane).
  • Wentylacja: Rozprowadzona instalacja pod rekuperację (wentylacja mechaniczna z odzyskiem ciepła).
  • Media: Woda z wodociągu, szambo szczelne.


STAN DEWELOPERSKI PLUS

Wnętrze przygotowane jest do indywidualnej aranżacji (tzw. biały montaż):

  • Tynki gipsowe maszynowe.
  • Wylewki betonowe.
  • Kotłownia wykończona (płytki ułożone, pomieszczenie gotowe do użytku, przygotowane przyłącza pod pralkę i suszarkę).
  • Rozprowadzona instalacja pod monitoring oraz domofon.


LOKALIZACJA

Adres: Palikije Drugie (kod 24-204), nr działki 343/5. Dom znajduje się w wyjątkowo urokliwej okolicy. W bliskim sąsiedztwie:

  • Sklep spożywczy, szkoła, kościół.
  • Staw- (na przeciwko działki, widok na staw z salonu) oraz park – idealne tereny na spacery i rekreację na świeżym powietrzu.


Sprzedaż bezpośrednia


Serdecznie zapraszam do kontaktu i na prezentację nieruchomości.

To dom, który trzeba zobaczyć na żywo, aby docenić jego potencjał i jakość wykonania.

Ada
Zadzwoń do oferenta
Zadzwoń do oferenta: +48 607 488 314
Ogłoszeniodawca nie zgadza się na kontakt agencji nieruchomości.
Powiedz, że znalazłaś/eś ofertę na Bezposrednie.com. Dziękujemy.
Wyślij wiadomość do oferenta
Wyślij wiadomość do oferenta

Zgadzam się też na otrzymanie:

reklama