Działka na sprzedaż, woj. Polska / dodano: 04.04.2025
mazowieckie, sochaczewski, Brochów, Śladów
Cena: 296 000 PLN  (160 PLN/m²)
Powierzchnia działki
1850 m²
Typ działki
budowlana
Numer oferty
gratka-40897401
Data aktualizacji
2025-11-18 17:25:20
Opis:

Na sprzedaż wyjątkowa zadrzewiona działka przy samej granicy malowniczej Puszczy Kampinoskiej – idealne miejsce na Twój prywatny azyl w sercu natury. W jej środkowej części rosną duże dęby. Z Warszawy Bemowo dojazd wynosi równo jedną godzinę.

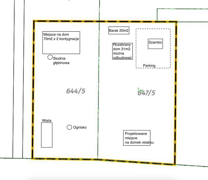
Działka składa się z dwój parceli o łącznej powierzchni 1850 m²:

Działka 644/5 = 841 m².
Działka 647/5 = 1009 m².

Uzyskane warunki zabudowy dla działki 644/5:

Wskaźnik wielkości powierzchni zabudowy w stosunku do działki, maksymalnie 0,2 (co daje 168,2m²)
Udział powierzchni biologicznie czynnej - minimalnie 70%.
Maksymalna intensywność zabudowy 0,35. (co daje 294,35 m²)
Maksymalna nadziemna intensywność zabudowy 0,35. (co daje 294,35 m²)
Maksymalna wysokość budynku aż 9 m!!! Chciałem zrobić wysoki nowoczesny parter i wysokie piętro.
Szerokość elewacji frontowej budynku mieszkalnego do 7,5m.
Dach - jednospadowy lub dwu spadowy o kącie nachylenia połaci od 0 do 45°.
Posadowienie budynku na płycie fundamentowej.

Warunki zabudowy dla działki 647/5:

Obecnie na tej działce, zgodnie z planem, znajduje się jednokondygnacyjny budynek niemieszkalny o powierzchni 31 m² i wysokości 3,15 m. Budynek rozebrałem ze względu na stan techniczny, który stwarzał zagrożenie. W jego miejscu można bez problemu odbudować podobny obiekt lub wystąpić o zgodę na jego rozbudowę, co daje dużą elastyczność w wykorzystaniu tej przestrzeni. Ew. zgłosić jego rozebranie żeby nie płacić dalej podatku.
Warunków zabudowy na tą część nie robiłem, przypuszczam że będą identycznej j.w. Działka oferuje potencjał do dalszej zabudowy – możliwość postawienia drugiego domu lub innego obiektu według Twoich potrzeb. Moim pomysłem jest tam domek z sauną i pokojem relaksu.


____

W odpowiedzi na liczne pytania informuję, że działka — mimo iż znajduje się przy wale małej rzeczki o głębokości poniżej 50 cm — NIE leży na terenie zalewowym. Screen potwierdzający tę informację został załączony do zdjęć.

_____


Na działce znajduje się:

Zainstalowany licznik energii elektrycznej trójfazowy oraz erbetka w baraku.
Zainstalowano dodatkową rozdzielnicę elektryczną, od której w ziemi zakopano niebieskie rury aroty do rozprowadzenia przewodów elektrycznych do domu, sauny, jacuzzi, wiaty, szamba, baraku oraz bramy.
Zainstalowana jest zaizolowana studnia głębinowa w ziemi, z hydroforem.
Zainstalowano rury wodne do domu, sauny, jacuzzi, nawodnienie ogrodu.
Zainstalowane betonowe szambo o pojemności 10 000 litrów.
Wokół działki posadzono szpaler z 70 świerków serbskich, których wysokość przekracza 2 metry.
Zbudowano wiatę ogniskową z miejscem na przechowywanie drewna.
Wyznaczone miejsce pod „domek relaksu” lub saunę, z doprowadzonym prądem i wodą.
Barak o powierzchni około 20 m², służący jako magazyn na narzędzia.
Wychodek.

Cała infrastruktura jest gotowa, a działka idealnie nadaje się na wypoczynek oraz realizację dalszych planów inwestycyjnych.

Marcin
Zadzwoń do oferenta
Zadzwoń do oferenta: +48 509 721 056
Ogłoszeniodawca nie zgadza się na kontakt agencji nieruchomości.
Powiedz, że znalazłaś/eś ofertę na Bezposrednie.com. Dziękujemy.
Wyślij wiadomość do oferenta
Wyślij wiadomość do oferenta

Zgadzam się też na otrzymanie:

reklama