Działka na sprzedaż, woj. Polska / dodano: 07.04.2025
Kręta, wielkopolskie, poznański, Czerwonak, Bolechowo
Cena: 17 000 000 PLN  (126,30 PLN/m²)
Powierzchnia działki
134 600 m²
Typ domu
inny
Typ działki
Rolno-budowlana
Dostęp do drogi
utwardzona
Numer oferty
gratka-40949637
Data aktualizacji
2026-04-29 14:28:13
Opis:

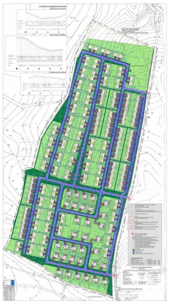
Na sprzedaż gotowy projekt deweloperski obejmujący realizację osiedla 214 domów jednorodzinnych w Bolechowie w gminie Czerwonak w bezpośrednim sąsiedztwie Puszczy Zielonki – jednej z najbardziej atrakcyjnych lokalizacji mieszkaniowych w okolicach Poznania.

Dokładna lokalizacja: 52.540318, 16.996385


Najważniejsze parametry:

  • powierzchnia terenu: 13,46 ha
  • PUM: 31 889 m²
  • intensywność: 0,24
  • zabudowa: szeregowa, bliźniacza i wolnostojąca

Status projektu:

  • warunki zabudowy
  • decyzja środowiskowa
  • projekt zagospodarowania terenu
  • pozwolenie na budowę (I etap inwestycji)
  • możliwość etapowania inwestycji

Atuty lokalizacji:

  • bezpośrednie sąsiedztwo terenów leśnych
  • szybki dojazd do Poznania
  • rozwijający się rynek zabudowy jednorodzinnej

Media:

  • Możliwość podłączenia gazu
  • Przez działkę przebiega linia średniego napięcia
  • Planowana budowa transformatora
  • Woda – konieczne indywidualne rozwiązanie


Cena: 17 000 000 PLN

(ok. 533 PLN/PUM)

Zapraszam do kontaktu.

Sprzedaż obejmuje grunt wraz z dokumentacją i decyzjami administracyjnymi.
Treść niniejszego ogłoszenia nie stanowi oferty handlowej w rozumieniu Kodeksu Cywilnego

MR SUB 2 spółka z ograniczona odpowiedzialnością S.K.A.
Zadzwoń do oferenta
Zadzwoń do oferenta: +48 880 305 557
Ogłoszeniodawca nie zgadza się na kontakt agencji nieruchomości.
Powiedz, że znalazłaś/eś ofertę na Bezposrednie.com. Dziękujemy.
Wyślij wiadomość do oferenta
Wyślij wiadomość do oferenta

Zgadzam się też na otrzymanie:

reklama