Działka na sprzedaż, woj. pomorskie / dodano: 15.11.2024
Budowlanych, pomorskie, Gdańsk, Kokoszki
Cena: 9 940 000 PLN  (355,05 PLN/m²)
Powierzchnia działki
27 996 m²
Typ domu
inny
Typ działki
inwestycyjna
Dostęp do drogi
asfaltowa/betonowa
Prąd
Tak
Numer oferty
gratka-38191175
Data aktualizacji
2026-04-15 08:45:10
Opis:

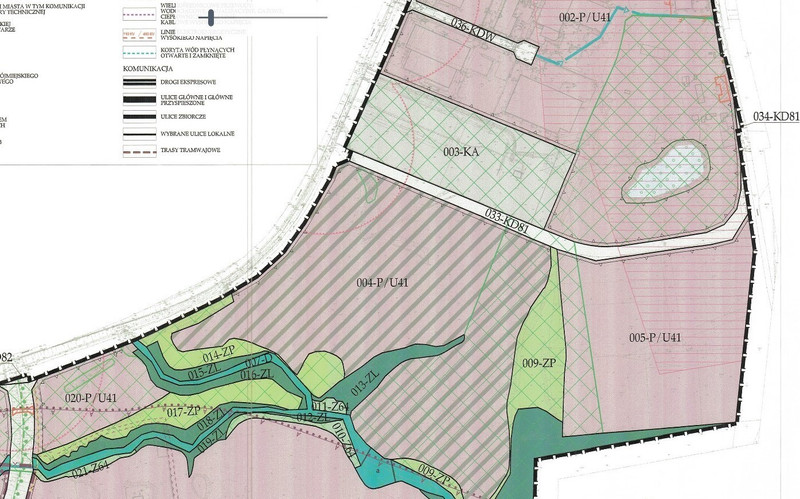
Na sprzedaż działka inwestycyjna w Gdańsku, nr 241/21, obręb 0025 Firoga, o powierzchni 2,7996 ha. Działka objęta jest Miejscowym Planem Zagospodarowania Przestrzennego (MPZP) z przeznaczeniem pod zabudowę produkcyjno-usługową (produkcja, składy, magazyny, usługi).

Lokalizacja:

Działka znajduje się w doskonałej lokalizacji, zapewniającej świetną komunikację:


  • Lotnisko: ok. 3,8 km
  • Obwodnica Trójmiasta: ok. 1,2 km
  • Stacja PKM Gdańsk Matarnia: ok. 600 m
  • Przystanek autobusowy: ok. 300 m

W najbliższym otoczeniu:


  • Inwestycje magazynowe firm 7R i Panattoni
  • Stacje benzynowe: Shell, BP, Orlen
  • Park Handlowy Matarnia
  • Siedziby i oddziały firm: Flugger, Satel, Jotul, Softcom

Infrastruktura:

Działka posiada bezpośredni zjazd z wyremontowanej w 2024 roku ulicy Budowlanych.

Pełne uzbrojenie:


  • Na działce: przyłącza kanalizacji sanitarnej, wodociągowe, kanalizacji teletechnicznej
  • W drodze: prąd, gaz (opcjonalnie ogrzewanie miejskie GPEC)

Dodatkowe informacje:


  • Wysoka intensywność zabudowy: do 60% powierzchni działki
  • Maksymalna wysokość zabudowy: do 23 m
  • Spełnione wymogi wynikające z art. 16 ustawy o drogach publicznych dla inwestycji niedrogowych

Możliwości inwestycyjne:


  • Budowa obiektu pod konkretnego najemcę
  • Wspólna inwestycja z partnerem kapitałowym


Plan miejscowy :2611 - MPZP Matarnia - między ulicą Budowlanych a torami PKM w mieście Gdańsku. (mapka z planu w zdjęciach).


Kontakt:

Po więcej informacji zapraszam do kontaktu.

Maciej Bronikowski
Zadzwoń do oferenta
Zadzwoń do oferenta: +48 691 030 033
Ogłoszeniodawca nie zgadza się na kontakt agencji nieruchomości.
Powiedz, że znalazłaś/eś ofertę na Bezposrednie.com. Dziękujemy.
Wyślij wiadomość do oferenta
Wyślij wiadomość do oferenta

Zgadzam się też na otrzymanie:

reklama