Działka na sprzedaż, woj. pomorskie / dodano: 27.11.2025
pomorskie, Gdańsk, Piecki-Migowo
Cena: 2 400 000 PLN  (1193,44 PLN/m²)
Powierzchnia działki
2011 m²
Typ działki
budowlana
Numer oferty
gratka-45197597
Data aktualizacji
2025-11-27 12:36:32
Opis:

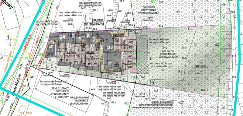
Przedmiotem sprzedaży jest działka nr 40/6 obr. 0052 w Gdańsku.

Działka posiada prawomocne pozwolenie na budowę 5 lokali (2 razy budynek mieszkalny 2-lokalowy, oraz jeden budynek mieszkalny jednorodzinny) jak na zał. zdjęciach.

Powierzchnia 2011 m2

Lokalizaja: Matemblewao / Morena

PUM= 831,36 m2

MEDIA:

Energia- na działce – 62,5kW.

Gaz- na działce- przyłącze średnicy dn32, średnie ciśnienie.

Woda i Kanalizacja- w działce, trwa odbiór techniczny z GIWK.

Woda dn90PE, kanalizacja dn200PVC, otrzymaliśmy WT na wodę budowlaną.

Ponadto wykonano i uzgodniono do realizacji projekt kanalizacji deszczowej- zaprojektowano przyłącze z przelewem awaryjnym dn110PVC.


Parametry techniczne zaprojektowanych budynków:

Budynek C- 2 lokalowy:

Powierzchnia zabudowy: 111,40 m2

Całkowita powierzchnia użytkowa budynku: 185,22m2 + podziemie 64,11m2

Wymiary budynku: 12,71 m x 8,20 m

Wysokość: 10,45 m od rzędnej terenu do kalenicy – budynek niski;

Budynek B -jednorodzinny:

Powierzchnia zabudowy: 63,60 m2

Całkowita powierzchnia użytkowa budynku: 112,52m2 + podziemie 41,00m2

Wymiary budynku: 6,43 m x 10,75 m

Wysokość: 10,45 m od rzędnej terenu do kalenicy – budynek niski;

Budynek A- 2 lokalowy:

Powierzchnia zabudowy: 138,95 m2

Całkowita powierzchnia użytkowa budynku: 264,14m2 + podziemie 164,37m2

Wymiary budynku: 10,0 m x 16,85 m

Wysokość: 10,49 m od rzędnej terenu do kalenicy – budynek niski;


STANDARD

Projektując przedmiotowe domy, zastanawialiśmy się przede wszystkim czy to nam by się w nich dobrze mieszkało. Na każdy dom poświęciliśmy ogrom czasu by zagospodarować go możliwie praktycznie i estetycznie. O jakości życia w projektowanych domach świadczą między innymi:


-ŚWIEŻE POWIETRZE ORAZ PRESTIŻOWA LOKALIZACJA:

Działka w otulinie słynnych lasów Matemblewskich należących do Trójmiejskiego Parku Krajobrazowego. Jest to przepiękne miejsce do życia, w którym można odnaleźć harmonię oraz przestrzeń do rekreacji. To wspaniałe miejsce położone jest w centrum Gdańska co czyni je jeszcze bardziej wyjątkowym. Bliskość Wrzeszcza (8 min.), Gdańska Głównego (12 min.) oraz obwodnicy Trójmiasta (7min) to strategiczna i rzadka lokalizacja pozwalająca na szybkie załatwienie codziennych spraw oraz odpoczynek w domu.


-KOMFORT AKUSTYCZNY:

Zastosowano podwójne ściany działowe z dylatacją biegnącą przez wszystkie kondygnacje.


-PRZESTRONNE GARAŻE

W każdym domu znajduje się przestronny garaż z miejscem na 2 do 6 samochodów. Ponadto trochę miejsca na warsztat, rowery, narty, kosiarkę. Te wszystkie rzeczy oraz trochę tych niepotrzebnych z pewnością znajdą tam swoje miejsce. „Światło” bramy garażowej wynosi 220cm co w większości przypadków pozwala wjeżdżać samochodom z bagażnikiem dachowym.


-OGRZEWANIE PODŁOGOWE:

Na wszystkich kondygnacjach mieszkalnych zaprojektowano ogrzewanie podłogowe. Daje ono najlepszy komfort cieplny, nie zabiera cennej przestrzeni oraz jest po prostu ekonomiczne. Jest również wskazane dla alergików w przeciwieństwie do tradycyjnych kaloryferów oddaje ono ciepło przez promieniowanie cieplne, a nie przez konwekcję, co pozwala uniknąć unoszenia w powietrze drobin kurzu z roztoczami.


-KOMINKI GAZOWE

W każdym domu zaprojektowano kominek gazowy.


-WENTYLACJA

Projektowana wentylacja mechaniczna. Każde pomieszczenie ma przewidziany swój niezależny pion wentylacyjny, a wybrane okna mają zaplanowane fabryczne nawiewniki. Dzięki temu połączeniu zapewniona jest odpowiednia cyrkulacja powietrza oraz komfort oddychania zawsze świeżym powietrzem.


-SCHODY

W każdym z domów zaprojektowano betonowe, solidne i komfortowe schody. Nie kręcone. Funkcjonalne.


-TOALETY

W każdym domu znajdują się minimum 3 toalety- na każdej kondygnacji po jednej.


-FOTOWOLTAIKA

Wpasowując się w trend energii odnawialnej oraz obniżenie kosztów życia w każdym z domów zaprojektowano dodatkowy pusty pion przeznaczony pod instalację fotowoltaiczną.


-OKNA

Zaprojektowano okna antywłamaniowe.


Do ceny należy doliczyć podatek VAT 23%, sprzedającym jest spółka z o.o.

Zapraszam do kontaktu505 038 476

Pośrednikom dziękuję.

Domsi sp. z o.o.
Zadzwoń do oferenta
Zadzwoń do oferenta: +48 505 038 476
Ogłoszeniodawca nie zgadza się na kontakt agencji nieruchomości.
Powiedz, że znalazłaś/eś ofertę na Bezposrednie.com. Dziękujemy.
Wyślij wiadomość do oferenta
Wyślij wiadomość do oferenta

Zgadzam się też na otrzymanie:

reklama