Działka na sprzedaż, woj. kujawsko-pomorskie / dodano: 18.03.2026
Nadgórna, kujawsko-pomorskie, Grudziądz, Tarpno
Cena: 355 000 PLN  (251,06 PLN/m²)
Powierzchnia działki
1414 m²
Typ domu
inny
Typ działki
budowlana
Numer oferty
gratka-46331255
Data aktualizacji
2026-04-02 02:11:45
Opis:

Wyjątkowa działka inwestycyjna w sercu Grudziądza – ogromny potencjał!

Na sprzedaż oferuję atrakcyjną działkę budowlaną położoną w ścisłym centrum Grudziądza, przy ul. Nadgórnej.

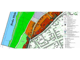
Nieruchomość objęta jest miejscowym planem zagospodarowania przestrzennego „Śródmieście Północne”, który przewiduje zabudowę mieszkaniową wielorodzinną oraz usługową. To doskonała okazja dla inwestorów – istnieje możliwość realizacji kamienic z lokalami usługowymi w parterach, co idealnie wpisuje się w charakter tej części miasta.

Działka stanowi grunt o dużym potencjale inwestycyjnym i składa się z dwóch parceli o łącznej powierzchni 1414 m².

Najważniejsze atuty nieruchomości:

  • pełne uzbrojenie terenu (gaz, woda, kanalizacja, energia),
  • prestiżowa lokalizacja w bezpośrednim sąsiedztwie Starego Miasta,
  • możliwość realizacji inwestycji mieszkaniowo-usługowej,
  • dynamicznie rozwijająca się i rewitalizowana okolica.

Nieruchomość położona jest w pobliżu najważniejszych atrakcji miasta, takich jak Spichrze w Grudziądzu, Bulwary nad Wisłą w Grudziądzu, Mury miejskie w Grudziądzu oraz Wieża Klimek. Lokalizacja ta przyciąga osoby poszukujące klimatycznego miejsca do życia oraz inwestorów dostrzegających potencjał historycznego centrum.

Ulica Nadgórna to ścisłe centrum miasta, zapewniające doskonały dostęp do pełnej infrastruktury – sklepów, restauracji, kawiarni, szkół, przedszkoli, komunikacji miejskiej oraz instytucji publicznych.

To idealna propozycja dla inwestora, który szuka miejsca pod projekt o wysokiej wartości i dużym potencjale zwrotu.






Katarzyna
Zadzwoń do oferenta
Zadzwoń do oferenta: +48 601 294 460
Ogłoszeniodawca nie zgadza się na kontakt agencji nieruchomości.
Powiedz, że znalazłaś/eś ofertę na Bezposrednie.com. Dziękujemy.
Wyślij wiadomość do oferenta
Wyślij wiadomość do oferenta

Zgadzam się też na otrzymanie:

reklama