Działka na sprzedaż, woj. małopolskie / dodano: 11.03.2026
Bolesława Prusa, małopolskie, Nowy Sącz, Zawada
Cena: 1 199 999 PLN  (400,94 PLN/m²)
Powierzchnia działki
2993 m²
Typ domu
inny
Typ działki
budowlana
Dostęp do drogi
asfaltowa/betonowa
Prąd
Tak
Numer oferty
gratka-46277803
Data aktualizacji
2026-03-26 02:16:19
Opis:

Do sprzedaży wyjątkowa działka położona w Nowym Sączu, przy ulicy Bolesława Prusa.

Działka o powierzchni 2993 metrów kwadratowych z domem


• Działka znajduje się bezpośrednio przy głównej drodze asfaltowej, co zapewnia łatwy dostęp i komunikację z innymi częściami miasta oraz okolicznymi miejscowościami.


• Dostępne są wszystkie niezbędne media, takie jak gaz, prąd, kanalizacja oraz woda,


• Działka jest ogrodzona, co zapewnia prywatność i bezpieczeństwo.


• Na terenie działki znajduje się już gotowy dom oraz garaż. Dom został oddany w 1962 roku. Ściany cegła 40 cm , ocieplone styropianem 5cm. Ogrzewanie kocioł węglowy, ciepła woda podgrzewana gazem. Do domu obecnie podłączone są wszystkie media – Gaz, prąd, kanalizacja miejska, woda z własnej studni ( woda miejska bezpośrednio przy działce)

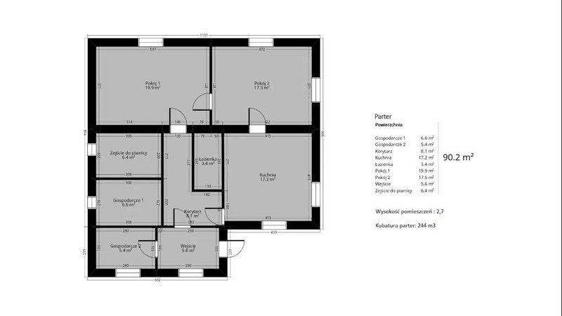
Dom składa się z piwnicy, parteru oraz poddasza z balkonem które można przeznaczyć na dodatkowe pokoje. Przybliżone rzuty każdej kondygnacji znajdą pastwo w zdjęciach


• W pobliżu sklep, przedszkole, restauracja oraz przystanek autobusowy


• W bliskiej okolicy dynamicznie rozwijające się centrum handlowe Cegielnia Zawada- 4 min samochodem


• Spokojna i dynamicznie rozwijająca się dzielnica


• Działka doskonale nadaje się nie tylko do zamieszkania, ale również do inwestycji, takich jak budowa domów szeregowych. To idealna okazja dla tych, którzy szukają możliwości rozwoju i zysku na rynku nieruchomości.


Zainteresowanych serdecznie zapraszamy do kontaktu, aby umówić się na oględziny działki oraz uzyskać więcej informacji

Piotr
Zadzwoń do oferenta
Zadzwoń do oferenta: +48 732 606 656
Ogłoszeniodawca nie zgadza się na kontakt agencji nieruchomości.
Powiedz, że znalazłaś/eś ofertę na Bezposrednie.com. Dziękujemy.
Wyślij wiadomość do oferenta
Wyślij wiadomość do oferenta

Zgadzam się też na otrzymanie:

reklama