Działka na sprzedaż, woj. Polska / dodano: 16.03.2025
małopolskie, krakowski, Skała, Minoga
Cena: 210 000 PLN  (70 PLN/m²)
Powierzchnia działki
3000 m²
Typ domu
inny
Typ działki
siedlisko
Numer oferty
gratka-40492365
Data aktualizacji
2026-03-26 02:14:19
Opis: Na sprzedaż działki siedliskowe – doskonała lokalizacja!

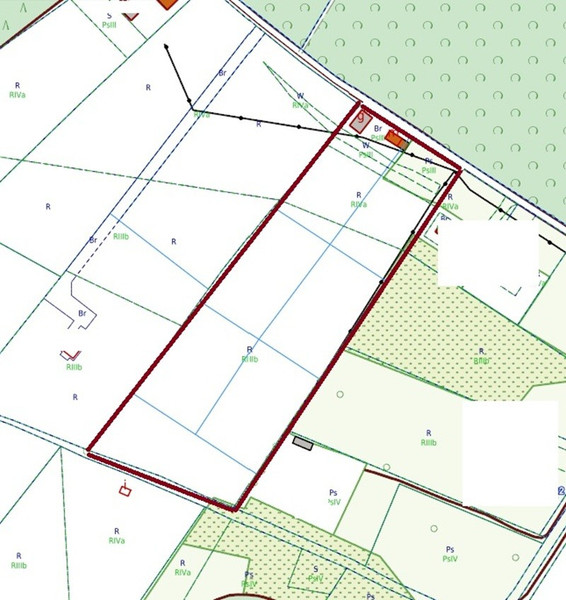
Oferujemy na sprzedaż działkę lub działki siedliskowe o łącznej powierzchni 1 ha, z możliwością zakupu całości lub wybranych działek o powierzchni nie mniejszej niż 30 arów.

Lokalizacja: Działki znajdują się w miejscowości Minoga, zaledwie 23 km od Krakowa, w otulinie Dłubniańskiego Parku Krajobrazowego, w bezpośrednim sąsiedztwie lasu. To idealne miejsce na budowę domu w zaciszu natury, z dogodnym dostępem do miasta.

Dojazd: Dojazd do działki o powierzchni 1 ha odbywa się drogą asfaltową gminną. W przypadku działek podzielonych dojazd drogą asfaltową, a następnie drogą wewnętrzną, z ustanowioną służebnością przejazdu.

Media: Na działce dostępne są wszystkie niezbędne media: prąd, woda i gaz, co znacznie ułatwia proces budowy.

Warunki zabudowy: Zgodnie z miejscowym planem zagospodarowania przestrzennego (MPZP), działka oznaczona jest symbolem „R” – przeznaczona jest pod zabudowę mieszkaniową zagrodową, co pozwala na budowę domu jednorodzinnego wraz z budynkami gospodarczymi.

Okolica: W sąsiedztwie znajdują się zabudowania, w odległości 50-150 m. To spokojna, cicha okolica, idealna do zamieszkania.

Zapraszam do kontaktu, aby uzyskać więcej informacji i umówić się na prezentację. Proszę o kontakt telefoniczny +48600 927 927.
Marta
Zadzwoń do oferenta
Zadzwoń do oferenta: +48 600 927 927
Ogłoszeniodawca nie zgadza się na kontakt agencji nieruchomości.
Powiedz, że znalazłaś/eś ofertę na Bezposrednie.com. Dziękujemy.
Wyślij wiadomość do oferenta
Wyślij wiadomość do oferenta

Zgadzam się też na otrzymanie:

reklama