Działka na sprzedaż, woj. Polska / dodano: 13.01.2026
pomorskie, kartuski, Somonino, Ramleje
Cena: 104 000 PLN  (189,44 PLN/m²)
Powierzchnia działki
549 m²
Typ działki
budowlana
Numer oferty
gratka-45692337
Data aktualizacji
2026-01-28 02:00:32
Opis:

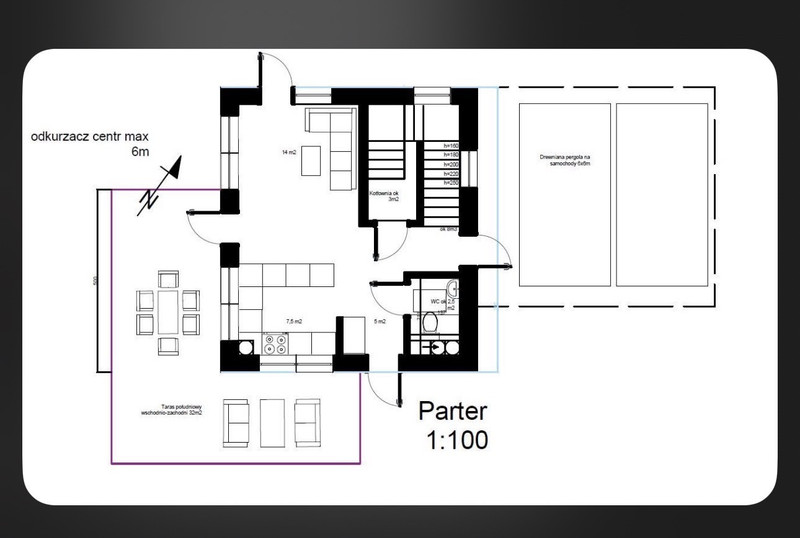
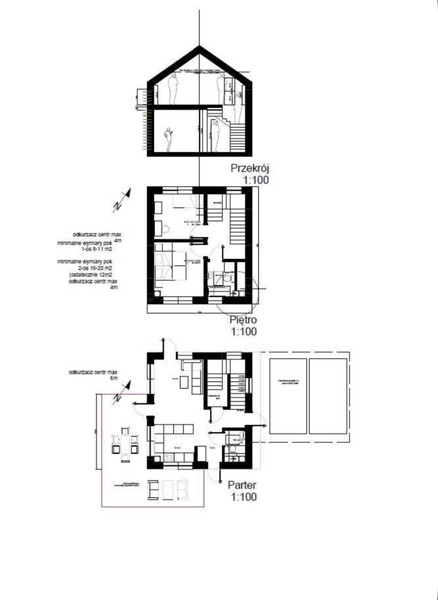
Działka 546 m² z prawomocnym pozwoleniem na budowę i projektem domu

Na sprzedaż działka o powierzchni 546 m², położona w Ramlejach, województwo pomorskie, z dojazdem do drogi asfaltowej. Nieruchomość posiada prawomocne pozwolenie na budowę oraz zatwierdzony projekt nowoczesnego domu jednorodzinnego, opracowany specjalnie pod tę działkę.

Inwestycja jest przygotowana w sposób umożliwiający rozpoczęcie budowy – komplet decyzji administracyjnych został już wydany, a warunki techniczne przyłączy zostały uzyskane (energia elektryczna i woda).

Projekt przewiduje zwartą, energooszczędną bryłę z dachem dwuspadowym 35°, przystosowanym do montażu instalacji fotowoltaicznej. Część dzienna została zorientowana na południowy zachód i północny zachód, z wyjściem na prywatne patio i taras obejmujący dwie elewacje budynku. Wejście do domu zaplanowano po stronie przeciwnej, co zapewnia pełną prywatność strefy ogrodu.

Lokalizacja

Ramleje to spokojna miejscowość w sercu Kaszub – w otoczeniu lasów i jezior, z szybkim dostępem do miasta:

  • Kartuzy – ok. 6 km
  • Gdańsk – ok. 32 km

Idealne połączenie:

cisza, zieleń i rekreacja + szybki dojazd do Trójmiasta

Na parterze znajduje się salon z kuchnią i jadalnią, WC, wiatrołap oraz pomieszczenie techniczne. Piętro obejmuje dwie sypialnie, łazienkę oraz komunikację doświetloną oknami połaciowymi Velux.

Oferta obejmuje działkę wraz z kompletem dokumentacji projektowej i decyzji administracyjnych, co pozwala przejść bezpośrednio do etapu realizacji



Cena ofertowa: 104 000 zł.

Rozsądna rozmowa jest zawsze mile widziana.


Po wiecej informacji i zdjec projektu zapraszam do wiadomosci prywatnej

Adam
Zadzwoń do oferenta
Zadzwoń do oferenta: +32 487 18 66 30
Ogłoszeniodawca nie zgadza się na kontakt agencji nieruchomości.
Powiedz, że znalazłaś/eś ofertę na Bezposrednie.com. Dziękujemy.
Wyślij wiadomość do oferenta
Wyślij wiadomość do oferenta

Zgadzam się też na otrzymanie:

reklama