Kamienica, blok na sprzedaż, woj. mazowieckie / dodano: 13.03.2026
Jakuba Jasińskiego, mazowieckie, Warszawa, Praga-Północ
Cena: 3 522 240 PLN  (8000 PLN/m²)
Powierzchnia
440,28 m²
Liczba pięter
4
Typ domu
inny
Numer oferty
gratka-46299537
Data aktualizacji
2026-03-28 02:11:23
Opis:

OGŁOSZENIE

Wspólnoty Mieszkaniowej

Jakuba Jasińskiego 4

03-705 Warszawa

Działając na podstawie uchwały nr 1 oraz uchwały nr 2 właścicieli lokali w budynku położonym w Warszawie przy ulicy Jakuba Jasińskiego nr 4 z dnia 26.02.2026r. , podjętych w trybie art. 22 ust. 2 i ust. 3 pkt 4-5a ustawy z dnia 24 czerwca 1994 r. o własności lokali, Wspólnota Mieszkaniowa Jakuba Jasińskiego 4 w Warszawie („Wspólnota Mieszkaniowa”) ogłasza zaproszenie do składania ofert w trybie rokowań na sprzedaż lokali powstałych w wyniku adaptacji nieruchomości wspólnej w obrębie poddasza (strychu) budynku wielomieszkaniowego położonego w Warszawie przy ul. Jakuba Jasińskiego 4 („Budynek”).

Budynek jest posadowiony na nieruchomości położonej w Warszawie przy ul. Jakuba Jasińskiego 4,

Przedmiot postępowania

Przedmiotem postępowania jest wybór kupującego, który nabędzie od Wspólnoty Mieszkaniowej prawo do przeprowadzenia adaptacji części nieruchomości wspólnej obejmującej poddasze (strych) Budynku, a następnie – po przeprowadzeniu prac budowlanych – prawo do ustanowienia i nabycia odrębnej własności lokali powstałych w wyniku tej adaptacji na zasadach określonych w umowie zawartej pomiędzy Wspólnotą Mieszkaniową a kupującym.

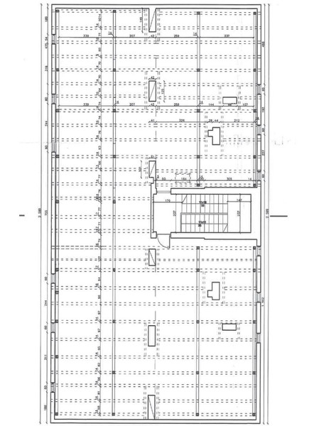
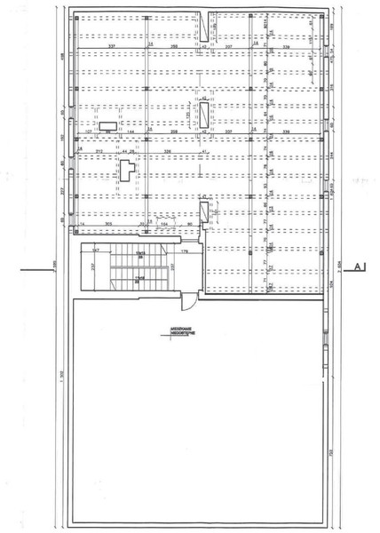
Poddasze stanowiące przedmiot postępowania obejmuje dwie części: część frontową oraz część oficynową.

Podane poniżej powierzchnie mają charakter orientacyjny i mogą ulec zmianie w wyniku sporządzenia dokumentacji projektowej oraz inwentaryzacji architektoniczno-budowlanej.

1) Część frontowa poddasza (strychu)

Część poddasza (strychu) Budynku zlokalizowana na ostatniej kondygnacji w pierwszej linii zabudowy od ul. Jasińskiego (część frontowa), wskazana na planie stanowiącym Załącznik nr 1 do niniejszego ogłoszenia.

Powierzchnia po podłodze części frontowej strychu wynosi 152,57 m², w tym:

· powierzchnia z wysokością do 1,4 m – 43,20 m²

· powierzchnia z wysokością 1,4–2,2 m – 44,54 m²

· powierzchnia z wysokością powyżej 2,2 m – 64,83 m²


2) Część oficynowa poddasza (strychu)

Część poddasza (strychu) Budynku zlokalizowana na ostatniej kondygnacji w drugiej linii zabudowy od ul. Jasińskiego (część oficynowa), wskazana na planie stanowiącym Załącznik nr 2 do niniejszego ogłoszenia.

Powierzchnia po podłodze strychu wynosi 287,71 m², w tym:

· powierzchnia z wysokością do 1,4 m – 81,97 m²

· powierzchnia z wysokością 1,4–2,2 m – 83,65 m²

· powierzchnia z wysokością powyżej 2,2 m – 122,09 m²


Łączna powierzchnia po podłodze przeznaczona do adaptacji wynosi 440,28 m².

Liczba, układ oraz powierzchnia lokali powstałych w wyniku adaptacji poddasza (strychu) będą wynikały z dokumentacji projektowej przygotowanej przez kupującego i zaakceptowanej przez Wspólnotę Mieszkaniową.

Cena

Minimalna cena sprzedaży prawa do ustanowienia i nabycia odrębnej własności lokali powstałych w wyniku adaptacji poddasza (strychu) wynosi nie mniej niż 8 000 zł (osiem tysięcy złotych) za 1 m² powierzchni strychu mierzonej po podłodze.

Oferenci mogą zaproponować cenę wyższą niż wskazana powyżej.

Zakres obowiązków kupującego

Kupujący wybrany w wyniku niniejszego postępowania będzie odpowiedzialny w szczególności za:

· przygotowanie koncepcji architektonicznej adaptacji poddasza (strychu),

· wykonanie niezbędnych ekspertyz technicznych oraz inwentaryzacji budowlanej,

· sporządzenie dokumentacji projektowej,

· uzyskanie wszelkich wymaganych uzgodnień, opinii i decyzji administracyjnych, w tym pozwolenia na budowę,

· realizację robót budowlanych związanych z adaptacją poddasza (strychu),

· wykonanie wszelkich prac niezbędnych do utworzenia samodzielnych lokali mieszkalnych,

· pokrycie kosztów związanych z realizacją inwestycji, w tym kosztów projektowych, administracyjnych oraz kosztów czynności notarialnych związanych z ustanowieniem odrębnej własności lokali.

Szczegółowy zakres praw i obowiązków stron zostanie określony w umowie zawartej pomiędzy Wspólnotą Mieszkaniową a wybranym kupującym.

Kryteria wyboru kupującego

Wybór kupującego zostanie dokonany przez Wspólnotę Mieszkaniowej przy uwzględnieniu w szczególności następujących kryteriów:

· oferowana cena,

· doświadczenie kupującego w realizacji podobnych inwestycji,

· wiarygodność finansowa kupującego,

· proponowany harmonogram realizacji inwestycji,

· zakres dodatkowych korzyści dla Wspólnoty Mieszkaniowej.

Wspólnota Mieszkaniowa nie jest zobowiązana do wyboru oferty zawierającej najwyższą cenę.

Informacje organizacyjne

Szczegółowe informacje można uzyskać w dni robocze od poniedziałku do piątku w godzinach 9.00-15.00 w siedzibie:

ProeM Service

Zarządzanie i Administrowanie Nieruchomościami

ul. Sierakowskiego 5 lok. 38

03-716 Warszawa

501 268 334

Istnieje możliwość dokonania wizji lokalnej poddasza (strychu) po wcześniejszym uzgodnieniu terminu z administratorem nieruchomości pod numerem606 641 038.

Składanie ofert

Oferty należy składać w zamkniętych kopertach z dopiskiem „Oferta – adaptacja poddasza Jasińskiego 4” na adres:

ProeM Service

Zarządzanie i Administrowanie Nieruchomościami

ul. Sierakowskiego 5 lok. 38

03-716 Warszawa

Termin na składanie ofert upływa dnia 8 maja 2026 r.

Zastrzeżenia

Wspólnota Mieszkaniowa zastrzega sobie prawo do zamknięcia procedury rokowań bez wyboru oferty oraz bez podania przyczyn.

Wspólnota Mieszkaniowa może w każdym czasie unieważnić prowadzone postępowanie w całości lub w części.

Wspólnota Mieszkaniowa zastrzega sobie prawo do prowadzenia negocjacji z wybranymi oferentami.

Koszty przygotowania i złożenia oferty ponosi oferent.

Niniejsze ogłoszenie ma charakter informacyjny i nie stanowi oferty w rozumieniu przepisów Kodeksu cywilnego.

Złożenie oferty nie stanowi podstawy do jakichkolwiek roszczeń wobec Wspólnoty Mieszkaniowej, w szczególności roszczenia o zawarcie umowy.


ProeM Service
Zadzwoń do oferenta
Zadzwoń do oferenta: +48 501 268 334
Ogłoszeniodawca nie zgadza się na kontakt agencji nieruchomości.
Powiedz, że znalazłaś/eś ofertę na Bezposrednie.com. Dziękujemy.
Wyślij wiadomość do oferenta
Wyślij wiadomość do oferenta

Zgadzam się też na otrzymanie:

reklama