Komercyjne na sprzedaż, woj. śląskie / dodano: 15.04.2025
Dworcowa, śląskie, Dąbrowa Górnicza, Ząbkowice
Cena: 2 300 000 PLN  (996,02 PLN/m²)
Powierzchnia
2309,19 m²
Numer oferty
gratka-41111411
Data aktualizacji
2025-12-02 02:15:08
Opis:

Dyrektor Wojewódzkiego Szpitala Specjalistycznego nr 5 im. św. Barbary w Sosnowcu ogłasza publiczny pisemny przetarg nieograniczony na sprzedaż prawa użytkowania wieczystego nieruchomości gruntowej, zabudowanej, wraz z prawem własności znajdujących się na niej budynków Wojewódzkiego Szpitala Specjalistycznego nr 5 im. św. Barbary w Sosnowcu, opisanej poniżej.
Przedmiotem przetargu jest :
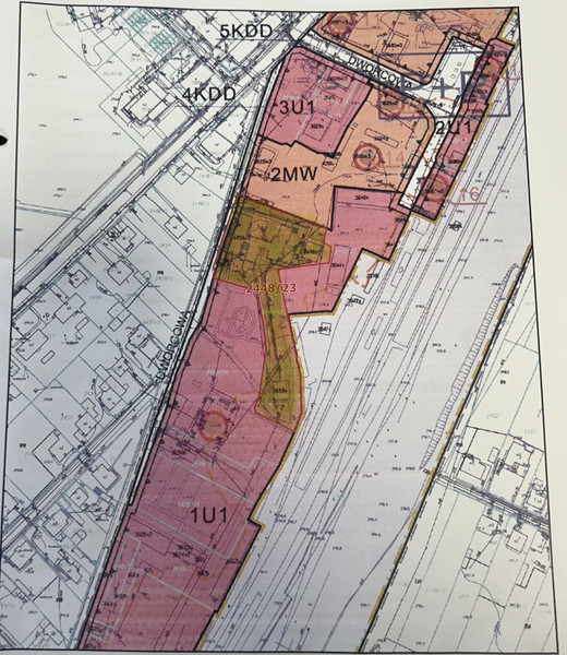
• działka o numerze: 2448/23,
• powierzchnia: 0,6103 ha,
• obręb: 0018,
• kartoteka mapy: 14,
• nr Księgi Wieczystej: KA1D/00050347/4, prowadzonej przez Sąd Rejonowy w Dąbrowie Górniczej, VI Wydział Ksiąg Wieczystych,
• rodzaj użytku: Bi,
• położenie: Dąbrowa Górnicza – Ząbkowice, ul. Dworcowa 19A, w bezpośrednim sąsiedztwie dworca kolejowego, oddalona około 100 metrów od drogi wojewódzkiej nr 796, wytyczonej od dzielnicy Pogoria w Dąbrowie Górniczej, do Zawiercia,
• nieruchomość ma nieregularny kształt, teren nieruchomości jest płaski, porośnięty wysokimi drzewami oraz porośnięty trawą,
• nieruchomość jest ogrodzona ogrodzeniem ze stalowych przęseł na betonowej podmurówce, brama wjazdowa i furtka stalowa,
• nieruchomość jest zabudowana trzema połączonymi ze sobą budynkami o charakterze biurowo-administracyjnym oraz trzema budynkami pomocniczymi o łącznej powierzchni użytkowej 2 309 , 19 m2. Ogrodzenie – częściowo siatka w ramach stalowych na słupkach stalowych na cokole, częściowo płot z płyt prefabrykowanych betonowych, drogi wewnętrzne wyasfaltowane. Lokalizację nieruchomości cechują duże możliwości rekreacyjne, na bezpośredni wpływ ma zadrzewienie terenu, sieć dróg oraz ścieżek spacerowych,
• miejscowy plan zagospodarowania przestrzennego miasta Dąbrowy Górniczej dla terenów
w rejonie ul. Jana Pawła II oraz terenów przemysłowych w rejonie ulic Tworzeń i Roździeńskiego zatwierdzony Uchwałą nr VIII/161/2015 Rady Miejskiej w Dąbrowie Górniczej z dnia 24.06.2015 roku i oznaczony jest symbolami:
U1 – tereny zabudowy usługowej, z podstawowym przeznaczeniem pod usługi publiczne i komercyjne,
KDD – tereny dróg publicznych klasy D – dojazdowej,
wartość nieruchomości – cena wywoławcza: 2.300,000 zł,
• wadium: 115.000,00 zł - stanowiące 5 % wartości nieruchomości należy wpłacić do dnia 09.01.2026r.


Nieruchomość jest wolna od wszelkich obciążeń i zobowiązań.
Oferty można składać osobiście lub listownie do dnia 15.01.2026 roku, do godziny 9:00 na adres prowadzącego sprzedaż lub w Kancelarii prowadzącego sprzedaż /pokój D-0-2/, w zamkniętej kopercie, w sposób uniemożliwiający zapoznanie się ze złożoną ofertą przed jej otwarciem, z dopiskiem „Oferta na zakup nieruchomości – ul. Dworcowa 19A, Dąbrowa Górnicza – nie otwierać do 15.01.2026 roku, do godziny 10:00”. Za termin złożenia Oferty uważa się termin wpływu Oferty, na adres prowadzącego sprzedaż. Otwarcie ofert jest jawne i nastąpi w dniu 15.01.2026 roku, o godz. 10:00, w siedzibie prowadzącego sprzedaż, w pokoju nr J0-03 – Dział Administracyjno-Gospodarczy.
Szczegółowe informacje zamieszczone są na stronie BIP Wojewódzkiego Szpitala Specjalistycznego im.św. Barbary w Sosnowcu.
Nieruchomość można oglądać po uprzednim uzgodnieniu telefonicznym (32 368 24 77)począwszy od dnia publikacji niniejszego ogłoszenia do dnia 09.01.2026r.

Wojewódzki Szpital Specjalistyczny nr 5 im. św.Babary w Sosnowcu
Zadzwoń do oferenta
Zadzwoń do oferenta: +48 606 883 173
Ogłoszeniodawca nie zgadza się na kontakt agencji nieruchomości.
Powiedz, że znalazłaś/eś ofertę na Bezposrednie.com. Dziękujemy.
Wyślij wiadomość do oferenta
Wyślij wiadomość do oferenta

Zgadzam się też na otrzymanie:

reklama