Lokal na sprzedaż, woj. Polska / dodano: 15.07.2025
Bolesława Chrobrego, lubuskie, strzelecko-drezdenecki, Strzelce Krajeńskie, Strzelce Krajeńskie
Cena: 6000 PLN  (30 PLN/m²)
Powierzchnia
200 m²
Piętro
1
Liczba pięter
1
Typ domu
inny
Numer oferty
gratka-42653893
Data aktualizacji
2026-04-25 02:08:38
Opis:

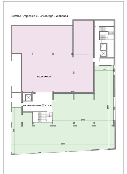
Oferujemy na wynajem elastyczną powierzchnię handlową (200–470 m²) w Galerii Rycerskiej – nowoczesnym i rozpoznawalnym obiekcie w centrum Strzelec Krajeńskich. Lokal można dostosować metrażowo do indywidualnych potrzeb najemcy.


Sąsiedztwo renomowanych marek:

Lokal znajduje się w bezpośrednim sąsiedztwie popularnych najemców, co przekłada się na wysoki ruch klientów:

  • Media Expert
  • Rossmann
  • Apteka Przyjazna
  • Farsun (market chiński)
  • Kraina AGD


Specyfikacja lokalu:

  • Powierzchnia: od 200 m² do 470 m²
  • Poziom: 1. piętro
  • Duże przeszklenia – doskonałe doświetlenie i widoczność z pasażu
  • Układ open space – łatwa adaptacja pod handel, usługi lub showroom


Atuty oferty:

  • Topowa lokalizacja w centrum Galerii Rycerskiej
  • Wysoki ruch pieszych – gwarancja stałego przepływu potencjalnych klientów
  • Nowoczesna przestrzeń
  • Reprezentacyjny wygląd galerii
  • Winda i łatwy dostęp dla klientów oraz dostawców
  • Winda towarowa dla Najemny
  • Parking naziemny dla klientów


Warunki najmu:

Szczegóły dotyczące ceny najmu i opłat eksploatacyjnych ustalane są indywidualnie – oferujemy elastyczne warunki dopasowane do Twojej działalności.


Zapraszamy do kontaktu:

Zadzwoń lub napisz, aby umówić się na prezentację lokalu i uzyskać pełne informacje.

887 257 333

Nikodem.matuszewski@gmail.com


Nie przegap okazji, aby rozwinąć swój biznes w prestiżowej lokalizacji w Strzelcach Krajeńskich!

Niko
Zadzwoń do oferenta
Zadzwoń do oferenta: +48 887 257 333
Ogłoszeniodawca nie zgadza się na kontakt agencji nieruchomości.
Powiedz, że znalazłaś/eś ofertę na Bezposrednie.com. Dziękujemy.
Wyślij wiadomość do oferenta
Wyślij wiadomość do oferenta

Zgadzam się też na otrzymanie:

reklama