Lokal do wynajęcia, woj. świętokrzyskie / dodano: 03.03.2026
Warszawska, świętokrzyskie, Kielce, Centrum
Cena: 7000 PLN  (40,94 PLN/m²)
Powierzchnia
171 m²
Piętro
parter
Typ domu
inny
Numer oferty
gratka-46215083
Data aktualizacji
2026-03-18 02:13:52
Opis:

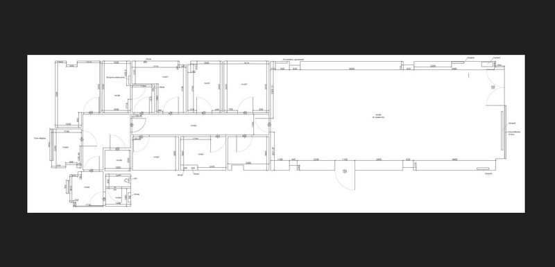
Na wynajem lub sprzedaż atrakcyjny lokal usługowy 171 m² w budynku Apollo VIP przy ul. Warszawskiej w Kielcach.


- Parter – wejście prosto z ulicy

- Duże witryny – świetna widoczność

- Bardzo duży ruch

- Tylne wyjście na dostawy

- Zamykany parking z tyłu

- Alarm

- Możliwość reklamy na froncie

- Możliwość podziału lokalu

- Obok wiele lokali usługowych w tym gabinety lekarskie i stomatologiczne, kancelarie prawne, brokerzy ubezpieczeniowi.


Wcześniej apteka – lokal przystosowany pod działalność medyczną, ale ściany działowe dają możliwość dowolnej aranżacji.


Media: ogrzewanie miejskie, woda, prąd.

Węzeł socjalny (WC + zlew).

Stan: do odświeżenia.


Idealny pod gabinety medyczne, kancelarie, usługi, bank, sklep specjalistyczny.

Elastyczne warunki.


Czynsz + media (przy najmie).

Zadzwoń i umów się na oględziny.

Piotr
Zadzwoń do oferenta
Zadzwoń do oferenta: +48 696 416 206
Ogłoszeniodawca nie zgadza się na kontakt agencji nieruchomości.
Powiedz, że znalazłaś/eś ofertę na Bezposrednie.com. Dziękujemy.
Wyślij wiadomość do oferenta
Wyślij wiadomość do oferenta

Zgadzam się też na otrzymanie:

reklama