Lokal do wynajęcia, woj. Polska / dodano: 15.02.2026
Adama Mickiewicza, podkarpackie, leżajski, Leżajsk
Cena: 25 PLN  (0,10 PLN/m²)
Powierzchnia
250 m²
Piętro
2
Liczba pięter
2
Typ domu
inny
Numer oferty
gratka-46109771
Data aktualizacji
2026-02-24 17:03:47
Opis:

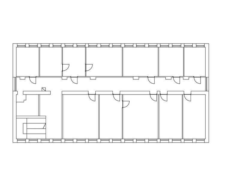
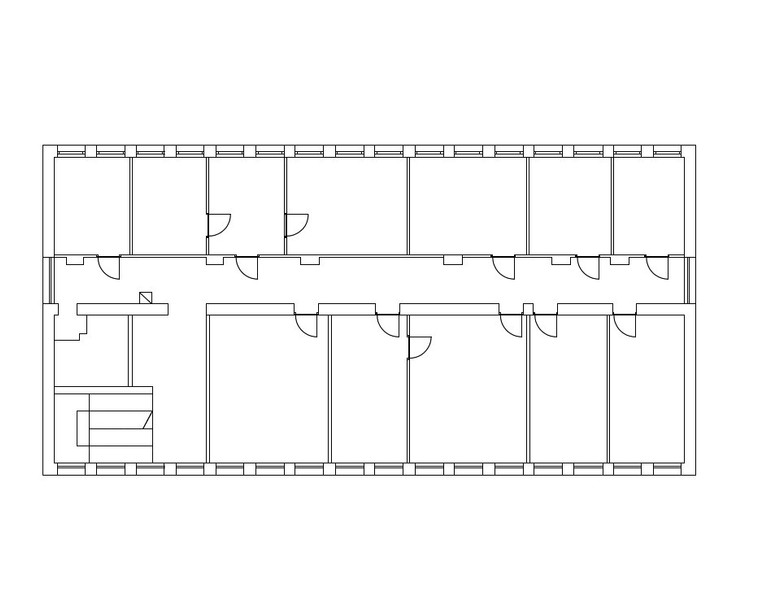
LOKAL USŁUGOWO-BIUROWY DO ADAPTACJI — LEŻAJSK, UL. MICKIEWICZA

MOŻLIWY WYNAJEM CAŁOŚCI LUB POJEDYNCZYCH POMIESZCZEŃ


Do wynajęcia budynek usługowo-biurowy o powierzchni ok. 250 m² zlokalizowany przy ul. Mickiewicza w Leżajsku — w bardzo dobrej, dobrze skomunikowanej części miasta.


W pobliżu znajdują się:

• dworzec PKP

• szkoły

• sklep Biedronka

• zabudowa mieszkaniowa i usługowa


Lokalizacja zapewnia łatwy dojazd oraz dobrą widoczność dla działalności usługowej.

Nieruchomość składa się z:

• 12 pomieszczeń o powierzchni ok. 12–30 m²

• długiego korytarza

• toalety

• zaplecza technicznego

Istnieje możliwość wynajęcia:

• całego budynku (250 m²)

• pojedynczych pomieszczeń


LOKAL DO WŁASNEJ ARANŻACJI

Budynek wymaga wykończenia — przestrzeń można dostosować do własnych potrzeb biznesowych.

OKRES BEZCZYNSZOWY ZA ADAPTACJĘ

Właściciel dopuszcza możliwość wynajmu bez czynszu przez ustalony okres (np. do 12 miesięcy) w zamian za wykonanie prac wykończeniowych przez najemcę.


Idealne miejsce na:

• gabinety medyczne / rehabilitację

• biuro rachunkowe

• szkołę językową

• coworking

• usługi beauty

• biura firmowe


Warunki najmu do uzgodnienia.

Zapraszam do kontaktu telefonicznego i obejrzenia nieruchomości.

Pawel
Zadzwoń do oferenta
Zadzwoń do oferenta: +48 577 962 239
Ogłoszeniodawca nie zgadza się na kontakt agencji nieruchomości.
Powiedz, że znalazłaś/eś ofertę na Bezposrednie.com. Dziękujemy.
Wyślij wiadomość do oferenta
Wyślij wiadomość do oferenta

Zgadzam się też na otrzymanie:

reklama