Magazyn do wynajęcia, woj. Polska / dodano: 12.11.2025
Kielecka, świętokrzyskie, kielecki, Morawica, Bilcza
Cena: 6952 PLN  (22 PLN/m²)
Powierzchnia
316 m²
Typ domu
inny
Numer oferty
gratka-45003573
Data aktualizacji
2026-05-07 14:41:13
Opis:

Wynajem powierzchni magazynowych


Bilcza g. Morawica / woj. świętokrzyskie

Bezpośrednie sąsiedztwo drogi krajowej nr 73 oraz S7 szybki dojazd i sprawna obsługa transportu ciężkiego


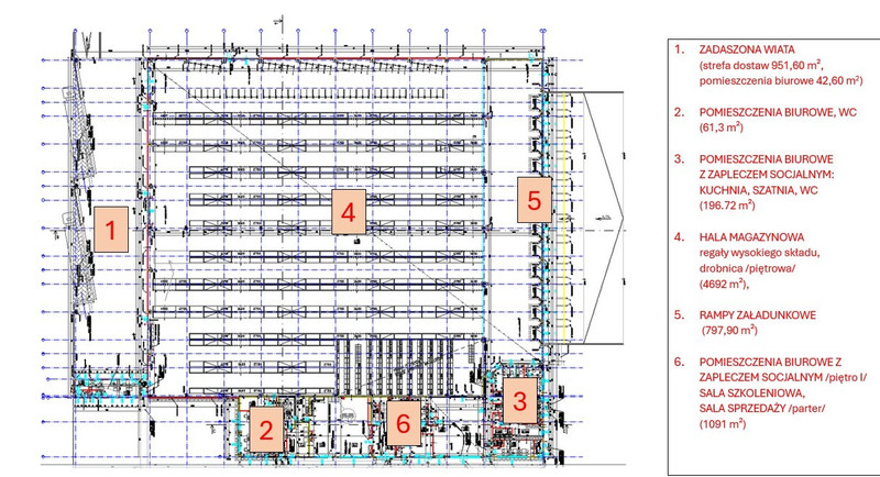
Wynajem powierzchni magazynowej w hali wysokiego składu,

7 sektorów o powierzchni 316 m² każdy z możliwością łączenia

dodatkowo sektor 2-piętrowy do składowania drobnicy o powierzchni 632 m²

każdy z sektorów ma dostęp do węzła komunikacyjnego z bramą do placu lub rampy


Możliwość wynajęcia całości lub konkretnego sektora.


koszt wynajmu: 22 zł/m² netto + media


Hala magazynowa o łącznej powierzchni 6 441 m² położna jest w Bilczy (gmina Morawica), teren jest ogrodzony, monitorowany, cała hala to magazyn wysokiego składu z regałami paletowymi (wysokość nogi netto 8000 mm, łączna ilość miejsc paletowych 9000) oraz regałami wspornikowymi na rury, inteligentne energooszczędne oświetlenie LED, 18 bram (w tym 3 bramy z poziomu zero i 15 bram z podjazdami i rampą, dwie rampy z rampą hydrauliczną, istniejąca infrastruktura do WMSa (samo okablowanie bez urządzeń peryferyjnych), ogrzewanie gazowe, podłogówka,


Dodatkowo istnieje możliwość wynajmu:

- zaplecza biurowo - socjalnego przylegającego bezpośrednio do magazynu (wraz miejscami parkingowymi) o pow. 245 m² w cenie 45 zł/m²

- placu składowania towaru o pow. 2 000 m² w cenie 2,5 zł/m²


Czynsz jednego sektora o pow. 316 m² to 6952 zł netto (22 PLN netto/m²) + media wg zużycia (prąd, gaz, woda) + koszt powierzchni biurowych (45 PLN netto/m²), placu (2,5 PLN netto/m²)

Hydrosolar Sp. z o.o. Wschód Sp. k.
Zadzwoń do oferenta
Zadzwoń do oferenta: +48 510 023 056
Ogłoszeniodawca nie zgadza się na kontakt agencji nieruchomości.
Powiedz, że znalazłaś/eś ofertę na Bezposrednie.com. Dziękujemy.
Wyślij wiadomość do oferenta
Wyślij wiadomość do oferenta

Zgadzam się też na otrzymanie:

reklama