Magazyn do wynajęcia, woj. Polska / dodano: 17.02.2026
Kielecka, świętokrzyskie, kielecki, Morawica, Bilcza
Cena: 142 000 PLN  (22,05 PLN/m²)
Powierzchnia
6441 m²
Typ domu
inny
Numer oferty
gratka-46118893
Data aktualizacji
2026-03-04 02:02:37
Opis:

Wynajem powierzchni magazynowej z zapleczem biurowo-socjalnym w miejscowości

Bilcza gmina Morawica – 3 km od granicy Kielc. Na obiekt składają się:

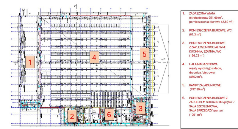
  • hala magazynowa o pow. 6 441 m² w tym:
  1. magazyn wysokiego składowania o pow. 4 692 m²
  2. strefa załadunkowa o pow. 798 m²
  3. strefa dostaw o pow. 951 m²
  • zaplecze biurowo - socjalne przylegające bezpośrednio do magazynu o pow. 245 m²
  • plac składowania o pow. 3 000 m2
  • biura o pow. 1 091 m²
  • parking


Cały teren jest ogrodzony, monitorowany, magazyn wysokiego składu z regałami paletowymi (wysokość nogi netto 8000 mm, ilość miejsc paletowych 9000) oraz regałami wspornikowymi na rury, inteligentne energooszczędne oświetlenie LED, 18 bram (w tym 3 bramy z poziomu zero i 15 bram z podjazdami i rampą, dwie rampy z rampą hydrauliczną, istniejąca infrastruktura do WMSa (samo okablowanie bez urządzeń peryferyjnych), ogrzewanie gazowe, podłogówka, wyposażone pomieszczenia biurowe i socjalne (szatnia, prysznice , stołówka, WC)


Możliwość wynajęcia całości lub wydzielonej części


Koszt wynajmu netto /ceny podlegają negocjacji/:

Magazyn 22 zł / m2

Biura 45 zł / m2

Plac zewnętrzny 2,5 zł / m2

Hydrosolar Sp. z o.o. Wschód Sp. k.
Zadzwoń do oferenta
Zadzwoń do oferenta: +48 602 228 393, +48 510 023 056
Ogłoszeniodawca nie zgadza się na kontakt agencji nieruchomości.
Powiedz, że znalazłaś/eś ofertę na Bezposrednie.com. Dziękujemy.
Wyślij wiadomość do oferenta
Wyślij wiadomość do oferenta

Zgadzam się też na otrzymanie:

reklama