Magazyn do wynajęcia, woj. Polska / dodano: 11.03.2026
kujawsko-pomorskie, rypiński, Rypin
Cena: 53 574 PLN  (26,30 PLN/m²)
Powierzchnia
2037 m²
Typ domu
inny
Numer oferty
gratka-46278497
Data aktualizacji
2026-03-11 10:08:33
Opis:

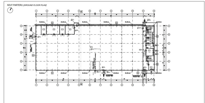
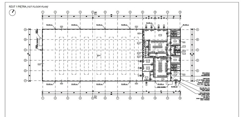
Do wynajęcia nowa hala produkcyjno-magazynowa o powierzchni 2 037,47 m², położona w Rypinie (woj. kujawsko-pomorskie).

Obiekt stanowi II etap rozbudowy kompleksu przemysłowego i został zaprojektowany jako nowoczesna przestrzeń dla działalności produkcyjnej, magazynowej oraz logistycznej.

Hala zostanie oddana do użytkowania w 3 kwartale tego roku.

Parametry hali

  • powierzchnia: 2 037,47 m²
  • przeznaczenie: produkcja / magazyn / logistyka
  • konstrukcja: prefabrykowana żelbetowa
  • posadzki przemysłowe
  • instalacje elektryczne i teletechniczne
  • instalacja wodno-kanalizacyjna
  • instalacja gazowa
  • wentylacja mechaniczna
  • instalacja przeciwpożarowa
  • oświetlenie LED

Hala została zaprojektowana jako elastyczna przestrzeń produkcyjno-logistyczna, umożliwiająca dopasowanie do potrzeb działalności najemcy.

Teren inwestycji

Obiekt znajduje się na przygotowanym terenie przemysłowym, zapewniającym komfortową obsługę operacyjną.

Do dyspozycji najemcy:

  • duży plac manewrowy dla transportu ciężkiego
  • drogi wewnętrzne
  • miejsca parkingowe
  • oświetlenie terenu
  • ogrodzenie i brama wjazdowa
  • infrastruktura odwodnienia i kanalizacji deszczowej

Układ komunikacyjny umożliwia sprawne funkcjonowanie działalności logistycznej oraz produkcyjnej.

Lokalizacja

Rypin – miasto o rosnącym znaczeniu dla działalności przemysłowej.

Atuty lokalizacji:

  • dobre skomunikowanie regionalne
  • dostępność pracowników
  • niewielka liczba nowoczesnych hal przemysłowych w promieniu ok. 50 km

Możliwość najmu

  • samodzielnie
  • wraz z halą o powierzchni ok. 1 540 m²
  • jako cały kompleks ok. 3 577 m²

Zapraszamy do kontaktu w celu uzyskania szczegółowych informacji.

691 202 727


26,30zł netto za m2, wyliczona cena podana w netto

Klassika Sp. z o.o.
Zadzwoń do oferenta
Zadzwoń do oferenta: +48 691 202 727
Ogłoszeniodawca nie zgadza się na kontakt agencji nieruchomości.
Powiedz, że znalazłaś/eś ofertę na Bezposrednie.com. Dziękujemy.
Wyślij wiadomość do oferenta
Wyślij wiadomość do oferenta

Zgadzam się też na otrzymanie:

reklama