Mieszkanie na sprzedaż, woj. małopolskie / dodano: 14.01.2026
Mariana Domagały, małopolskie, Kraków, Bieżanów-Prokocim, Os. Złocień
Cena: 549 000 PLN  (13 725 PLN/m²)
Powierzchnia mieszkalna
40 m²
Liczba pokoi
2
Piętro
2
Liczba pięter
4
Numer oferty
gratka-45702691
Data aktualizacji
2026-01-29 02:06:26
Opis:

Mamy do sprzedania piękne mieszkanie o powierzchni około 40 m2, w pełni wyposażone, gotowe do wprowadzenia się, w bloku z 2023 roku.


Znajduje się w zielonej, dobrze skomunikowanej i szybko rozwijającej się dzielnicy Krakowa - na osiedlu Złocień.


Lokal znajduje się na 2. piętrze w bloku z windą, ekspozycja zachodnia.


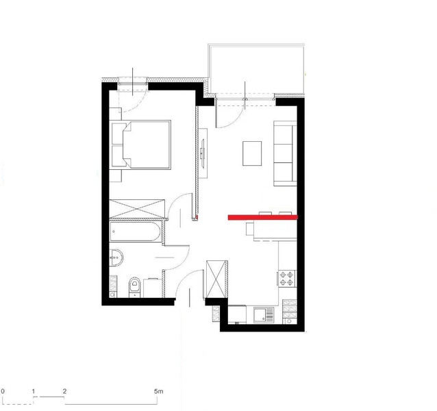
Mieszkanie składa się z:

  • salonu z kuchnią (ze ścianką działową)
  • wyciszonej sypialni
  • łazienki z WC
  • przedpokoju
  • balkonu


W 12 minut piechotą można dojść do przystanku kolejowego Kraków Złocień SKA - skąd pociągiem dojedzie się do stacji Kraków Główny w 15 minut.


Nieopodal bloku są przystanki autobusowe, z których jadą linie nr 125, 163, 195 i nocna 605.

Do mieszkania jest przypisane miejsce postoje naziemne - jest DODATKOWO PŁATNE W KWOCIE 45 000 ZŁOTYCH (na tej samej księdze wieczystej).


ŁĄCZNA CENA - 594 000 ZŁ (do negocjacji):

  • 549 000 zł - mieszkanie
  • 45 000 - miejsce parkingowe naziemne


Odległość do centrum handlowego Atut to 4-5 minut na piechotę. Są tam następujące sklepy:

  • Stokrotka,
  • Buczek,
  • punkt pobrań ALAB,
  • Pepco,
  • Empik,
  • sklep zoologiczny,
  • Żabka,
  • mięsny,
  • pizzeria,
  • przedszkole,
  • budka z kebabem,
  • Poczta Polska,
  • barber,
  • kwiaciarnia,
  • sklep z mrożonkami.


Apteka Słoneczna i Biedronka są w odległości ok. 8 minut pieszo.


Dodatkowe atrakcje lub inne ważne informacje:

  • w najbliższych latach na Złocieniu ma powstać linia tramwajowa;
  • około 30 sekund spacerem, koło naszego bloku jest mini park.


Numer telefonu:696 454 792

Skontaktuj się (gdybym nie odebrał - proszę o SMS-a)

Pawe?
Zadzwoń do oferenta
Zadzwoń do oferenta: +48 696 454 792
Ogłoszeniodawca nie zgadza się na kontakt agencji nieruchomości.
Powiedz, że znalazłaś/eś ofertę na Bezposrednie.com. Dziękujemy.
Wyślij wiadomość do oferenta
Wyślij wiadomość do oferenta

Zgadzam się też na otrzymanie:

reklama