Mieszkanie na sprzedaż, woj. kujawsko-pomorskie / dodano: 10.01.2026
Ignacego Paderewskiego, kujawsko-pomorskie, Bydgoszcz, Bocianowo-Śródmieście-Stare Miasto, Śródmieście
Cena: 599 000 PLN  (6591,83 PLN/m²)
Powierzchnia mieszkalna
90,87 m²
Czynsz dla adm.
276 PLN
Liczba pokoi
4
Piętro
parter
Liczba pięter
3
Rok budowy
1915
Typ domu
inny
Materiał budowlany
cegła
Meble
Nie
Piwnica
Tak
Domofon
Tak
Internet
Tak
Prąd
Tak
Gaz
Tak
Woda
Tak
Numer oferty
gratka-45667631
Data aktualizacji
2026-03-14 02:16:43
Opis:

SPRZEDAJĘ BEZPOŚREDNIO - PRYWATNIE


  • PEŁNA WŁASNOŚĆ - CZYSTA KSIĘGA WIECZYSTA.
  • PRESTIŻOWA I NIEZWYKLE WYGODNA LOKALIZACJA.
  • IDEALNE MIEJSCE DO ZAMIESZKANIA LUB NA WYNAJEM.
  • INWESTYCJA, KTÓREJ WARTOŚĆ ROŚNIE Z POWODÓW HISTORYCZNYCH I ARCHITEKTONICZNYCH (BARDZO MAŁO TAKICH MIESZKAŃ).
  • KAMIENICA PO WYMIANIE DACHU + NOWA ELEWACJA I REMONT KLATEK SCHODOWYCH
  • TAK SOLIDNIE JUŻ SIĘ NIE BUDUJE - TO NIE WRÓCI.
  • KAMIENICA BEZ NADZORU KONSERWATORSKIEGO.


Oferuję na sprzedaż wyjątkowe mieszkanie w dzielnicy Muzycznej, w narożnikowej, historycznej kamienicy przy ul. Paderewskiego / Zamoyskiego.


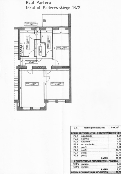
Powierzchnia całkowita nieruchomości - 105,56 m2:

90,87 m2 - mieszkanie,

6,86 m2 - zabudowany balkon,

7,83 m2 - 2 x piwnica.


Wysokość pomieszczeń - 3,40m.


W skład mieszkania wchodzą:

pokój 01 - 24,82 m2,

pokój 02 - 20,55 m2,

pokój 03 - 16,76 m2,

pokój 04 - 6,14 m2,

kuchnia - 9,39 m2,

spiżarnia - 1,33 m2,

łazienka z w.c. - 3,84 m2,

hol / korytarz - 8,04 m2,

Z sypialni jest wyjście na zabudowany oknami balkon - 6,86 m2 - stanowiący powierzchnię dodatkową mieszkania, nie wliczaną do jego powierzchni użytkowej.

Do nieruchomości przypisane są 2 piwnice;

piwnica 01 - 5,55 m2,

piwnica 02 - 2,28 m2


W załączeniu rzut pionowy całego lokalu.

Mieszkanie wymaga remontu ale za to możliwe są modyfikacje i rearanżacja pomieszczeń (po spełnieniu stosownych wymogów).

W pokojach piece kaflowe (możliwa instalacja elektrycznych wkładów grzejnych).

Możliwe ogrzewanie gazowe (piec dwufunkcyjny).

Do mieszkania doprowadzony gaz miejski (piecyk gazowy typu Junkers).

Woda opomiarowana. Prąd 230V. Okna PCV a na balkonie drewniane.

Możliwość podłączenia światłowodu oraz kablówki.

Budynkiem zarządza wspólnota mieszkaniowa.


Wyjątkowość nieruchomości - historia, budowa i stan obecny:


Data powstania oraz projekt

Kamienica została wzniesiona na przełomie lat 1910–1915. Jej projekt został wykonany przez uznanego bydgoskiego architekta Rudolfa Kerna, który był jednym z czołowych przedstawicieli secesji i wczesnego modernizmu w Bydgoszczy. Miał on ogromny wpływ na kształt architektoniczny Bydgoszczy. Budynek został zlecony przez inwestora Emila Heydemanna, a pierwszym właścicielem (lub najemcą) był Ernst Richter, pracownik administracji kolejowej. Ostatecznie kamienica została kupiona przez polskich właścicieli.

Styl architektoniczny

Kamienica prezentuje charakterystyczną dla początku XX wieku mieszankę stylów z elementami Art Nouveau, przeważają jednak prostsze, pionowe linie, typowe dla wczesnego modernizmu. Obie fasady – od ul. Zamoyskiego oraz ul. Paderewskiego – zostały zaprojektowane tak, aby podkreślić elegancję budynku przy jednoczesnym zachowaniu funkcjonalności nowoczesnych rozwiązań.

Powstanie kamienicy wpisuje się w okres intensywnej zabudowy Śródmieścia, kiedy to budynki łączyły funkcje mieszkalne z reprezentacyjnymi, co czyni ją dziś cennym przykładem dziedzictwa architektonicznego miasta.

Remont i modernizacja

Kamienica przeszła gruntowny remont, który zakończył się w 2018 roku. W wyniku prac modernizacyjnych odrestaurowano elewacje, zachowując przy tym oryginalne detale architektoniczne, charakterystyczne dla secesji). Wymieniono w całości dachówkę ceramiczną na nową, wyremontowano wszystkie klatki schodowe. Dzięki temu budynek łączy historyczny charakter z nowoczesnymi standardami technicznymi i komfortem użytkowania. Obecnie kamienica prezentuje się bardzo atrakcyjnie – zarówno ze względu na odrestaurowaną elewację, jak i wysoką jakość wykonanych prac remontowych.

Atuty:

  • Prestiżowa lokalizacja - kamienica położona jest w centralnej, historycznej części Bydgoszczy, w tzw. "dzielnicy muzycznej". W bezpośrednim sąsiedztwie 1km znajdują się m.in. Akademia Muzyczna, Filharmonia Pomorska, Szkoła muzyczna I i II stopnia, Teatr Polski, Uniwersytet Kazimierza Wielkiego, Biblioteka Uniwersytecka, VI Liceum Ogólnokształcące, Park Kochanowskiego, ogród botaniczny, Park Witosa oraz ogrody Sielanki, które są dodatkowym atutem tej lokalizacji. Także liczne sklepy spożywcze i piekarnie (Stokrotka, Żabka, Staropolska), Galeria Handlowa FOCUS oraz wiele innych sklepów, szpital, przedszkola, oraz przystanki komunikacji miejskiej (autobusowe i tramwajowe). Lokalizacja ta gwarantuje zatem wysoki standard życia oraz dostęp do bogatej oferty kulturalnej i rekreacyjnej.
  • Dziedzictwo architektoniczne - budynek został zaprojektowany przez Rudolfa Kerna – jednego z najważniejszych architektów okresu secesji i wczesnego modernizmu w Bydgoszczy. Niepowtarzalna architektura, charakterystyczna zarówna dla okresu, w którym powstała jak i dla dzielnicy Bydgoszczy, w której jest zlokalizowana jest niezaprzeczalnym atutem, nie przybędzie bowiem ani obiektów o tej architekturze, ani mieszkań w historycznej architekturze i tak korzystnej lokalizacji.
  • Solidne wykonanie kamienicy według niemieckich, przedwojennych standardów w przeciwieństwie do obecnego "szybkiego" budownictwa.
  • Przeprowadzony w latach 2016-2018 remont zapewnił atrakcyjny wygląd i właściwy stan techniczny budynku, zachowując autentyczny, historyczny klimat. Połączenie tradycji z nowoczesnością sprawia, że mieszkania są zarówno funkcjonalne, jak i estetycznie atrakcyjne. A te, które wymagają remontu dają duże możliwości adaptacji stylistycznej.
  • Uniwersalność aranżacyjna - dwustronne fasady (od ul. Zamoyskiego i ul. Paderewskiego) oraz ich lustrzane odbicia od strony dziedzińca oferują wyjątkowe możliwości aranżacyjne – potencjalni nabywcy mogą cieszyć się światłem dziennym z obydwu stron kamienicy, co dodatkowo podnosi komfort mieszkania.

Atrakcyjność inwestycyjna

Ze względu na prestiżową lokalizację i bogate dziedzictwo architektoniczne oferta mieszkań jest prawdziwym rarytasem i stanowi atrakcyjną propozycję zarówno dla osób planujących zamieszkać w historycznym centrum Bydgoszczy, jak i dla inwestorów szukających nieruchomości o wysokim potencjale wzrostu wartości.

Wyjątkowość oferty polega na tym, że mieszkań w historycznych, solidnie budowanych kamienicach, położonych w sercu miasta nie będzie już nigdy przybywać.


Wszelkie podane przeze mnie informacje nie są ofertą w rozumieniu Kodeksu Cywilnego.

Piotr
Zadzwoń do oferenta
Zadzwoń do oferenta: +48 602 300 410
Powiedz, że znalazłaś/eś ofertę na Bezposrednie.com. Dziękujemy.
Wyślij wiadomość do oferenta
Wyślij wiadomość do oferenta

Zgadzam się też na otrzymanie:

reklama