Mieszkanie na sprzedaż, woj. świętokrzyskie / dodano: 26.01.2026
Słoneczna, świętokrzyskie, Kielce, Jagiellońskie
Cena: 410 000 PLN  (8436,21 PLN/m²)
Powierzchnia mieszkalna
48,6 m²
Liczba pokoi
3
Piętro
5
Liczba pięter
10
Rok budowy
1977
Materiał budowlany
wielka płyta
Winda
Tak
Piwnica
Tak
Domofon
Tak
Balkon
Tak
Numer oferty
gratka-45854777
Data aktualizacji
2026-02-17 13:59:01
Opis:

Cena do negocjacji.

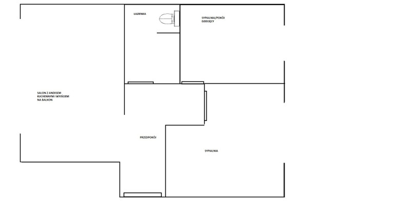
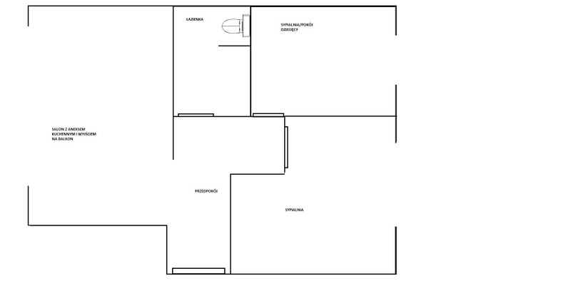
Mieszkanie o powierzchni 48,6 m² znajduje się na 5. piętrze w 10 piętrowym bloku z windą (mechanizm windy wymieniony w roku 2025, klatka schodowa odmalowana w roku 2024) przy ul. Słonecznej. Mieszkanie posiada księgę wieczystą.

W mieszkaniu znajduje się salon z aneksem kuchennym i wyspą oraz wyjściem na balkon typu loggia długi na całą szerokość salonu (widok na stare miasto i telegraf).

W mieszkaniu znajdują się 2 sypialnie (widok na Karczówkę), większa wyposażona w dużą trzy-drzwiową w szafę w zabudowie.

Pokoje ustawne, nie przechodnie, w przedpokoju trzy-drzwiowa szafa w zabudowie oraz zabudowane liczniki mediów z miejscem na szafkę narzędziową.

Lokal jest w stanie do odświeżenia, generalny remont wraz z wymianą wszystkich instalacji wykonano w roku 2018.

Mieszkanie dwustronne, środkowe dobrze doświetlone, ciepłe (okna plastikowe). Blok w 3/4 docieplony w roku 2025. Aktualne świadectwo charakterystyki energetycznej.

Dodatkowo do mieszkania przynależy piwnica.

Przed blokiem dostępny duży parking, dodatkowo dostępny pilot umożliwiający wjazd na 3 zamykane parkingi osiedlowe w tym jeden w bezpośrednim sąsiedztwie bloku.

Dogodna lokalizacja, blisko centrum, dobry dojazd na uczelnie, szkoła i przedszkole w odległości 300 m od bloku, sklepy z punktami usługowo-handlowymi 400m.

Ogłoszenie bezpośrednio od właściciela. Biurom nieruchomości i pośrednikom dziękujemy.

Piotr
Zadzwoń do oferenta
Zadzwoń do oferenta: +48 663 338 033
Ogłoszeniodawca nie zgadza się na kontakt agencji nieruchomości.
Powiedz, że znalazłaś/eś ofertę na Bezposrednie.com. Dziękujemy.
Wyślij wiadomość do oferenta
Wyślij wiadomość do oferenta

Zgadzam się też na otrzymanie:

reklama