Mieszkanie na sprzedaż, woj. Polska / dodano: 15.03.2026
Koniczyny, mazowieckie, warszawski zachodni, Ożarów Mazowiecki, Kręczki
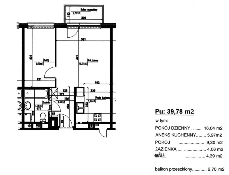
Cena: 520 000 PLN  (13 071,90 PLN/m²)
Powierzchnia mieszkalna
39,78 m²
Czynsz dla adm.
900 PLN
Liczba pokoi
2
Piętro
1
Liczba pięter
4
Rok budowy
2012
Typ domu
inny
Winda
Tak
Czy zamknięty obiekt
Tak
Domofon
Tak
Balkon
Tak
Prąd
Tak
Woda
Tak
Numer oferty
gratka-46306995
Data aktualizacji
2026-03-30 02:08:06
Opis:

Na sprzedaż przestronne, klimatyzowane 2-pokojowe mieszkanie o powierzchni 39,78 m², położone na 1. piętrze nowoczesnego budynku z windą. Lokal znajduje się na zamkniętym i kameralnym osiedlu, co zapewnia spokój oraz bezpieczeństwo mieszkańcom.

Mieszkanie wyróżnia się funkcjonalnym układem pomieszczeń. Sercem wnętrza jest duży, jasny salon z aneksem kuchennym oraz wyjściem na przeszklony balkon, który stanowi idealną przestrzeń do wypoczynku. Dodatkowo w mieszkaniu znajduje się ustawna sypialnia, przedpokój oraz łazienka.

Wyposażenie i standard: Mieszkanie jest częściowo wyposażone i gotowe do wprowadzenia przy minimalnym nakładzie pracy. W cenie pozostaje:

  • Kuchnia: meble w zabudowie wraz ze sprzętem AGD (lodówka, piekarnik, płyta grzewcza, okap).
  • Łazienka: pełne umeblowanie łazienkowe.

Dla pełnego komfortu w upalne dni w mieszkaniu zainstalowano wydajną klimatyzację.

Lokalizacja i udogodnienia: Inwestycja charakteryzuje się świetnym połączeniem z infrastrukturą miejską oraz szybkim dostępem do tras wylotowych, co czyni ją idealnym miejscem dla osób pracujących w stolicy, ceniących sobie ciszę po pracy. W bliskiej okolicy znajdują się sklepy (np. Biedronka, Aldi, Pepco, Rossmann), punkty usługowe oraz przedszkole i szkoła podstawowa.

Na terenie osiedla znajdują się dwa place zabaw oraz park.

Garaż jest integralną częścią oferty – przynależy do mieszkania i nie podlega oddzielnej sprzedaży. Stan prawny: pełna własność z Księgą Wieczystą.


Informacje finansowe:

  • Cena mieszkania: 520 000 zł
  • Garaż: 40 000 zł (dodatkowo płatny)
  • Stan prawny: Pełna własność z Księgą Wieczystą.

To mieszkanie to doskonała propozycja zarówno na start, jak i jako bezpieczna lokata kapitału pod wynajem.

Zapraszam do kontaktu telefonicznego.


Powyższy opis ma charakter informacyjny i nie stanowi oferty w rozumieniu przepisów Kodeksu Cywilnego.

Lukasz
Zadzwoń do oferenta
Zadzwoń do oferenta: +48 609 295 560
Ogłoszeniodawca nie zgadza się na kontakt agencji nieruchomości.
Powiedz, że znalazłaś/eś ofertę na Bezposrednie.com. Dziękujemy.
Wyślij wiadomość do oferenta
Wyślij wiadomość do oferenta

Zgadzam się też na otrzymanie:

reklama