Mieszkanie na sprzedaż, woj. mazowieckie / dodano: 30.10.2025
Ignacego Jana Paderewskiego, mazowieckie, pruszkowski, Pruszków, Bąki
Cena: 647 000 PLN  (11 999,26 PLN/m²)
Powierzchnia mieszkalna
53,92 m²
Liczba pokoi
2
Piętro
parter
Rok budowy
2025
Materiał budowlany
silikat
Czy zamknięty obiekt
Tak
Internet
Tak
Numer oferty
gratka-44843367
Data aktualizacji
2025-12-04 10:15:19
Opis:

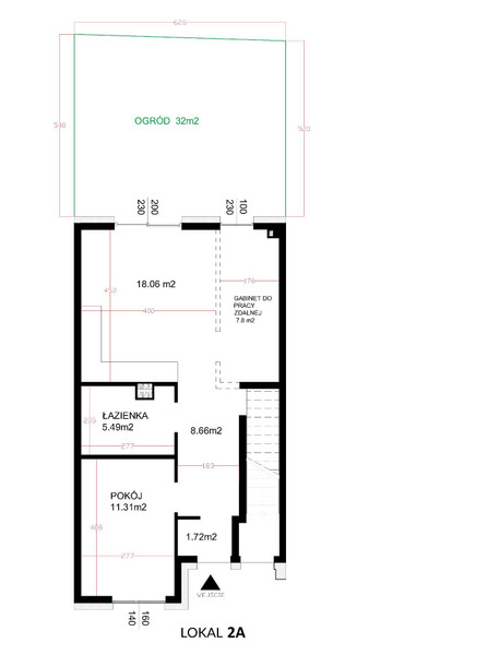
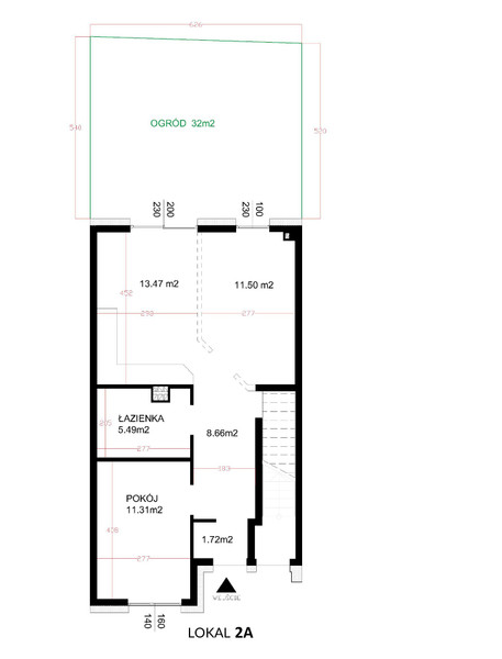
2-pokojowe mieszkanie bezczynszowe z ogródkiem 32 m2, numer 2A z możliwością wydzielenia trzeciego pokoju lub pomieszczenia do pracy zdalnej. Ścianka wydzielająca trzeci pokój (z pełnowymiarowym oknem balkonowym) jest do wykonania jako zmiana lokatorska (dodatkowo płatna) po decyzji klienta o tym, jakiej wielkości życzy sobie to dodatkowe pomieszczenie. W budynkach jednorodzinnych dwulokalowych nie ma obowiązku powoływania wspólnoty mieszkaniowej. Samo wynagrodzenie pobierane za usługi administracyjne przez zarządcę wspólnoty to minimum 6 zł brutto za 1m2 powierzchni mieszkalnej (do tego doliczane są wszelkie inne opłaty). Brak wspólnoty pozwala w przypadku lokalu tej wielkości zaoszczędzić 3 800zł rocznie i 114 000zł w typowym 30-letnim okresie kredytowania.


Opcjonalna dodatkowa ścianka w kilku wariantach została oznaczona na rysunkach linią przerywaną.

Inwestycja dewelopera „Apartamenty Paderewskiego 10” sp. z o.o. – 12 budynków dwulokalowych w zabudowie szeregowej. Łącznie 24 lokale: 12 z poddaszami oraz 12 lokali o powierzchni 44–53 m2 z ogródkami.

Oferta dotyczy mieszkania na piętrze numer 2A z ogródkiem 32m2. Adres inwestycji: ul. Paderewskiego 10, Pruszków – 150 m od granicy z Piastowem.

Budynek został wybudowany na płycie fundamentowej, dzięki czemu zapobiega się powstawaniu pęknięć, które dość często pojawiają się przy standardowych fundamentach. Budynek jest też dzięki temu lepiej docieplony.

Otoczenie:

• Publiczny żłobek, przedszkole i szkoła podstawowa – wszystko w jednym kompleksie przy ul. Jarzynowej, 1,2 km

• Sklep spożywczy – 1,3 km

• Przystanek autobusowy w Pruszkowie (ul. Tuwima, linie 3 i 9) – 1,2 km

• Pętla autobusowa Piastów-Ogińskiego (linie 716, 717, N85) – 180 m

• Stacja PKP – 2,5 km

• Biedronka – 2,2 km

• Park Kultury i Wypoczynku – 2,8 km

Standard deweloperski:

• Ściany nośne – bloczki silikatowe

• Okna PCV klasy premium na profilach marki VEKA o grubości 82 mm (najgrubszy Profil Veka – lepsza izolacyjność termiczna, w standardzie profil wzmocniony). Okna trzyszybowe, 7 komorowe, 3 uszczelki, niezawodne okucia Winkhaus

• Ściany wewnętrzne – gazobeton/multigips, grubość 8 lub 10 cm

• Ogrzewanie – piec gazowy dwufunkcyjny

• Kuchnia – zasilanie trójfazowe (bez gazu)

• Wszystkie budynki będą oddzielone ogniomurami (niepalna ściana ponad połacią dachową)

• Tynki – gipsowe

• Instalacja internetowa – światłowód

• Proponowana dodatkowa ścianka – do wykonania we własnym zakresie

Dodatkowe informacje:

Teren zamknięty, bramy na pilota + instalacja (przewody) do domofonu/wideofonu (urządzenie po stronie nabywcy lub do wykonania przez dewelopera, cena w zależności od urządzenia).

Termin oddania wg umowy: 30 maja 2026, zakończenie prac budowlanych w obrębie budynku: styczeń 2026, po tym czasie będą trwać prace przyłączeniowe i budowa drogi wewnętrznej oraz chodników.

Miejsce postojowe dodatkowo płatne: 10 000 zł.

Do salonu doprowadzone zostały wszystkie przewody niezbędne do zamontowania klimatyzacji.


Bezpieczeństwo finansowe:

Wpłaty kupującego zabezpieczone są rachunkiem powierniczym. Środki wpłacane są przez nabywców na rachunek powierniczy, do którego deweloper nie ma dostępu. Wypłaty na rzecz dewelopera następują transzami po wykonaniu poszczególnych etapów i odbiorze przez inspektora banku.

Informacje techniczne:

Zgodnie z aktualnymi przepisami i zasadami etyki, powierzchnie pod ściankami działowymi nie są wliczane do powierzchni użytkowej. Wymiary i powierzchnie zostały pomniejszone o grubość tynków.

Dodatkowe usługi:

Oferujemy również bezpłatne pośrednictwo kredytowe.

Zapraszamy do kontaktu.

Inwestycja realizowana jest przez „Apartamenty Paderewskiego 10” sp. z o.o. NIP7011205152 ul. Złota 75A/7, 00-819, Warszawa

APARTAMENTY PADEREWSKIEGO 10 SPÓŁKA Z OGRANICZONA ODPOWIEDZIALNOSCIA
Zadzwoń do oferenta
Zadzwoń do oferenta: +48 720 500 100
Powiedz, że znalazłaś/eś ofertę na Bezposrednie.com. Dziękujemy.
Wyślij wiadomość do oferenta
Wyślij wiadomość do oferenta

Zgadzam się też na otrzymanie:

reklama