Mieszkanie na sprzedaż, woj. mazowieckie / dodano: 25.11.2025
Ignacego Jana Paderewskiego, mazowieckie, pruszkowski, Pruszków, Bąki
Cena: 620 000 PLN  (11 498,52 PLN/m²)
Powierzchnia mieszkalna
53,92 m²
Czynsz dla adm.
280 PLN
Liczba pokoi
3
Piętro
parter
Rok budowy
2025
Materiał budowlany
cegła
Numer oferty
gratka-45167665
Data aktualizacji
2026-02-17 20:18:58
Opis:

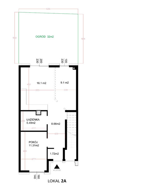
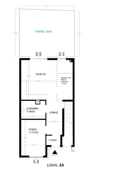
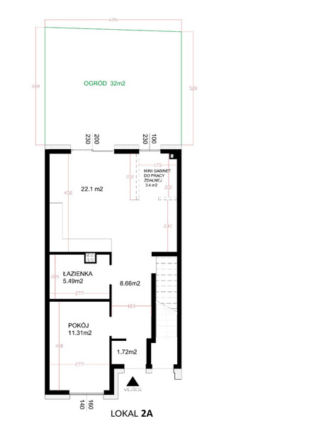
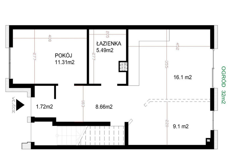
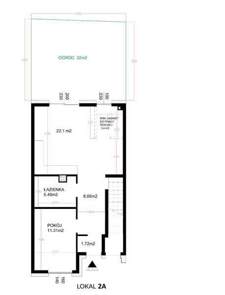
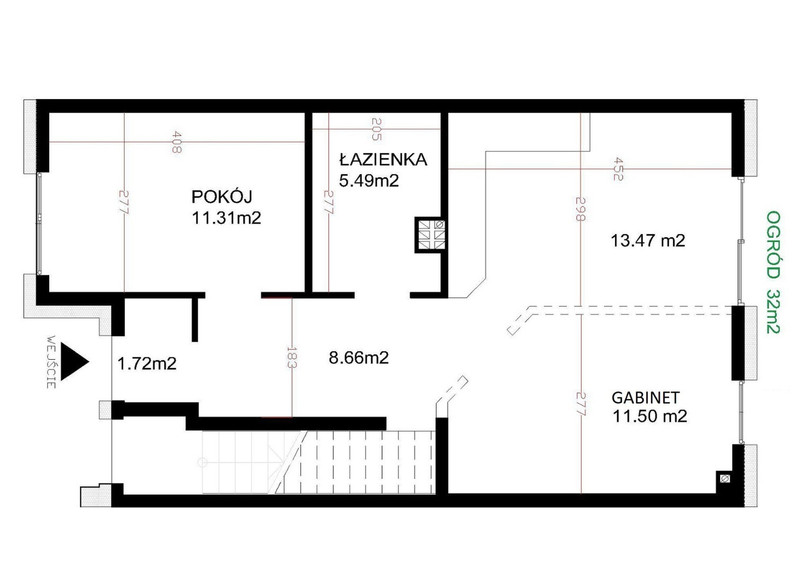
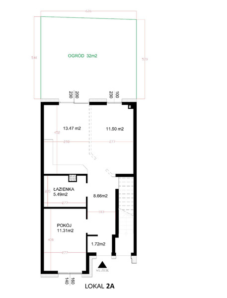
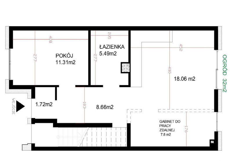
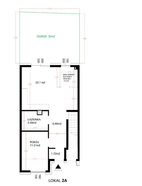
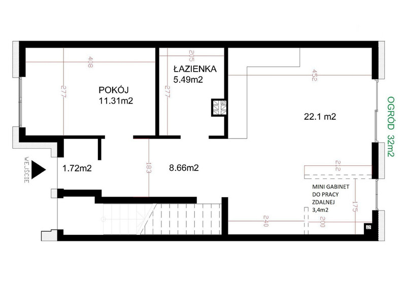
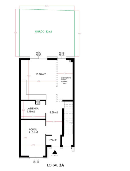
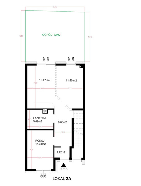
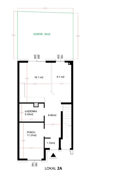
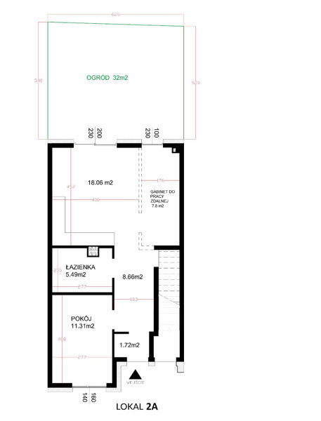
3-pokojowe mieszkanie na parterze z ogródkiem 32 m2 (nr 2A Ścianka wydzielająca trzeci pokój (z pełnowymiarowym oknem balkonowym) jest do wykonania jako zmiana lokatorska (dodatkowo płatna) zgodnie z wytycznymi nabywcy. Opcjonalna dodatkowa ścianka w kilku wariantach została oznaczona na rysunkach linią przerywaną.

Kupujący nie płaci prowizji, sprzedaż obsługiwana jest przez agencje pośrednictwa należącą do dewelopera.

Dużym atutem jest bliskość pętli autobusowej Piastów-Ogińskiego (200 m), z której można dojechać do stacji PKP Piastów w 10 minut. Na ten moment dojście do pętli prowadzi ścieżką, ale w planie miejscowym przewidziana jest droga.

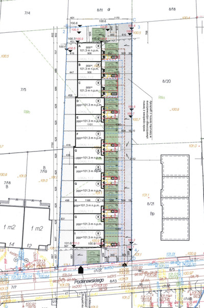
Inwestycja obejmuje 12 budynków dwulokalowych w zabudowie szeregowej. Łącznie 24 lokale:

· 12 z poddaszami (54 m2, po adaptacji poddaszy ok. 87 m2)

· 12 lokali o powierzchni 44–53 m2 z ogródkami ok. 30 m2


Adres inwestycji: ul. Paderewskiego 10, Pruszków - 200 m od granicy z Piastowem.

Budynki posadowiono na płycie fundamentowej. Zwiększa to trwałość konstrukcji i ogranicza ryzyko powstawania rys, które dość często pojawiają się przy standardowych fundamentach. Dzięki temu budynki są lepiej docieplone.

Inwestycja znajduje się w II strefie ZTM. Mieszkańcy mogą zakupić bilet metropolitalny (obejmujący też transport koleją) w obniżonej cenie 120 zł miesięcznie, zastępujący droższe warszawskie bilety okresowe na strefy I+II.

Przewidywana wysokość opłat administracyjnych to ok. 280 zł miesięcznie (w tym wywóz odpadów komunalnych dla trzyosobowej rodziny, oświetlenie i sprzątanie części wspólnych, fundusz remontowy).

Każde mieszkanie będzie posiadało indywidualne przyłącza mediów: prąd, gaz, internet światłowodowy, woda i kanalizacja miejska. Wymienione media każdy właściciel lokalu rozlicza samodzielnie (tych kosztów indywidualnych nie obejmuje opłata do administratora wspólnoty).


AKTUALNY STAN ZAAWANSOWANIA:

Zakres wykonanych prac: płyty fundamentowe, konstrukcja budynku wraz ze stropami, ściany działowe, dach (konstrukcja wraz z pokryciem), instalacje (gazowe, elektryczne, kanalizacyjne), elewacja, stolarka okienna i drzwiowa, tynki. Uzyskano wszelkie formalne zgody niezbędne do realizacji przyłączy. Obecnie trwa budowa przyłączy.

Zakres prac do wykonania: instalacje ogrzewania wraz z montażem pieców, wylewki, przyłącza (wody, kanalizacji, gazu i energii elektrycznej), zagospodarowanie terenu. Całość kosztów przyłączenia i budowy sieci pokrywa deweloper. Dzięki temu terminy realizacji przyłączy są pewne i niezależne od dostawców mediów. Aktualnie rozpoczęto już prace przyłączeniowe, jednak ich tempo uzależnione jest od pogody. Planowany termin zakończenia prac przyłączeniowych przypada na kwiecień 2026.


OTOCZENIE:

Odległości pokazują rzeczywistą drogę do przebycia.

· Pętla autobusowa Piastów-Ogińskiego (linie 716, 717, N85) - 200 m (Google Maps nie pokazuje tej trasy)

· Stacja PKP Piastów - 2,1 km (10 minut jazdy autobusem z Pętli Piastów-Ogińskiego)

· Dokładna lokalizacja: 5219300263345283, 20828685186902444

· Publiczny żłobek, przedszkole i szkoła podstawowa - kompleks przy

ul. Jarzynowej w Pruszkowie - 1,2 km

· Szkoła podstawowa przy ul. Zbikowskiej w Piastowie – 0,7 km

· Sklep spożywczy - 1,3 km

· Przystanek autobusowy w Pruszkowie (ul. Tuwima, linie 3 i 9) - 1,2 km

· Biedronka - 2,2 km

· Park Kultury i Wypoczynku - 2,8 km


STANDARD DEWELOPERSKI:

· Ściany nośne - bloczki silikatowe

· Ściany nośne między sąsiadującymi ze sobą segmentami - podwójna warstwa bloczka silikatowego, co zapewnia doskonałą izolację akustyczną.

· Okna PVC klasy premium, na profilach marki VEKA o grubości 82 mm (najgrubszy profil Veka – lepsza izolacyjność termiczna, w standardzie profil wzmocniony). Okna trzyszybowe, 7-komorowe, 3 uszczelki, niezawodne okucia Winkhaus

· Ściany wewnętrzne – gazobeton/multigips (8 lub 10 cm)

· Ogrzewanie, ciepła woda użytkowa – w każdym lokalu indywidualny piec dwufunkcyjny z wbudowanym zasobnikiem. Ogrzewanie podłogowe + dodatkowo grzejnik łazienkowy.

· Osobne liczniki na wszystkie media (woda, prąd, gaz)

· Kuchnia - zasilanie trójfazowe (400V)

· Wszystkie budynki są oddzielone ogniomurami (niepalna ściana ponad połacią dachową)

· Tynki – gipsowe, bez gładzi

· Do lokali doprowadzona jest instalacja internetowa światłowodowa

· Biały montaż elektryczny – osprzęt polskiej produkcji (Simon)

· Salon - wyprowadzenie kompletu przewodów pod klimatyzację

· Proponowana dodatkowa ścianka jest wykonywana jako odpłatna zmiana lokatorska


DODATKOWE INFORMACJE:

Teren zamknięty, bramy na pilota oraz instalacja (przewody) do domofonu/wideofonu (urządzenie po stronie nabywcy lub do wykonania przez dewelopera, cena uzależniona od wybranego urządzenia).

Termin oddania lokali do 31 lipca 2026 r., zakończenie prac budowlanych kwiecień 2026, po tym czasie będą trwały formalności związane z uzyskaniem pozwolenia na użytkowanie. Aktualny stan zaawansowania prac 85%.


Miejsce postojowe dodatkowo płatne: 10 000 zł.

Do salonu doprowadzone zostały podtynkowo wszystkie przewody niezbędne do zamontowania klimatyzacji wraz z jednostką zewnętrzną (przewód zasilający, sterujący, rury w izolacji na czynnik chłodniczy oraz rura na odprowadzenie skroplin)

Komfort korzystania z ogródków w przypadku budynków dwulokalowych jest dużo wyższy niż w wielokondygnacyjnych blokach.


BEZPIECZEŃSTWO FINANSOWE:

Państwa pieniądze są chronione na każdym etapie inwestycji:

  • Mieszkaniowe Rachunki Powiernicze: środki są wypłacane transzami dopiero po potwierdzeniu przez inspektora banku zakończenia danego etapu prac
  • Deweloperski Fundusz Gwarancyjny: Każdy nabywca objęty jest dodatkowym systemem ochrony składek.
  • Gwarancja de minimis: Nasze kredyty inwestycyjne zabezpieczone są przez Bank Gospodarstwa Krajowego (BGK), co stanowi dla Nabywców dodatkowe potwierdzenie naszej wiarygodności finansowej.
  • Pełna ochrona ubezpieczeniowa: proces budowlany każdej inwestycji jest w całości ubezpieczony w Compensa TU S.A.



POMIAR POWIERZCHNI:

Zgodnie z aktualnymi przepisami i zasadami etyki, powierzchnie pod ściankami działowymi nie są wliczane do powierzchni użytkowej. Wymiary i powierzchnie zostały pomniejszone o grubość warstw tynkarskich.

DODATKOWE USŁUGI:

Oferujemy również bezpłatne pośrednictwo kredytowe. Od kredytobiorcy potrzebne są jedynie dokumenty związane z uzyskiwanym dochodem, całość dokumentacji mieszkania i inwestycji załatwiamy sami.

Zapraszamy do kontaktu w celu uzyskania szczegółowych informacji oraz umówienia prezentacji inwestycji.

Inwestycja realizowana jest przez „Apartamenty Paderewskiego 10” Sp. z o.o. NIP7011205152 ul. Złota 75A/7, 00-819, Warszawa.

Spółka należy do przedsiębiorstwa „APB Development” Sp. z o.o. NIP5273182155 ul. Złota 75A/7, 00-819, Warszawa.

"Apartamenty Paderewskiego 10" sp. z o.o.
Zadzwoń do oferenta
Zadzwoń do oferenta: +48 720 500 100
Powiedz, że znalazłaś/eś ofertę na Bezposrednie.com. Dziękujemy.
Wyślij wiadomość do oferenta
Wyślij wiadomość do oferenta

Zgadzam się też na otrzymanie:

reklama