Mieszkanie na sprzedaż, woj. mazowieckie / dodano: 02.02.2026
Grzybowska, mazowieckie, Warszawa, Śródmieście, Śródmieście Północne
Cena: 799 000 PLN  (16 645,83 PLN/m²)
Powierzchnia mieszkalna
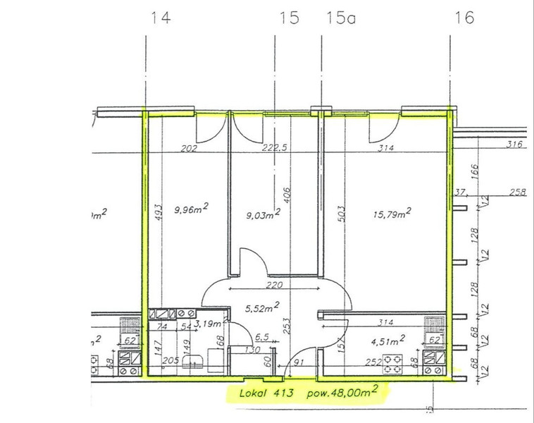
48 m²
Liczba pokoi
3
Piętro
4
Liczba pięter
15
Numer oferty
gratka-45936613
Data aktualizacji
2026-02-18 02:11:30
Opis:

BEZ POŚREDNIKÓW 3-pokojowe mieszkanie w sercu Warszawy na ulicy Grzybowskiej 39.

Na sprzedaż oferuję wyjątkowe, funkcjonalne mieszkanie zlokalizowane w jednej z najbardziej prestiżowych części Warszawy – na pograniczu Śródmieścia i Woli, przy ul. Grzybowskiej.


Lokalizacja

Niepowtarzalna lokalizacja z pełnym dostępem do infrastruktury miejskiej – autobusy, tramwaje.

Metro (stacja Rondo ONZ) 5 minut piechotą.


W najbliższej okolicy znajdują się:

Prestiżowe biurowce | Restauracje i butiki | Dworzec Centralny | Hala Mirowska | Fabryka Norblina i Browary Warszawskie | Ogród Saski, ścieżki rowerowe i tereny zielone


Budynek

Monitorowany teren ze strzeżonym parkingiem za szlabanem i miejscami dla gości | Reprezentacyjna recepcja czynna 24/7 | Wyremontowany hol i zadbane windy | Rowerownia | Zadbany budynek z lat 70.


Mieszkanie

Powierzchnia całkowita: 48,0 m² | Piętro: 4 / 15 | Liczba pokoi: 3 | Oddzielna kuchnia (z możliwością otwarcia na salon) | Balkony francuskie | Ekspozycja okien: zachodnia (jasne, słoneczne wnętrza) | Spółdzielczo-własnościowe |


Mieszkanie z dużymi możliwościami aranżacji. Mieszkanie zostało przygotowane do remontu. Zostały zamówione nowe okna. Podłoga drewniana z lat 70-tych przygotowana do cyklinowania. Do wymiany drzwi wejściowe oraz wewnętrzne. Do zrobienia elektryka, łazienka oraz kuchnia.

Rozkład pomieszczeń:

Salon: ok. 15,80 m²

Kuchnia: 4,50 m²

Sypialnia 1: 10,00 m²

Sypialnia 2: 9,00 m²

Przedpokój: 5,50 m²

Łazienka: 3,20 m²

Włodzimierz Wróblewski
Zadzwoń do oferenta
Zadzwoń do oferenta: +48 504 266 626
Ogłoszeniodawca nie zgadza się na kontakt agencji nieruchomości.
Powiedz, że znalazłaś/eś ofertę na Bezposrednie.com. Dziękujemy.
Wyślij wiadomość do oferenta
Wyślij wiadomość do oferenta

Zgadzam się też na otrzymanie:

reklama