Mieszkanie na sprzedaż, woj. mazowieckie / dodano: 02.03.2026
Grawerska, mazowieckie, Warszawa, Rembertów, Nowy Rembertów
Cena: 695 000 PLN  (13 708,09 PLN/m²)
Powierzchnia mieszkalna
50,7 m²
Liczba pokoi
2
Piętro
3
Liczba pięter
3
Typ domu
inny
Numer oferty
gratka-46210479
Data aktualizacji
2026-03-10 17:53:00
Opis:

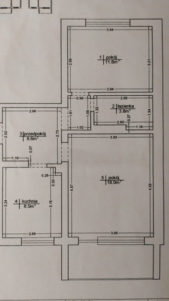
Małżeństwo sprzeda bezpośrednio słoneczne mieszkanie o powierzchni 50,7m2 / 2 pokoje, duża widna kuchnia, łazienka, przedpokój (wymiary na załączonym planie ), balkon zadaszony typu loggia (6,5m2), komórka lokatorska w piwnicy (5,7m2), przed blokiem bezpłatne miejsca parkingowe. Trzecie piętro, rok budowy 1987.

Doskonała lokalizacja, 6 minut do stacji PKP Rembertów, pociągi KM i SKM (dojazd do Śródmieścia SKM - 16 minut), blisko bloku linie autobusowe. W okolicy przedszkole, szkoła podstawowa, cała gama sklepów, rezerwat przyrody Kawęczyn.

W pokojach na podłodze drewniana mozaika, w kuchni panele, kuchnia w zabudowie na wymiar, przedpokój zabudowany szafami Komandor o długości 115 cm i 260 cm. Łazienka w glazurze, sufity podwieszane, rolety w oknach, grzejniki aluminiowe. Drzwi antywłamaniowe firmy DoniMet klasy C, domofon, drzwi wewnętrzne firmy Porta.

W bloku działa wspólnota mieszkaniowa. Wyremontowano kuchenne piony kanalizacyjne, wszystkie piony wodne, klatki schodowe, dach, elewację. Ogrodzono i nasadzono teren wspólnoty. CO i ciepła woda z pieca gazowego wspólnoty, woda rozliczana jest na podstawie wskazań wodomierzy.

Mieszkanie sprzedajemy ze sprzętem AGD i ewentualnie z meblami.

Lokal dostępny od kwietnia 2026, wymagany zadatek płatny przy podpisywaniu umowy przedwstępnej u notariusza.

Odrębna własność z księgą wieczystą.

Mieszkanie sprzedajemy bezpośrednio, agencjom dziękujemy.

Małgorzata
Zadzwoń do oferenta
Zadzwoń do oferenta: +48 609 873 390
Ogłoszeniodawca nie zgadza się na kontakt agencji nieruchomości.
Powiedz, że znalazłaś/eś ofertę na Bezposrednie.com. Dziękujemy.
Wyślij wiadomość do oferenta
Wyślij wiadomość do oferenta

Zgadzam się też na otrzymanie:

reklama