Mieszkanie na sprzedaż, woj. Polska / dodano: 25.08.2025
wielkopolskie, średzki, Zaniemyśl, Jeziory Wielkie
Cena: 286 000 PLN  (6791,74 PLN/m²)
Powierzchnia mieszkalna
42,11 m²
Liczba pokoi
2
Piętro
parter
Prąd
Tak
Gaz
Tak
Woda
Tak
Numer oferty
gratka-43646133
Data aktualizacji
2026-01-19 02:11:48
Opis:

Nowoczesne mieszkania w zabudowie szeregowej

Jeziora Wielkie – Gmina Zaniemyśl

Spokojna okolica • Własna działka • Nowoczesne technologie

Oddanie inwestycji: wiosna 2026

INFORMACJE O INWESTYCJI


Inwestycja w liczbach:


6 budynków szeregowych (nr 7–12)

Jeziora Wielkie, gmina Zaniemyśl (działka nr 178/17)

12 lokali:

  • 6 parterowych – 42,11 m²
  • 6 piętrowych z balkonem – 51,52 m²
  • 15 miejsc postojowych
  • Każdy lokal z przynależną działką i udziałem w drodze

UKŁADY MIESZKAŃ


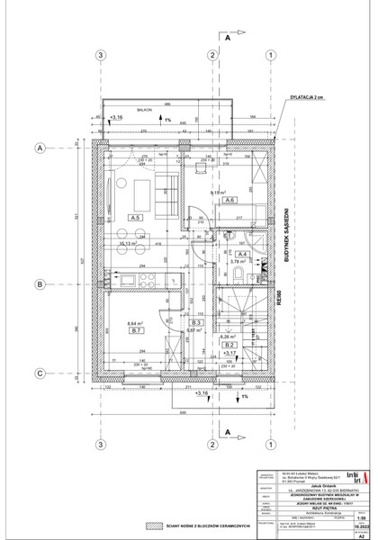
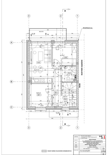
Lokal A – Parterowy (42,11 m²)

  • Przedsionek
  • Łazienka
  • Salon z aneksem kuchennym
  • Sypialnia
  • Garderoba
  • Ogródek


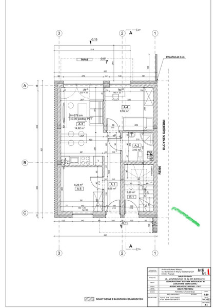
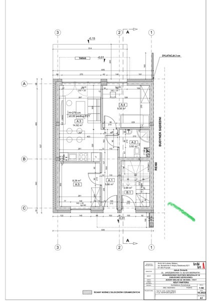
Lokal B – Piętro z balkonem (51,52 m²)

  • Przedsionek
  • Klatka schodowa
  • Łazienka
  • Salon z aneksem kuchennym
  • Sypialnia
  • Garderoba
  • Balkon


STANDARD BUDOWY


Technologia tradycyjna murowana

Dach drewniany, kryty dachówką

Drzwi antywłamaniowe, okna plastikowe

Klatki schodowe – konstrukcja żelbetowa

Tynki gipsowe nakładane maszynowo

Rekuperacja z odzyskiem ciepła 80%

Ogrzewanie gazowe (kocioł gazowy)

Wybrukowane ścieżki, oświetlenie LED, ogrodzenie

Balkony w lokalach górnych.

Wszystkie lokale są nowe.

MEDIA I HARMONOGRAM


Prąd – sierpień 2025

Woda – grudzień 2025

Gaz – wiosna 2026

Planowany termin zakończenia inwestycji – wiosna 2026

Możliwość podpisania umowy u notariusza jeszcze na etapie budowy lub po jej zakończeniu

LOKALIZACJA I OTOCZENIE


Jeziory Wielkie – urokliwa lokalizacja wśród zieleni

12 km do Kórnika, Śremu, Środy Wlkp.

44 km do Poznania (ok. 45 minut samochodem)

Linia 560 – bezpośrednie połączenie z Poznaniem (ZTM)

Szkoła i przedszkole – w Zaniemyślu (dojazd autobusem szkolnym)


Idealna lokalizacja:

– dla młodych par jako pierwsze mieszkanie

– dla osób starszych szukających spokoju i zieleni

– dla inwestorów – możliwość zakupu całego segmentu


Ogłoszenie dotyczy całej inwestycji obejmującej 12 nowych lokali mieszkalnych. Każdy lokal sprzedawany jest oddzielnie. Niniejszy materiał ma charakter informacyjny i nie stanowi oferty w rozumieniu art. 66 §1 Kodeksu cywilnego.





Adina
Zadzwoń do oferenta
Zadzwoń do oferenta: +48 507 343 990
Ogłoszeniodawca nie zgadza się na kontakt agencji nieruchomości.
Powiedz, że znalazłaś/eś ofertę na Bezposrednie.com. Dziękujemy.
Wyślij wiadomość do oferenta
Wyślij wiadomość do oferenta

Zgadzam się też na otrzymanie:

reklama