Mieszkanie do wynajęcia, woj. mazowieckie / dodano: 08.02.2026
Generała Ludomiła Rayskiego, mazowieckie, Warszawa, Bemowo, Chrzanów
Cena: 3300 PLN  (73,33 PLN/m²)
Powierzchnia mieszkalna
45 m²
Czynsz dla adm.
800 PLN
Liczba pokoi
2
Piętro
6
Liczba pięter
6
Rok budowy
2017
Materiał budowlany
bloczki
Meble
Tak
Winda
Tak
Czy zamknięty obiekt
Tak
Domofon
Tak
Balkon
Tak
Prąd
Tak
Woda
Tak
Numer oferty
gratka-46026395
Data aktualizacji
2026-02-23 08:07:40
Opis:

Wysoki standard • blisko Metra • 6 piętro • Najem bezpośredni, bez prowizji!!!

Do wynajęcia eleganckie, jasne i nowocześnie urządzone mieszkanie 45 m², 2‑pokojowe z osobną kuchnią, położone na 6. piętrze w nowoczesnym budynku z windą na Warszawskim Bemowie (Chrzanów). Zaledwie 300 metrów od wejścia do nowej stacji metra Chrzanów - wkrótce otwarcie.

Mieszkanie wyróżnia się wysokim standardem, świetnym doświetleniem (ekspozycja południowo‑zachodnia) oraz funkcjonalnym układem z osobną kuchnią, co jest rzadkością w nowych inwestycjach. 6 piętro zapewnia ciszę, prywatność i piękny widok.


Najważniejsze atuty mieszkania

  • Ekspozycja południowo‑zachodnia — naturalne światło przez cały dzień
  • 2 pokoje + osobna kuchnia — funkcjonalny i poszukiwany układ
  • Wysoki standard wykończenia
  • 300 m do wejścia na stację metra Chrzanów- wkrótce otwarcie
  • doskonała komunikacja z centrum
  • 2 min do trasy S8
  • szybki dojazd do S2 i A2
  • Przeszklony / zabudowany balkon — dodatkowa przestrzeń do relaksu przez cały rok
  • Nowoczesny budynek z windą, monitoringiem 24/7 i zamkniętym osiedlem
  • piętro — mieszkanie jasne, ciche, z otwartym widokiem
  • miejsce postojowe w garażu podziemnym


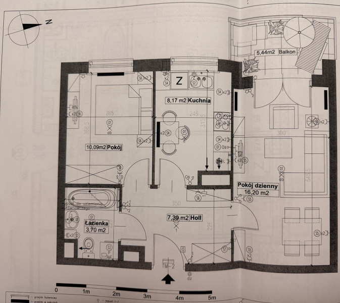
Metraż pomieszczeń

  • Salon: 16,20 m²
  • Sypialnia: 10,09 m²
  • Kuchnia: 8,17 m²
  • Hall: 7,39 m²
  • Łazienka: 3,70 m²
  • Balkon (zabudowany szkłem): 5,44 m²


W pełni umeblowane i wyposażone

  • Duża kuchnia z oknem, pełna zabudowa, komplet AGD + ekspres do kawy, ogrzewanie podłogowe
  • Sypialnia z wygodnym łóżkiem 160×200 i telewizorem 55"
  • Przestronny salon z 4 pojemnymi szafami w zabudowie, rozkładaną kanapą i fotelem relax
  • Wyjście na balkon z zabudową szklaną i meblami balkonowymi
  • Łazienka z wanną, pralką 6 kg, ogrzewaniem podłogowym, podgrzewanym lustrem i radiem


Dodatkowe udogodnienia

  • Miejsce w garażu podziemnym
  • Komórka lokatorska 2,5 m² — w cenie najmu
  • Osiedle zamknięte, monitoring 24/7, nowoczesna winda


Autobusy — szybki dostęp do wielu linii

W okolicy kursują liczne linie autobusowe, zapewniające wygodne połączenia z kluczowymi częściami Warszawy:

  • Przystanek autobusowy tuż przy bloku (linie 743 i 249 – bezpośrednie połączenie do stacji Metro Bemowo)
  • Dojazd do Rondo Daszyńskiego – ok. 30 minut
  • Dojazd na Wojskowa Akademia Techniczna (WAT) – ok. 30 minut
  • Bemowo
  • Wola
  • Włochy
  • Centrum
  • trasy przesiadkowe do tramwajów i kolei.

Przystanki znajdują się kilka minut pieszo od budynku.


Samochodem — szybki wyjazd z miasta i świetne połączenia

Dla kierowców lokalizacja jest wyjątkowo wygodna:

  • 2 min do trasy S8
  • szybki dojazd do S2 i A2
  • łatwy wyjazd w kierunku:
  • Poznania
  • Łodzi
  • Gdańska
  • lotniska Chopina

Dzięki temu mieszkanie jest idealne dla osób pracujących w różnych częściach Warszawy lub często podróżujących.


Sklepy i usługi w najbliższej okolicy

W promieniu 2–5 minut pieszo znajdziesz wszystko, co potrzebne na co dzień:

  • Biedronka, Żabka, Carrefour Express, Kaufland, Empik...
  • piekarnia, warzywniak, apteka
  • drogerie i punkty usługowe
  • paczkomaty InPost, Allegro, DPD
  • salony kosmetyczne i fryzjerskie
  • gabinety medyczne i stomatologiczne

Wszystko pod ręką — bez konieczności jeżdżenia po całym mieście.


Gastronomia — restauracje i kawiarnie w okolicy

W pobliżu Rayskiego 11 znajdziesz wiele miejsc, w których można dobrze zjeść lub wypić kawę:

  • pizzerie i restauracje włoskie
  • kuchnia azjatycka, sushi bary
  • burgery i kuchnia street‑food
  • kawiarnie i cukiernie
  • lokale śniadaniowe
  • restauracje rodzinne i obiady domowe

Idealne, jeśli lubisz mieć wybór bez konieczności jeżdżenia do centrum.


Rekreacja i tereny zielone

Okolica jest spokojna, zielona i świetna do odpoczynku:

  • liczne ścieżki spacerowe i rowerowe
  • parki i skwery
  • place zabaw
  • siłownie plenerowe
  • szybki dojazd do Lasu Bemowskiego

To idealne miejsce dla osób aktywnych i rodzin.


Opłaty dodatkowe:

  • miejsce w garażu -
  • zużycie energii elektrycznej wg licznika (ok 100-150PLN)
  • ciepła - zimna woda i centralne ogrzewanie w opłacie czynszu


Warunki najmu

  • Najem bezpośredni — pośrednikom dziękujemy!
  • Umowa najmu okazjonalnego — minimum 12 miesięcy
  • czynsz najmu: 3300 zł,
  • opłaty administracyjne i lokalowe: około 800 zł
  • opłaty za prąd rozliczane według zużycia
  • kaucja zwrotna: 4100 zł + miejsce postojowe w garażu podziemnym (opcjonalnie): 300 zł.
Rayskiego
Zadzwoń do oferenta
Zadzwoń do oferenta: +48 512 192 068
Ogłoszeniodawca nie zgadza się na kontakt agencji nieruchomości.
Powiedz, że znalazłaś/eś ofertę na Bezposrednie.com. Dziękujemy.
Wyślij wiadomość do oferenta
Wyślij wiadomość do oferenta

Zgadzam się też na otrzymanie:

reklama