Biuro do wynajęcia, woj. małopolskie / dodano: 25.03.2026
Sosnowiecka, małopolskie, Kraków, Prądnik Biały, Bronowice Wielkie
Cena: 34 440 PLN  (82 PLN/m²)
Powierzchnia
420 m²
Piętro
2
Liczba pięter
2
Typ domu
inny
Meble
Nie
Winda
Tak
Czy zamknięty obiekt
Tak
Domofon
Tak
Prąd
Tak
Woda
Tak
Recepcja
Tak
Numer oferty
gratka-41225779
Data aktualizacji
2026-04-09 02:08:37
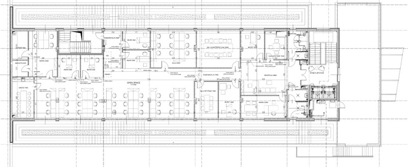
Opis: Kraków - Bronowice ul. Sosnowiecka- lokal na II piętrze do wynajęcia 420m2

Do wynajęcia lokal biurowy o powierzchni 420m2 zajmujący całe II piętro w kameralnym biurowcu w Bronowicach. Budynek reprezentacyjny z parkingiem i garażem podziemnym. Lokal wykończony, zadbany, na posadzce wykładzina, posiada wydzielone przestrzenie pod stanowiska do pracy/salę konferencyjną, etc. oraz open space. Lokal posiada zaplecze socjalne - kuchnię, sanitariaty oraz dodatkowe boczne wejście. Budynek ogrodzony z windą i reprezentacyjnym wejściem z recepcją. Lokal klimatyzowany ( funkcja chłodzenia i grzania), z dostępem 24 h. Możemy zapewnić kilka miejsc parkingowych, w tym w garażu podziemnym - do ustalenia. Ochrona w budynku 24h. W budynku jest lunch bar. Wygodny dostęp do komunikacji miejskiej, łatwy dojazd w stronę Balic oraz autostrady A4, brak strefy płatnego parkowania. W pobliżu galeria handlowa.

Możliwość dodatkowego wynajęcia przestrzeni magazynowej w podziemiu budynku o łącznej powierzchni ok.100m2.

Lokal dostępny od 1 czerwca 2025.

Koszty : - 23940 PLN netto czynsz najmu za lokal + 10500 PLN netto opłata eksploatacyjna ( w tym ogrzewanie i woda w częściach wspólnych, administracja, sprzątanie części wspólnych )

Dodatkowo płatne media ( energia elektryczna, woda).

Wymagana jest wpłata kaucji lub gwarancja bankowa.

Polecamy !
Ewa Jesionowska
Zadzwoń do oferenta
Zadzwoń do oferenta: +48 697 815 916
Ogłoszeniodawca nie zgadza się na kontakt agencji nieruchomości.
Powiedz, że znalazłaś/eś ofertę na Bezposrednie.com. Dziękujemy.
Wyślij wiadomość do oferenta
Wyślij wiadomość do oferenta

Zgadzam się też na otrzymanie:

reklama