Dom na sprzedaż, woj. łódzkie / dodano: 22.03.2026
Generała Lucjana Żeligowskiego, łódzkie, Łódź, Polesie
Cena: 14 700 000 PLN  (2241,88 PLN/m²)
Powierzchnia mieszkalna
6557 m²
Powierzchnia działki
0 m²
Typ domu
inny
Numer oferty
gratka-46369353
Data aktualizacji
2026-04-06 02:05:42
Opis:

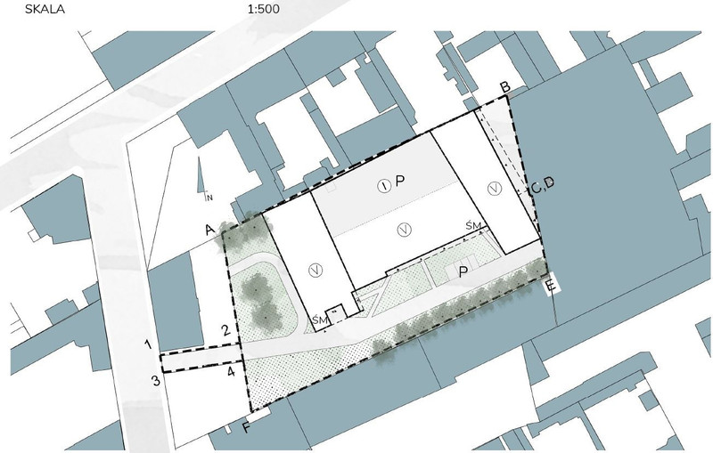
Sprzedaż działki inwestycyjnej z koncepcją zabudowy mieszkaniowo-usługowej – ul. Żeligowskiego

Na sprzedaż atrakcyjna działka inwestycyjna położona przy ul. Żeligowskiego, przeznaczona pod zabudowę mieszkaniowo-usługową.

Zgodnie z przygotowaną koncepcją inwestycyjną nieruchomość oferuje następujący potencjał:

  • powierzchnia działki: ok. 6 557 m²,
  • PUM: ok. 6 586 m²,
  • liczba mieszkań: 108,
  • powierzchnia usługowa: ok. 775 m²,
  • liczba miejsc parkingowych: 153.

Koncepcja przewiduje realizację nowoczesnego zespołu mieszkaniowo-usługowego z lokalami usługowymi w parterze oraz parkingiem naziemnym i w garażu podziemnym.

Atuty nieruchomości:

  • bardzo dobra lokalizacja miejska,
  • potencjał pod inwestycję deweloperską,
  • funkcja mieszkaniowo-usługowa,
  • gotowa koncepcja zabudowy ułatwiająca dalszy proces inwestycyjny.

Oferta skierowana do deweloperów oraz inwestorów poszukujących gruntu z potencjałem pod projekt mieszkaniowy z usługami.

Szczegółowe informacje, dokumentacja oraz warunki sprzedaży – na zapytanie.

BLk POland sp zpp
Zadzwoń do oferenta
Zadzwoń do oferenta: +34 629 54 21 28
Ogłoszeniodawca nie zgadza się na kontakt agencji nieruchomości.
Powiedz, że znalazłaś/eś ofertę na Bezposrednie.com. Dziękujemy.
Wyślij wiadomość do oferenta
Wyślij wiadomość do oferenta

Zgadzam się też na otrzymanie:

reklama