Dom na sprzedaż, woj. łódzkie / dodano: 15.11.2025
Szermiercza, łódzkie, Łódź, Polesie, Retkinia Zachód-Smulsko
Cena: 380 000 PLN  (1743,12 PLN/m²)
Powierzchnia mieszkalna
218 m²
Powierzchnia działki
229 m²
Liczba pokoi
4
Typ domu
inny
Numer oferty
gratka-45048031
Data aktualizacji
2025-11-30 02:16:43
Opis:

Na sprzedaż jest dom w stanie surowym otwartym: Łódź Smulsko ul. Szermiercza.


Na działce posadowiony jest budynek jednorodzinny zabudowie szeregowej, dla którego wygasła decyzja pozwolenia na budowę w skutek zatrzymania budowy.


Lokalizacja:

Oferuję do sprzedaży dom o powierzchni całkowitej 218 m2 z garażem w bryle budynku na działce o powierzchni 229 m², zlokalizowaną w Łódź Smulsko ul. Szermiercza, która położona jest w spokojnej, a jednocześnie dobrze skomunikowanej części miasta. Łatwy dojazd do centrum Łodzi czyni tę lokalizację bardzo atrakcyjną.


Parametry działki:

Powierzchnia: 229 m² (25m x 9m)

Kształt: prostokąt

Dojazd: droga asfaltową


Parametry domu:

Powierzchnia całkowita 218 m2


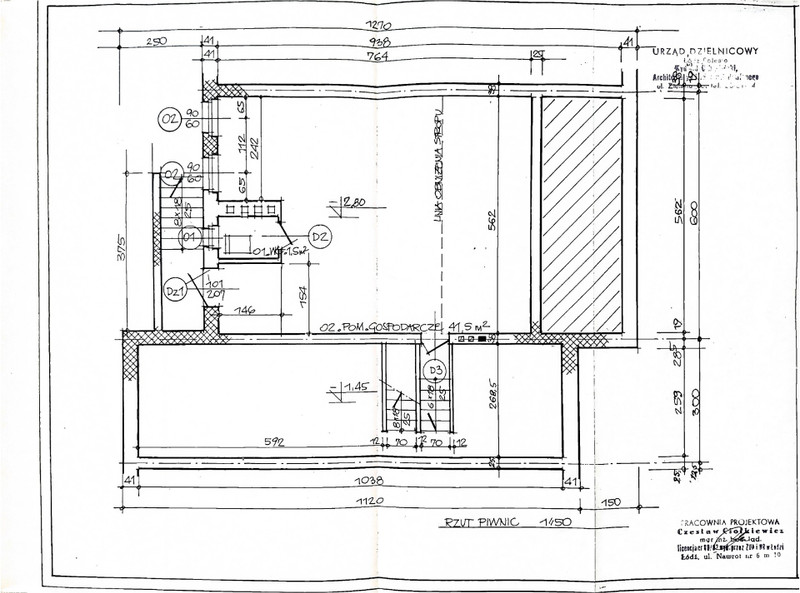
Piwnica:

Pomieszczenie gospodarcze - 41,5 m2


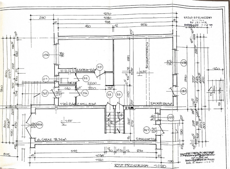
Parter:

Garaż - 18,56 m2

Pomieszczenie gospodarcze - 7,5 m2

Kuchnia - 12,6 m2

Salon - 28,9 m2

Wc - 1,5 m2


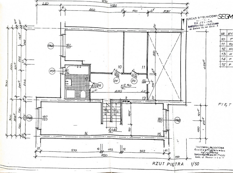
Piętro:

Pokój 1 - 15,2 m2

Pokoj 2 - 14 m2

Pokój 3 - 9,7 m2

Łazienka- 5,3 m2

Garderoba - 6,6 m2


Dom w stanie surowym otwartym zadaszony, dach zabezpieczony papą, ściany murowane z cegły ceramicznej oraz pustaka ceramicznego.

Budynek dwukondygnacyjny (obniżenie część garażowej)


Dobry stan techniczny

Brak śladów korozji biologicznej (zagrzybienia)


Media:

Energia elektryczna

Woda

Kanalizacja miejska

Sieć ciepłownicza


Atuty nieruchomości:

Atrakcyjna lokalizacja w Łodzi

Pełna własność z księgą wieczystą, brak obciążeń


Opis oferty wykonany na podstawie wykonanego Operatu szacunkowego nieruchomości.


Jeśli podoba Ci się lokalizacja i chcesz porozmawiać o CENIE zakupu tej nieruchomości to zapraszam do kontaktu telefonicznego.

Zimozi Zbigniew Śliwiński
Zadzwoń do oferenta
Zadzwoń do oferenta: +48 662 040 270
Powiedz, że znalazłaś/eś ofertę na Bezposrednie.com. Dziękujemy.
Wyślij wiadomość do oferenta
Wyślij wiadomość do oferenta

Zgadzam się też na otrzymanie:

reklama