Dom na sprzedaż, woj. mazowieckie / dodano: 22.10.2025
Lubiana, mazowieckie, Warszawa, Wawer, Radość
Cena: 1 930 000 PLN  (13 084,75 PLN/m²)
Powierzchnia mieszkalna
147,5 m²
Powierzchnia działki
475 m²
Liczba pokoi
5
Rok budowy
2025
Typ domu
szeregowiec
Materiał budowlany
pustak
Meble
Nie
Czy jest poddasze
Tak
Prąd
Tak
Siła
Tak
Numer oferty
gratka-44700315
Data aktualizacji
2026-03-18 02:00:23
Opis:

OSTATNI BUDYNEK

Elegancki segment skrajny o pow. 147,5m2 położony na działce 475m2 w spokojnej części Radości.

Dom wybudowany według indywidualnego projektu, dzięki czemu każde miejsce jest w pełni wykorzystane.

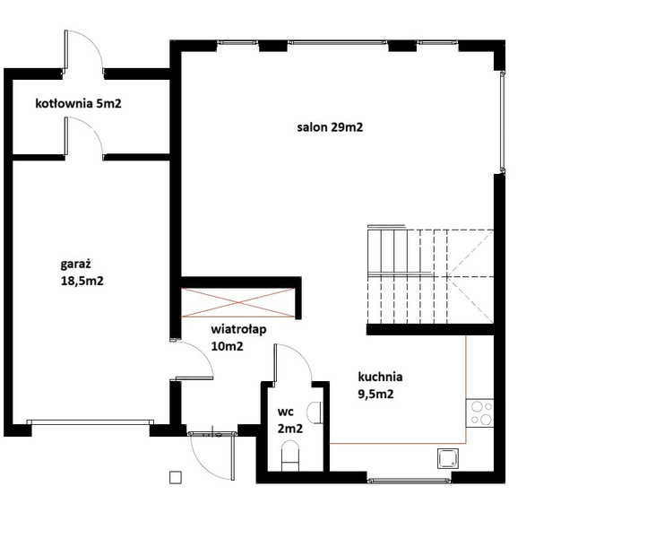
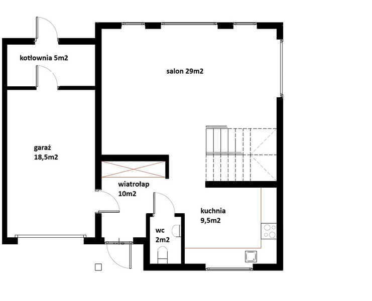
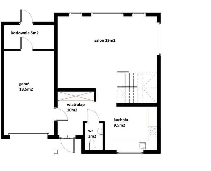
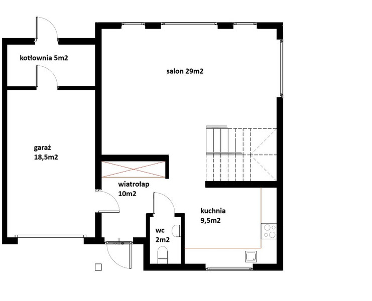
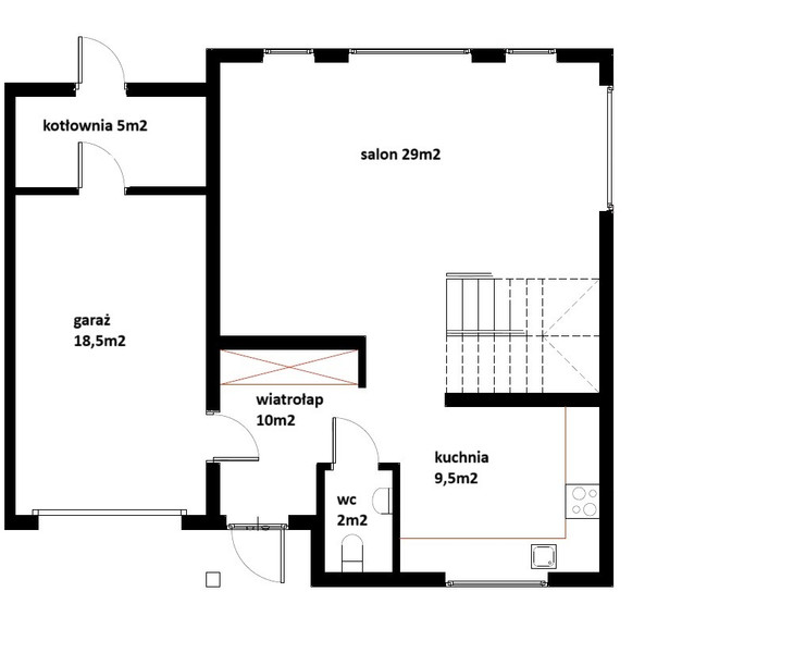
Parter: przestronne wejście z miejscem na dużą szafę, toaleta, schowek pod schodami, półotwarta osobna kuchnia, salon z jadalnią i wyjściem na ogród. Na parterze znajduje się dodatkowo garaż jednostanowiskowy oraz kotłownia.

Piętro: Sypialnia z własną garderobą i łazienką, 3 pokoje, łazienka oraz pralnia.

Poddasze: nieużytkowe

Dom wybudowany jest z najlepszych materiałów: bloczki HH, styropian grafitowy 20cm, okna Veka montowane na ciepłym montażu ( na parterze rolety zewnętrzne), na dachu dachówka Braas Teviva, brama garażowa Wiśniowski.

W budynku są instalacje: elektryczna, hydrauliczna, klimatyzacja ( bez jednostek), rekuperacja ( bez jednostki), alarmowa +kamery, internetowa, domofon, ogrzewanie podłogowe (w całym domu, nawet w garażu), pompa ciepła Panasonic i panele fotowoltaiczne o mocy 10kW i magazyn 7,5kW- gwarantuje to Państwu komfort i niskie koszty utrzymania domu sprawdzone już w poprzednich inwestycjach.

Wszystkie użyte materiały sprawiły, że budynek ma niesamowicie dobre współczynniki - wymagania dla nowych budynków to EP = 70,00 kWh/(m2 · rok) nasze domy mają EP = 28,15 kWh/(m2 · rok)

Każdy z 3 domów stanowi zupełnie osobny budynek- segmenty są od siebie odsunięte o 10cm i 15 cm. Dzięki temu zapewnia nam to komfort akustyczny.

Każdy z segmentów ma bardzo duży ogród- od budynku do ogrodzenia jest aż 11m!

Świetna lokalizacja to dodatkowy atut- zabudowa jednorodzinna otoczona terenami zielonymi. W odległości 650m jest szkoła podstawowa przy ul. Bajkowej. 240m to odległość do ronda z ul. Skalnicową i Zasadową gdzie są przystanki autobusowe (161, 213, 219). 15 minut idziemy spacerem do PKP Radość.

Na chwilę obecną dostępny jest 1 segment:

1b- pow.147,5m2 na działce 412m2- SPRZEDANY

1c- pow. 147,5m2 na działce 302m2- w cenie SPRZEDANY

1d- pow. 147,5m2 na działce 475m2- w cenie 1.930.000zł

Domy sprzedawane są w stanie deweloperskim.

Budynki są odebrane do użytkowania, a działki podzielone

Brak podatku PCC, brak prowizji- zakup od dewelopera.

Aneta
Zadzwoń do oferenta
Zadzwoń do oferenta: +48 605 327 172
Powiedz, że znalazłaś/eś ofertę na Bezposrednie.com. Dziękujemy.
Wyślij wiadomość do oferenta
Wyślij wiadomość do oferenta

Zgadzam się też na otrzymanie:

reklama