Dom na sprzedaż, woj. mazowieckie / dodano: 20.03.2026
Słowicza, mazowieckie, Warszawa, Włochy, Okęcie
Cena: 2 490 000 PLN  (11 857,14 PLN/m²)
Powierzchnia mieszkalna
210 m²
Powierzchnia działki
455 m²
Typ domu
bliźniak
Internet
Tak
Prąd
Tak
Siła
Tak
Gaz
Tak
Woda
Tak
Numer oferty
gratka-46346123
Data aktualizacji
2026-04-04 02:07:51
Opis:

Dom w dogodnej, warszawskiej lokalizacji (ul.Słowicza). Do zamieszkania lub dla firmy.

Transakcja obsługiwana przez Besso Estate jest dla Ciebie bezprowizyjna. Nie pobieramy opłat od strony kupującej.

• Powierzchnia: ok. 210 m2

• Ilość pokoi: 10

• Działka: 455 m2


Spacer po całej nieruchomości dostępny jest na załączonym w niniejszym ogłoszeniu filmie.


Lokalizacja: doskonała komunikacja zarówno indywidualna (al. Krakowska, S8, S2) jak i miejska (tramwaj, autobusy, pociąg). Dodatkowy atut: bliskość lotniska Okęcie.

Naprzeciwko domu znajdują się zielone tereny sportowe Ośrodka Sportu i Rekreacji, basen, kręgielnia, kort tenisowy. Zaledwie kilka kroków od domu jest kampus Thames British School, liceum oraz technikum lotnicze.

Budynek w zabudowie bliźniaczej, aktualnie dostosowany jako siedziba firmy, jednak z powodzeniem może także spełniać funkcję domu mieszkalnego lub mieszkań / pokoi na wynajem (po przystosowaniu). Posadowiony jest na ogrodzonej działce o powierzchni 455 m2. Działka to trawnik i powierzchnia utwardzona. Przy niewielkiej inwestycji może zamienić się w uroczy ogród.

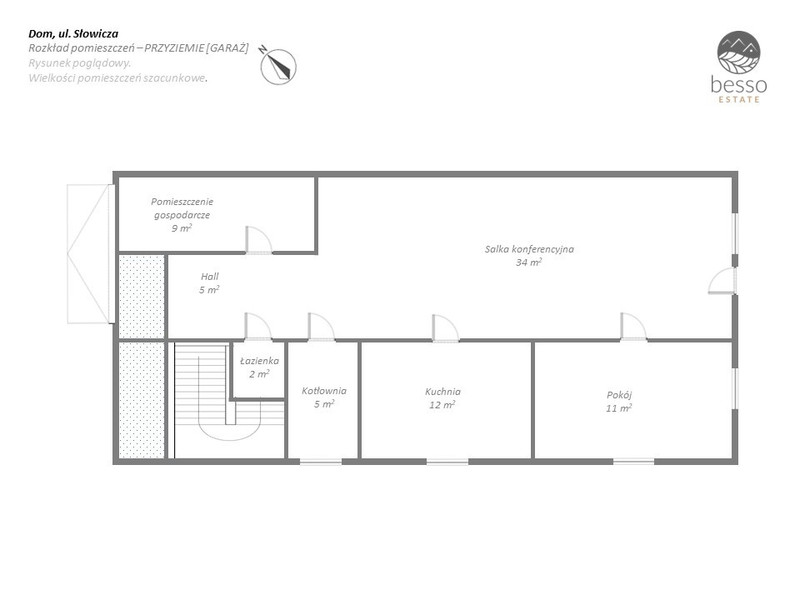
Poziom 0 (ok. 80 m2) – to pierwotnie garaż, aktualnie to przestrzeń wykorzystana na salę konferencyjną oraz z pomieszczenia socjalne, kotłownię, łazienkę i pokój. Posiada wygodne wyjście na stronę ogrodu.

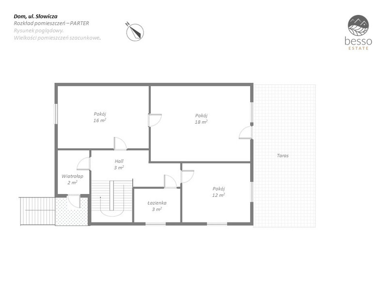
Parter (ok. 55 m2) – znajdziemy tu trzy rozkładowe pokoje z łazienką oraz tarasem od strony ogrodu. Jeden pokój ma ekspozycję północno-zachodnią na ul Słowiczą. Dwa pozostałe pokoje z widokiem od strony ogrodu, z największego wyjdziemy na taras. Na tym poziomie znajduje się także łazienka, hall i wiatrołap.

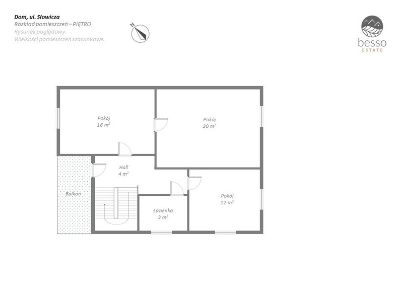
Piętro (ok. 55 m2) zaprasza nas trzema pokojami, hallem, balkonem oraz łazienką.

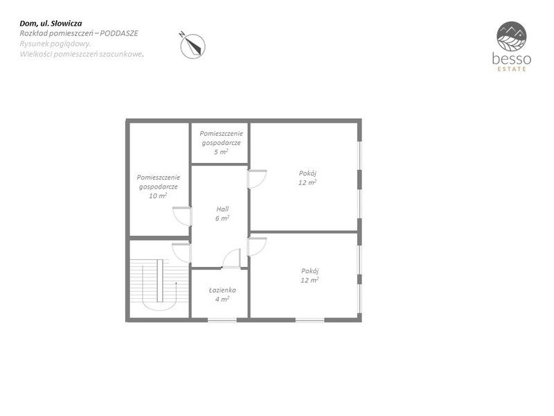
Poddasze (ok. 50 m2) to funkcjonalna przestrzeń, na której znajdują się cztery pomieszczenia o wysokości ok 2.13 m (ze spadami), hall oraz łazienka.

Miejsca parkingowe: garaż aktualnie służy jako pomieszczenia domowe, mieszkańcy parkują swoje samochody od strony ogrodu korzystając wygodnego z dojazdu z boku domu.

Zakup domu, niezależnie czy dla celów własnych czy inwestycyjnie, jest jedną z ważniejszych życiowych decyzji. Wnętrze prawie każdego budynku możemy zaaranżować w sposób, który spełni nasze wymagania, ale to wybór odpowiedniej lokalizacji jest kluczowy, żebyśmy przez kolejne lata czuli satysfakcję z podjętej decyzji.

Nieruchomość posiada księgę wieczystą i uporządkowane formalności do sprzedaży.

Oferta na wyłączność. Zapraszam do kontaktu w celu uzyskania dodatkowych informacji lub umówienia się na prezentację.


Treść niniejszego ogłoszenia ma charakter informacyjny i nie stanowi oferty handlowej w rozumieniu Kodeksu cywilnego oraz innych przepisów prawa.


Arek
Zadzwoń do oferenta
Zadzwoń do oferenta: +48 787 277 324
Powiedz, że znalazłaś/eś ofertę na Bezposrednie.com. Dziękujemy.
Wyślij wiadomość do oferenta
Wyślij wiadomość do oferenta

Zgadzam się też na otrzymanie:

reklama