Dom do wynajęcia, woj. mazowieckie / dodano: 12.10.2025
Studencka, mazowieckie, Warszawa, Mokotów
Cena: 20 000 PLN  (80 PLN/m²)
Powierzchnia mieszkalna
250 m²
Powierzchnia działki
400 m²
Typ domu
inny
Numer oferty
gratka-44523357
Data aktualizacji
2025-11-16 13:40:52
Opis:

Do wynajęcia nowo wyremontowany, wolnostojący budynek o powierzchni użytkowej ok. 250 m². Nieruchomość położona jest w doskonałej lokalizacji, 3 min pieszo (300 m) od Metra Służew.

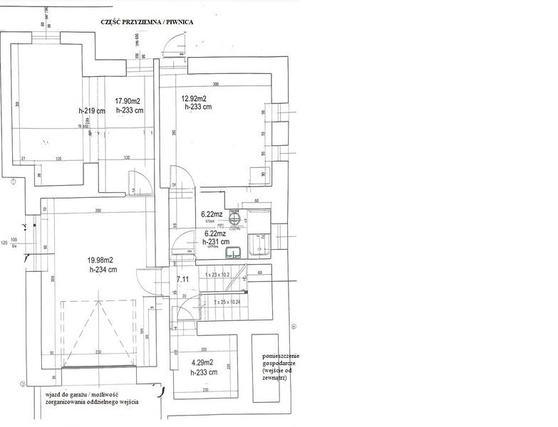
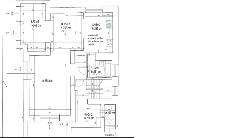
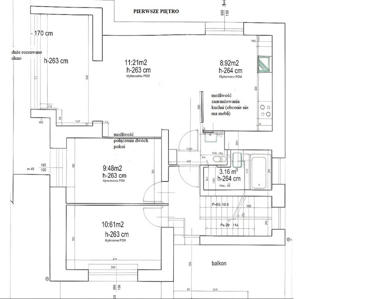
UKŁAD:

  • dom: 2 kondygnacje (2.6 m wysokości) + część przyziemna (piwnica z oknami, pomieszczenia o wysokości 2.33 m) + użytkowe poddasze; łącznie 6 łazienek; na każdej kondygnacji możliwość zaaranżowania kuchni
  • parter: open space z możliwością wydzielenia 4 pokoi , łazienka, garderoba.
  • pierwsze piętro: 4 pokoje, 2 łazienki, balkon
  • piwnica: garaż (możliwość przekształcenia na pokój / open spacej), 2 pokoje, 2 łazienki, spiżarnia / schowek
  • poddasze: open space (z aneksem kuchennym), łazienka
  • 3 miejsca parkingowe na posesji, dodatkowe 2 miejsca postojowe przed budynkiem + możliwość zorganizowania dodatkowych miejsc parkingowych na posesji
  • ogród za budynkiem (z możliwością przekształcenia na miejsca parkingowe)
  • kształt działki: prostokątna (400 m²)

UDOGODNIENIA:

  • budynek po kapitalnym remoncie
  • ogrzewanie gazowe, podłogowe
  • możliwość szybkiego podłączenia do światłowodu
  • pełne media: prąd, gaz, kanalizacja, woda miejska
  • brak windy

LOKALIZACJA:

  • Górny Mokotów, Służew
  • Metro Służew – 3 minut pieszo
  • w pobliżu: Centrum Handlowe Land, punkty usługowe, restauracje, szkoły i tereny zielone

INFORMACJE DODATKOWE:

  • Czynsz najmu: 20 000 zł netto + media wg liczników
  • Kaucja: 3-miesięczny czynsz, w zależności od przeznaczenia
  • Minimalny okres najmu: 12 miesięcy

To idealna propozycja dla firm szukających reprezentacyjnej siedziby z przestrzenią na ekspozycję, biuro, zaplecze usługowe czy magazynowe. Budynek łączy nowoczesny standard z funkcjonalnym układem pomieszczeń i dogodnym dojazdem zarówno samochodem, jak i komunikacją miejską.

Dostępny od listopada 2025 r. (do ustalenia)

Zapraszam do kontaktu w celu umówienia prezentacji!

Prezentowane ogłoszenie nie stanowi oferty w rozumieniu Kodeksu Cywilnego.


---------------------------------------- --------------


[EN] For rent: a newly renovated, detached building with a living / office area of approx. 250 m².

The property is based in an excellent location — just a 3-minute walk (300 m) from Metro Służew.

LAYOUT:

House: 2 floors (2.6 m ceiling height) + a lower ground floor (basement with windows, rooms with 2.33 m ceiling height) + a usable attic; a total of 6 bathrooms; each floor allows for the installation of a kitchen.

  • Ground floor: open space (possibility to divide into 4 rooms), bathroom, walk-in closet.
  • First floor: 4 rooms, 2 bathrooms, balcony.
  • Basement: garage (can be converted into a room or open space), 2 rooms, 2 bathrooms, pantry/storage room.
  • Attic: open space (with kitchenette), bathroom.

There are 3 parking spots in the property, an additional 2 parking spots in front of the building, and a possibility to create additional parking spots on-site.

Garden behind the building (can be converted into additional parking).

Plot shape: rectangular (400 m²).

AMENITIES:

  • Building after complete renovation
  • Gas and underfloor heating
  • Option for quick fiber-optic internet connection
  • All utilities: electricity, gas, sewage, city water
  • No elevator
  • The house is unfurnished (only one kitchen is installed, no other furniture)

LOCATION:

Górny Mokotów, Służew district

Służew Metro – 3 minutes on foot

Nearby: Land Shopping Center, service points, restaurants, schools, and green areas

ADDITIONAL INFORMATION:

  • Rent: PLN 20,000 net + utilities according to meters
  • Deposit: 3 months' rent, depending on use
  • Minimum rental period: 12 months
  • Available from November 2025 (flexible)

This is an ideal offer for companies looking for a representative headquarters with space for exhibitions, offices, service, or storage facilities. The building combines modern standards with a functional layout and convenient access by both car and public transport.

Feel free to reach out to schedule a viewing!

This listing does not constitute an offer as defined by the Civil Code.

Osoba prywatna
Zadzwoń do oferenta
Zadzwoń do oferenta: +48 789 298 007
Ogłoszeniodawca nie zgadza się na kontakt agencji nieruchomości.
Powiedz, że znalazłaś/eś ofertę na Bezposrednie.com. Dziękujemy.
Wyślij wiadomość do oferenta
Wyślij wiadomość do oferenta

Zgadzam się też na otrzymanie:

reklama