Działka na sprzedaż, woj. śląskie / dodano: 11.11.2025
Piotra Korusa, śląskie, Mysłowice, Brzezinka
Cena: 345 500 PLN  (398,96 PLN/m²)
Powierzchnia działki
866 m²
Typ działki
budowlana
Numer oferty
gratka-44993167
Data aktualizacji
2025-11-26 02:12:33
Opis:

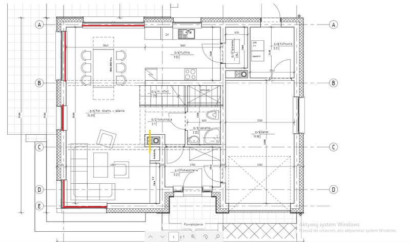
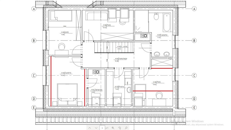
Działka budowlana 866 m² w Mysłowicach Brzezince – gotowa pod budowę, z podłączonymi mediami, projektem domu i kompletnymi badaniami gruntu. W galerii również rzuty indywidualnego projektu od architekta, przygotowanego specjalnie pod kształt i ukształtowanie terenu działki.

---

Parametry działki

  • Powierzchnia: 866 m²
  • Układ prostokątny (ok. 20 × 43 m), lekki spadek - idealny pod dom z piwnicą lub adaptację wg własnych potrzeb (również zabudowa bliźniacza/szeregowa).
  • Rodzaj gruntu: piaszczysty - bardzo dobra przepuszczalność, brak zastoin wodnych
  • Położenie: druga linia zabudowy
  • Dojazd: droga żwirowa w dobrym stanie

---

Media i infrastruktura

Prąd, woda, kanalizacja - podłączone

Gaz - w drodze, wydana zgoda na przyłącze

Ogrodzenie: z trzech stron docelowe, od frontu tymczasowe

Dodatkowo: blaszany garaż 3 × 5 m na zaplecze budowy lub przechowywanie narzędzi

---

W cenie:


  • Indywidualny projekt architektoniczny domu jednorodzinnego, przygotowany specjalnie pod tę działkę. Kompletny i gotowy do przekazania do budowy (rzuty i wizualizacje domu do obejrzenia w galerii zdjęć)
  • Badania geotechniczne gruntu - pełna dokumentacja do wglądu (analiza warstw gruntu, poziomu wód gruntowych i nośności podłoża).
  • teren wykarczowany i przygotowany do rozpoczęcia budowy

---

Charakter okolicy:

  • Nowoczesna zabudowa domów jednorodzinnych
  • W sąsiedztwie powstaje inwestycja Home Garden+
  • Spokojna, kameralna okolica, w pobliżu: przystanek, sklep, paczkomat, tereny spacerowe

---

Świetny dojazd: • Katowice – ok. 15 min • Tychy – ok. 20 min • Jaworzno – ok. 15 min Blisko autostrada A4 i ekspresowa S1

---

Stan prawny

  • Forma własności: pełna własność prywatna
  • Księga wieczysta: założona
  • Obciążenia: brak

---

Podsumowanie

Działka w pełni przygotowana do budowy – uzbrojona, ogrodzona, z wykonanymi badaniami gruntu i dostępem do wszystkich mediów. W cenie gotowy projekt domu od architekta.

Świetna lokalizacja w rozwijającej się dzielnicy, spokojne otoczenie i dobry dojazd do głównych miast regionu sprawiają, że to idealne miejsce na Twój dom.

---

Kontakt

Zainteresowany? Umów się na prezentację działki!888 292 039

Zapraszam również do obejrzenia filmu z drona (youtu. be/Mhlw_0qN6HA)

Klaudia
Zadzwoń do oferenta
Zadzwoń do oferenta: +48 888 292 039
Ogłoszeniodawca nie zgadza się na kontakt agencji nieruchomości.
Powiedz, że znalazłaś/eś ofertę na Bezposrednie.com. Dziękujemy.
Wyślij wiadomość do oferenta
Wyślij wiadomość do oferenta

Zgadzam się też na otrzymanie:

reklama