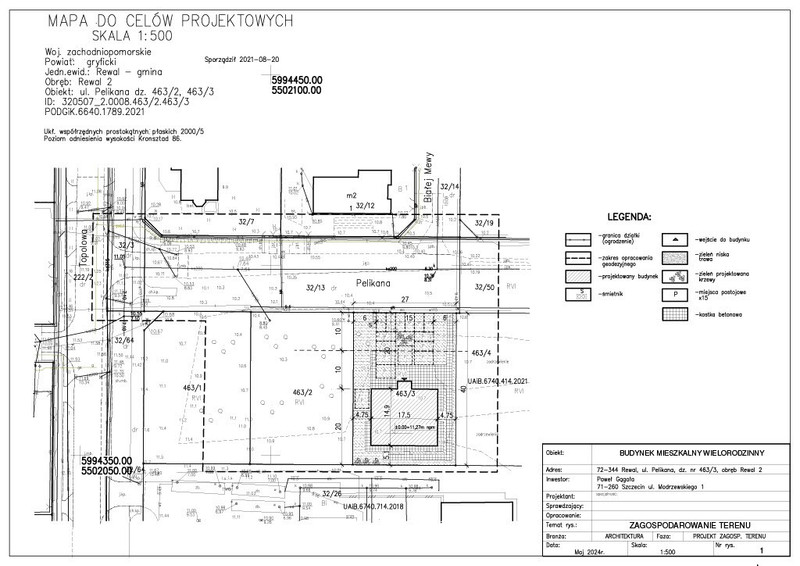
Działka na sprzedaż, woj. Polska / dodano: 10.10.2025
Pelikana, zachodniopomorskie, gryficki, Rewal, Rewal
Cena: 875 000 PLN  (810,19 PLN/m²)
Powierzchnia działki
1080 m²
Typ działki
budowlana
Numer oferty
gratka-44485441
Data aktualizacji
2025-10-25 03:14:14
Opis:

Własność. Działka położona w Rewalu przy Pelikana. Nieruchomość o powierzchni 1080 m kw. w kształcie prostokąta. Prąd, woda kanalizacja i gaz przy działce. Wokół zabudowa mieszkalno - pensjonatowa, apartamentowa oraz domki. Świetna lokalizacja do morza w linii prostej około 700 m.

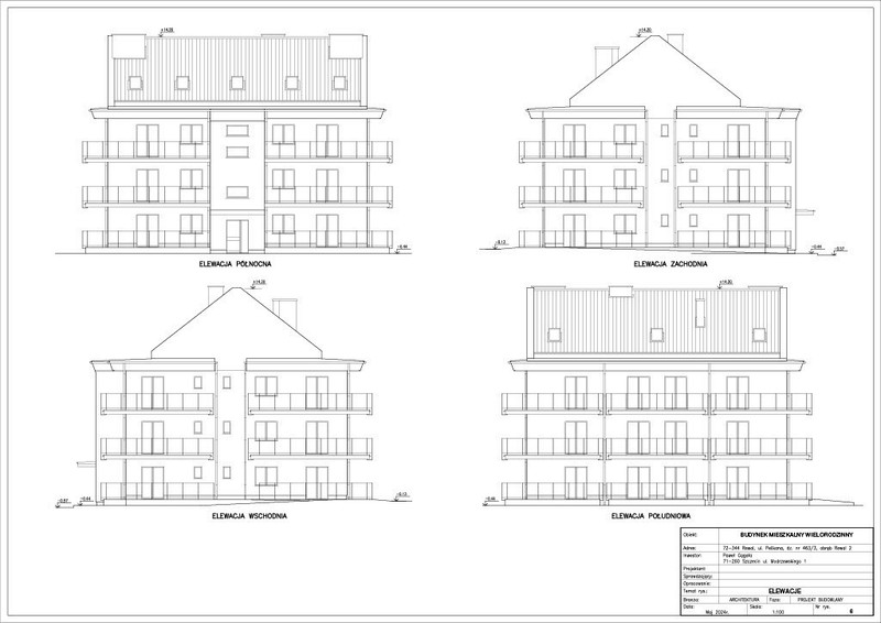
Pozwolenie obejmuje budowę:

Dom wielorodzinny 2,5 kondygnacyjny, z poddaszem użytkowym, z wysokim

dwuspadowym dachem. Dom zaprojektowany został w

technologii tradycyjnej.

Dane liczbowe:

 kubatura obiektu 3110,00m3

 powierzchnia zabudowy 268,00m2

 powierzchnia użytkowa mieszkalna 563,40m2

 powierzchnia użytkowa antresoli 75,00m2

 powierzchnia komunikacyjna

(klatka schodowa + wiatrołap) 72,01m2

 powierzchnia poddasza nieużytkowego 25,90m2

 powierzchnia tarasów 85,00m2

 powierzchnia balkonów 170,00m2

 powierzchnia całkowita 998,00m2

Kontakt663889001

PAWEŁ
Zadzwoń do oferenta
Zadzwoń do oferenta: +48 663 889 001
Ogłoszeniodawca nie zgadza się na kontakt agencji nieruchomości.
Powiedz, że znalazłaś/eś ofertę na Bezposrednie.com. Dziękujemy.
Wyślij wiadomość do oferenta
Wyślij wiadomość do oferenta

Zgadzam się też na otrzymanie:

reklama