Działka na sprzedaż, woj. Polska / dodano: 26.11.2025
Generała Władysława Sikorskiego, dolnośląskie, średzki, Środa Śląska, Środa Śląska
Cena: 62 500 000 PLN  (258,26 PLN/m²)
Powierzchnia działki
242 000 m²
Typ domu
inny
Typ działki
inwestycyjna
Dostęp do drogi
asfaltowa/betonowa
Prąd
Tak
Numer oferty
gratka-45178853
Data aktualizacji
2026-04-16 02:13:48
Opis:

Atrakcyjne działki inwestycyjne pod zabudowę wielorodzinną – 24,2 ha – pod

Wrocławiem, MPZP, pozwolenie na budowę – BEZPOŚREDNIO


Na sprzedaż wyjątkowy kompleks nieruchomości gruntowych o łącznej powierzchni

24,2 ha, położony w dynamicznie rozwijającej się części Środy Śląskiej ok. 20 km od

Wrocławia.


Atuty:

 ogromny potencjał inwestycyjny – ponad 120 000 PUM (możliwość etapowania),

 MPZP – zabudowa mieszkaniowa wielorodzinna,

 pozwolenie na budowę,

 dedykowany układ drogowy,

 pełna infrastruktura w granicy inwestycji,

 doskonałe połączenie komunikacyjne z Wrocławiem,

 atrakcyjna alternatywa dla projektów na terenie Wrocławia.


Lokalizacja

Teren znajduje się w południowo-wschodniej części miasta, w rejonie „Winna Góra”:

 centrum Środy Śląskiej – 1,5 km,

 nowoczesna szkoła podstawowa – 0,5 km,

 kompleks sportowo-rekreacyjny z basenem – 0,5 km,

 komunikacja miejska – 0,5 km,

 stacja kolejowa PKP – 1,9 km.


Infrastruktura drogowa

Kompleks posiada bezpośredni dostęp do infrastruktury komunikacyjnej :

 ulica Winogronowa (nawierzchnia asfaltowa),

 ulica Sikorskiego (asfalt),

 nowo wybudowana ulica Jabłkowa (2025 r.).

Od południa teren sąsiaduje dodatkowo z planowaną północną obwodnicą miasta.


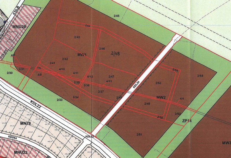
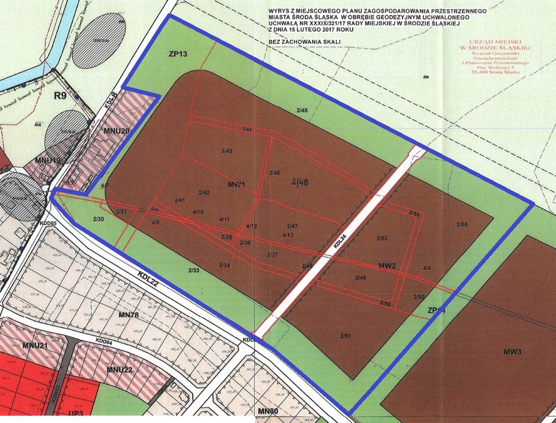
Charakterystyka terenu

 Teren płaski, nieogrodzony.

 Powierzchnia podzielona na 38 działek ewidencyjnych.

 W obowiązującym MPZP grunt oznaczony jest jako:

o MW1 / MW2 – tereny zabudowy mieszkaniowej wielorodzinnej

o ZP13 / ZP14 – tereny zieleni urządzonej.


Infrastruktura techniczna

 Pełne media w drogach przylegających do działek (ul. Winogronowa, Sikorskiego

i Jabłkowa): woda, kanalizacja sanitarna i deszczowa, energia elektryczna.

 Inwestor uzyskał warunki techniczne przyłączenia do sieci

 Wymagane zgody na budowę sieci wodociągowej, kanalizacyjnej,

teletechnicznej, deszczowej, linii energetycznej i oświetlenia ulicznego w ramach

nowoprojektowanych dróg gminnych.


Status prawny i inwestycyjny

 Koncepcja zagospodarowania dla10 etapów inwestycji.

 Uzyskane pozwolenia na budowę m.in. 6 budynków wielorodzinnych z usługami i

garażami (etap 1 i 2): łączna PUM 7 558,8 m² + PUU 2 356,86 m².

 Ponadto uzyskano decyzję na budowę drogi wewnętrznej wraz z pełną

infrastrukturą.


Całkowity potencjał inwestycyjny terenu oszacowano na ok. 120 000 m² PUM i ok. 9 000

m² PUU.

Cena: 62 500 000,00 PLN netto

Rodzaj oferty: Sprzedaż bezpośrednia

Dostępność: od zaraz


Idealna oferta dla deweloperów lub funduszy inwestycyjnych poszukujących rozległego,

przygotowanego gruntu pod realizację wieloetapowego osiedla mieszkaniowego

wielorodzinnego w bliskim sąsiedztwie Wrocławia.


Zapraszam do kontaktu w celu uzyskania szczegółowej dokumentacji (PZT, WZ,

PNB, warunki techniczne):

887 459 952

887 459 925

biuro@


Niniejsze ogłoszenie ma jedynie charakter informacyjny i nie stanowi oferty w rozumieniu art. 66 i nast. Kodeksu cywilnego. Celem jest zaproszenie zainteresowanych do kontaktu w celu podjęcia ewentualnych negocjacji.

Artur
Zadzwoń do oferenta
Zadzwoń do oferenta: +48 887 459 925
Ogłoszeniodawca nie zgadza się na kontakt agencji nieruchomości.
Powiedz, że znalazłaś/eś ofertę na Bezposrednie.com. Dziękujemy.
Wyślij wiadomość do oferenta
Wyślij wiadomość do oferenta

Zgadzam się też na otrzymanie:

reklama