Lokal na sprzedaż, woj. pomorskie / dodano: 13.03.2026
Długie Ogrody, pomorskie, Gdańsk, Śródmieście
Cena: 1 856 000 PLN  (26 898,55 PLN/m²)
Powierzchnia
69 m²
Typ domu
inny
Numer oferty
gratka-46296047
Data aktualizacji
2026-03-28 02:03:30
Opis:

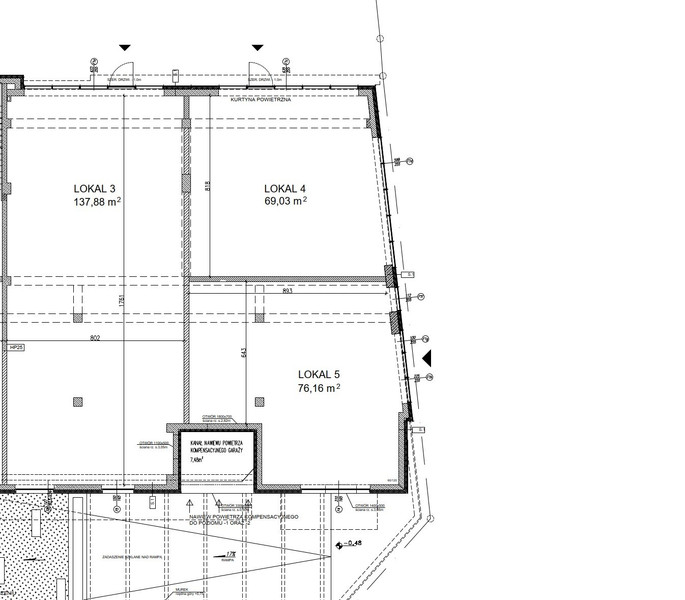
Na sprzedaż atrakcyjny lokal użytkowy o powierzchni 69,03 m², zlokalizowany w nowoczesnym budynku powstającym przy ul. Długie Ogrody 20 w Gdańsku. Inwestycja jest obecnie w trakcie realizacji, a planowany termin odbioru budynku przewidziany jest na 2028 rok.


Oferowany lokal jest lokalem narożnym, co zapewnia mu jedno z najciekawszych usytuowań w całym parterze budynku. Dzięki narożnemu położeniu lokal posiada dwie duże witryny, które zapewniają bardzo dobrą ekspozycję z dwóch stron oraz dużą widoczność z ulicy. Takie rozwiązanie gwarantuje również doskonałe doświetlenie wnętrza oraz duże możliwości aranżacyjne i reklamowe.


Lokal dzięki swojej ekspozycji i funkcjonalnemu układowi idealnie sprawdzi się zarówno pod działalność usługową, handlową, biurową, gastronomiczną, jak i showroom.


Dużym atutem jest dowolne przeznaczenie lokalu, co pozwala na dopasowanie funkcji do indywidualnych potrzeb inwestora lub przyszłego użytkownika. Na obecnym etapie inwestycji istnieje także możliwość dostosowania lokalu do wymagań nabywcy, co umożliwia optymalne zaprojektowanie przestrzeni pod konkretną działalność.


Nieruchomość znajduje się bezpośrednio przy ulicy Długie Ogrody, w bliskim sąsiedztwie historycznego centrum Gdańska. W najbliższych latach planowana jest kompleksowa rewitalizacja tej ulicy, obejmująca modernizację infrastruktury drogowej, poprawę jakości przestrzeni publicznej, zwiększenie ilości zieleni oraz podniesienie estetyki całej okolicy. Planowane zmiany mają na celu ożywienie tej części miasta i zwiększenie jej atrakcyjności zarówno dla mieszkańców, jak i turystów.


Dzięki temu lokalizacja, która już dziś jest bardzo korzystna, w przyszłości zyska jeszcze większy potencjał biznesowy i inwestycyjny.


Sprzedaż lokalu będzie realizowana na podstawie faktury VAT, a podana cena stanowi cenę netto.


Lokal stanowi doskonałą propozycję dla inwestorów oraz przedsiębiorców poszukujących świetnie wyeksponowanej przestrzeni użytkowej w rozwijającej się części Gdańska.


Ogłoszenie ma charakter informacyjny i nie stanowi oferty handlowej w rozumieniu art. 66 §1 Kodeksu cywilnego. Przedstawione informacje, wizualizacje oraz dane dotyczące inwestycji mogą ulec zmianie w trakcie realizacji.

Marcin
Zadzwoń do oferenta
Zadzwoń do oferenta: +48 601 646 426
Ogłoszeniodawca nie zgadza się na kontakt agencji nieruchomości.
Powiedz, że znalazłaś/eś ofertę na Bezposrednie.com. Dziękujemy.
Wyślij wiadomość do oferenta
Wyślij wiadomość do oferenta

Zgadzam się też na otrzymanie:

reklama