Lokal na sprzedaż, woj. lubelskie / dodano: 16.01.2026
Dolna Panny Marii, lubelskie, Lublin, Śródmieście
Cena: 950 000 PLN  (13 970,59 PLN/m²)
Powierzchnia
68 m²
Piętro
parter
Liczba pięter
3
Numer oferty
gratka-45732817
Data aktualizacji
2026-01-16 10:01:30
Opis:

Lokal biurowy na parterze, z samodzielnym wejściem od głównej ulicy, umeblowany.

ul. Dolna Panny Marii 56 (wjazd od Piłsudskiego, od strony MPWIK), bardzo dobra lokalizacja w centrum Lublina, w pobliżu dużo miejsc parkingowych, blisko przystanki autobusowe (200 m)

-w nowym budownictwie

-umeblowany (biurka, krzesła , szafy itp), z aneksem kuchennym + lodówka

-WC

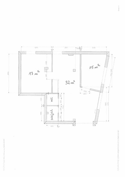
-3 oddzielne pomieszczenia (ok 17m2, 15m2, 32m2)

-stan lokalu -wynajmowany, wymaga odświeżenia

-duże witryny

-miejsce na reklamę na elewacji budynku

-rolety antywłamaniowe

-system alarmowy

- kamery monitoringu

Rozliczenie Faktura VAT (23%).


Beata
Zadzwoń do oferenta
Zadzwoń do oferenta: +48 509 217 277
Ogłoszeniodawca nie zgadza się na kontakt agencji nieruchomości.
Powiedz, że znalazłaś/eś ofertę na Bezposrednie.com. Dziękujemy.
Wyślij wiadomość do oferenta
Wyślij wiadomość do oferenta

Zgadzam się też na otrzymanie:

reklama